Hoofdafbeelding Sint Annastraat 6
Foto
Foto 2
Home Aanbod Sint Annastraat 6

Sint Annastraat 6

9901 AW Appingedam

€ 235.000,- k.k.

TE KOOP AANGEBODEN
Het appartementsrecht rechtgevende op het uitsluitend gebruik van een kantoorpand op de begane grond met archiefruimte in de kelder.

INDELING
Begane grond:
Kantoorruimte ca. 86 m² VVO
Keuken en sanitair ca. 18,5 m² VVO
Verkeersruimte en overige ruimte ca. 44 m² VVO

Kelder:
Archiefruimte ca. 123 m² VVO

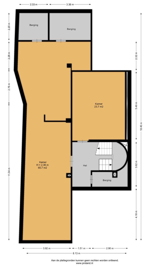
Voor een nadere specificatie verwijzen wij u naar de plattegronden in de presentatie.

VVE
Bijdrage ca. €1000,-/ jaar (alleen opstalverzekering)

OVERIG
- Mogelijkheid tot het aanvragen van SNN Subsidie Verduurzaming en Verbetering €17.000,- wordt overgedragen aan koper;
- Voorzien van LED-verlichting;
- Verwarming en warmwatervoorziening middels cv-combiketel Intergas, bouwjaar 2019, eigendom
- Voorzien van kunststof kozijnen met HR++ beglazing;
- Geheel is thans in verhuurde staat (t/m 31-12-2025).

LOCATIE + PARKEERMOGELIJKHEDEN
Het complex bevindt zich in hartje centrum van de middeleeuwse stad Appingedam. Parkeermogelijkheden bevinden zich voor het pand en aan de achterzijde op parkeerterrein Ossedrift.

BEREIKBAARHEID
- Goed bereikbaar per auto middels N360 (Delfzijl - Groningen), N33 (Eemshaven - Assen) of A7 (Groningen - Bad Nieuweschans) middels ontsluitingsweg N991;
- Goed bereikbaar per openbaar vervoer: busstation en treinstation bevinden zich op loopafstand.

AANVAARDING
In overleg

BESTEMMING
Op de locatie is de bestemming “Centrum” van toepassing. Een kandidaat koper is er zelf verantwoordelijk voor dat het door zijn/haar voorgenomen gebruik in overeenstemming is of komt met het vigerende bestemmingsplan. Gedetailleerde informatie kan worden verkregen bij de gemeente Eemsdelta.

Overdracht

  • StatusVerkocht
  • Object prijs€ 235.000,- k.k.
  • Type aanvaardingIn overleg
  • Servicekosten

Indeling

  • Soort objectKantoorruimte
  • Totale oppervlakte285 m2
  • Oppervlakte kantoorruimte285 m2

Parkeergelegenheid

  • Overdekt parkerenOpenbaar parkeren, eventueel beperkt door blauwe zone.
  • Onoverdekt parkerenOpenbaar parkeren, eventueel beperkt door blauwe zone.

Bouwvorm

  • BouwvormBestaande bouw
  • Bouwjaar1960
  • Bouwjaar toelichting

Brandsma De Jong - Delfzijl

Kerkstraat 25
9934 CE Delfzijl
+31596 630 920

Over welke vestiging wilt u meer te weten komen?

Welke vestiging mag uw woning verkopen?

Brandsma de Jong

Vragen?

Wij helpen u graag