Hoofdafbeelding Landstraat 81
Foto 16
Foto 36
Home Aanbod Landstraat 81

Landstraat 81

9934 BK Delfzijl

€ 525.000,- k.k. of € 2.750,- p/m.

* PER DIRECT BESCHIKBAAR *

Op A-locatie aan de rand van het centrum van Delfzijl bevindt zich dit voormalig bankkantoor, welke door de indeling en de gemengde bestemming voor diverse doeleinden geschikt is. Ook het gebruik als winkelruimte is hierbij een optie. Op dit moment ondergaat het gebouw een gevelverbetering. Op de eerste twee foto's zijn impressies zichtbaar van het eindresultaat. De gevel wordt deels voorzien van natuursteen, spotjes en nieuw voegwerk. Voorts wordt op de locatie van de voormalige gelduitgifteautomaten een nieuwe pui geplaatst.

In de directe omgeving in het centrum van Delfzijl vindt u diverse winkels, supermarkten, cultuurcentrum "De Molenberg", horecagelegenheden en op loopafstand de prachtig nieuw aangelegde strandboulevard. Op korte afstand bevinden zich diverse onderwijsmogelijkheden en binnen- en buitensportvoorzieningen. Het geheel is per auto uitstekend bereikbaar aan de uitloop van de N360 (Groningen - Delfzijl), waarbij op enkele autominuten tevens de N33 (Assen - Eemshaven) is gelegen. Ook met het openbaar vervoer is de Landstraat 81 uitstekend te bereiken. Tegenover het gebouw bevindt zich het NS-station met treinverbinding naar de stad Groningen en meerdere busverbindingen naar andere locaties in de regio.

OPPERVLAKTE:
In totaal is er ca. 710 m² VVO beschikbaar (803 m² BVO).

HUURPRIJZEN:
Aanvangshuur €2.750,- per maand;
2e jaar: €3.250,- per maand;
Vanaf het 3e jaar: €3.750,- per maand.

Huurprijzen te vermeerderen met BTW.

BTW:
Uitgangspunt is een met BTW belaste huurprijs. Indien een huurder niet voldoet aan de voor belaste verhuur gestelde criteria zal de huurprijs zodanig worden verhoogd dat het voor verhuurder ontstane financiële nadeel volledig wordt gecompenseerd.

BOUWJAAR:
1984

ENERGIELABEL:
C

INDELING:
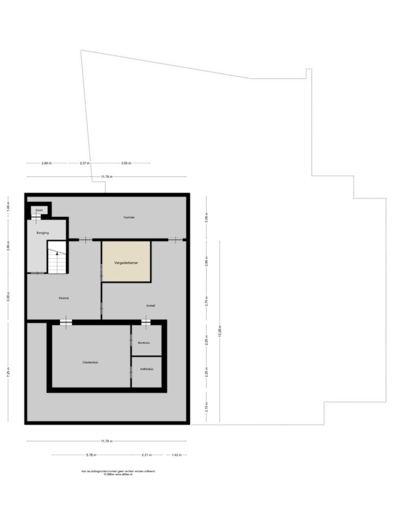
Voor een indruk van de indeling verwijzen wij naar de plattegronden in de fotopresentatie.

BESTEMMING:
9.1 Bestemmingsomschrijving
De voor 'Gemengd - 1' aangewezen gronden zijn bestemd voor:

a. gebouwen ten behoeve van:
1. woningen, voor zover het de eerste bouwlaag betreft ter plaatse van de aanduiding 'specifieke vorm van wonen - eerste bouwlaag';
2. woningen, voor zover het de tweede en hogere bouwlaag betreft;
3. maatschappelijke voorzieningen;
4. dienstverlening, voorover het de eerste bouwlaag betreft;
5. bedrijven, genoemd in Bijlage 1, onder categorie 1;
6. een bowling- en/of kegelbaan, ter plaatse van de aanduiding 'bowlingbaan';
7. detailhandel, niet zijnde supermarkten, al dan niet in combinatie met ondergeschikte horeca, ter plaatse van de aanduiding 'detailhandel';
8. horecabedrijven categorie 1 voorzover het de eerste bouwlaag betreft ter plaatse van de aanduiding 'horeca van categorie 1';
9. horecabedrijven categorie 2, voorzover het de eerste bouwlaag betreft ter plaatse van de aanduiding 'horeca van categorie 2';
10. horecabedrijven categorie 1 en/of 2 voorzover het de eerste bouwlaag betreft ter plaatse van de aanduiding 'horeca tot en met horecacategorie 2';
11. horecabedrijven categorie 3 voorzover het de eerste bouwlaag betreft ter plaatse van de aanduiding 'horeca van categorie 3';

en mede bestemd voor:

b. het tegengaan van een te hoge geluidbelasting op geluidsgevoelige objecten, ter plaatse van de gebiedsaanduiding 'geluidzone - industrie';
c. de bescherming van de functie van de waterkering, ter plaatse van de aanduiding 'vrijwaringszone - dijk 1';

met de daarbijbehorende:

d. garageboxen, ter plaatse van de aanduiding 'garage';
e. horecaterrassen;
f. tuinen, erven en terreinen;
g. parkeervoorzieningen;
h. nutsvoorzieningen;
i. bouwwerken, geen gebouwen zijnde.

OPLEVERINGSNIVEAU:
Het object wordt, vrij van huur en gebruik, schoon en ontruimd aangeboden.

PARKEREN:
Op eigen terrein 3 parkeerplaatsen en vrij parkeren nabij het object (eventueel beperkt door blauwe zone)

AANVAARDING:
In overleg.

HUURPRIJZEN:
Aanvangshuur €2.750,- per maand;
2e jaar: €3.250,- per maand;
Vanaf het 3e jaar: €3.750,- per maand.

Huurprijzen te vermeerderen met BTW.

BTW:
Uitgangspunt is een met BTW belaste huurprijs. Indien een huurder niet voldoet aan de voor belaste verhuur gestelde criteria zal de huurprijs zodanig worden verhoogd dat het voor verhuurder ontstane financiële nadeel volledig wordt gecompenseerd.

INDEXERING:
De huurprijs zal jaarlijks, voor het eerst 1 jaar na de ingangsdatum, worden verhoogd op basis van de consumentenprijsindex (CPI), reeks CPI Alle huishoudens (2006 = 100), zoals wordt gepubliceerd door het Centraal Bureau voor de Statistiek (CBS).

ZEKERHEIDSSTELLING:
Een borgsom ter grootte van drie maanden huur, te vermeerderen met BTW.

Overdracht

  • StatusIngetrokken
  • Object prijs€ 525.000,- k.k. of € 2.750,- p/m.
  • Type aanvaardingIn overleg
  • Servicekosten€ 0,- per m2 p/j

Indeling

  • Soort objectKantoorruimte
  • Totale oppervlakte1.401 m2
  • Oppervlakte kantoorruimte710 m2

Bouwvorm

  • BouwvormBestaande bouw
  • Bouwjaar1984
  • Bouwjaar toelichting

Brandsma De Jong - Delfzijl

Kerkstraat 25
9934 CE Delfzijl
+31596 630 920

Over welke vestiging wilt u meer te weten komen?

Welke vestiging mag uw woning verkopen?

Brandsma de Jong

Vragen?

Wij helpen u graag