Hoofdafbeelding Rootveld 15
Foto
Foto 2
Home Aanbod Rootveld 15

Rootveld 15

9903 CB Appingedam

€ 650.000,- k.k.

Een woning om verliefd op te worden! Een fraaie architectonische vormgeving, in alle facetten uiterst ruim opgezet, levensloopbestendig, gelegen aan doorgaand vaarwater, een aanlegplaats voor de boot... zo maar een aantal kenmerken van het in 1991 gerealiseerd woonhuis aan de Rootveld 15 in Appingedam! Al bij de bouw van de woning is uitgegaan van de kracht van de locatie, namelijk een magistrale situering rechtstreeks aan het Damsterdiep met prachtig uitzicht aan de achterzijde. Daarbij bevinden zich op de royale kavel van 850 m² meerdere terrassen om de hele dag van de zon te kunnen genieten. Ook het woonhuis zelf is uiteraard van alle ruimte en comfort voorzien. Denk daarbij o.a. aan een ruim bemeten woonkamer met haard en fraaie vide, een royale slaapkamer met badkamer en suite op de begane grond en een woonkeuken met in 2023 vernieuwd keukenblok. Ook een multifunctionele ruimte welke uitstekend geschikt is voor een beroep aan huis, maar ook als slaapkamer te gebruiken is, ontbreekt niet in het prachtige plaatje. Tevens bevinden zich op de verdieping nog eens twee slaapkamers, waarbij ook een badkamer vanzelfsprekend niet ontbreekt.

De autoluwe straat Rootveld bevindt zich op een unieke locatie, zijnde een klein schiereilandje, omsloten door het Damsterdiep en te bereiken door een drietal bruggen. Het is een relatief jonge en hoogwaardige woonwijk, welke onderdeel uitmaakt van de ijsbaan die vroeger in Appingedam op deze locatie gesitueerd was. Met recht derhalve te bestempelen als één van de fraaiste wijken in Appingedam. De Rootveld 15 bevindt zich op ongeveer 20 autominuten van de stad Groningen en tevens op slechts enkele minuten fietsafstand van het historische stadscentrum van Appingedam of het winkelcentrum Overdiep. Het aan de achterzijde van het woonhuis gelegen Damsterdiep is daarbij een vaargebied welke bij uitstek geschikt is om met een sloep of kano te bevaren. Ook vaart u vanaf uw eigen perceel de Staande mastroute richting Groningen of naar Delfzijl, naar het Schildmeer of gewoon een kort rondje door de prachtige grachten van "Daam" met haar befaamde hangende keukens. Appingedam is, naast de stad Groningen, één van de 2 middeleeuwse steden die de provincie Groningen rijk is! Wonen in Appingedam betekent niet alleen wonen in moderne nieuwbouwwijken of sfeervolle stadsgebieden. Het betekent ook: zeer complete onderwijsvoorzieningen met een gevarieerd winkelaanbod, meerdere horecagelegenheden en in de zomer meerdere festiviteiten en festivals in het centrum. Tel daarbij de vele aantrekkelijke sport- en recreatiemogelijkheden, prima wegverbindingen en uitstekend openbaar en u zult merken dat Appingedam een kleine stad is om in uw hart te sluiten!

Is het, net als voor verkopers destijds, voor u ook liefde op het eerste gezicht en wilt u van de uitgelezen kans gebruik maken om in het bezit te komen van iets unieks? Neem dan gauw contact op met ons kantoor voor een bezichting met één van onze makelaars!

Indeling:
Begane grond:
Entree/hal met meterkast, toilet en toegang naar de multifunctionele (ca. 24 m²), woonkamer (ca. 39,5 m²; met haard en schuifpui), dichte woonkeuken (ca. 18,5 m²; met keukenblok uit 2023 voorzien van koel-/vriescombinatie, inductiekookplaat, afzuigkap en oven), aangrenzende bijkeuken (ca. 7 m²; met witgoedaansluitingen en cv-opstelling). Vanuit de woonkamer te bereiken achterhal met opgang naar de verdieping en toegangsdeur naar de tuin, slaapkamer (ca. 18 m²; met vaste kastruimte) en badkamer en suite (ca. 7 m²; met douche, ligbad, wastafelmeubel en toilet).

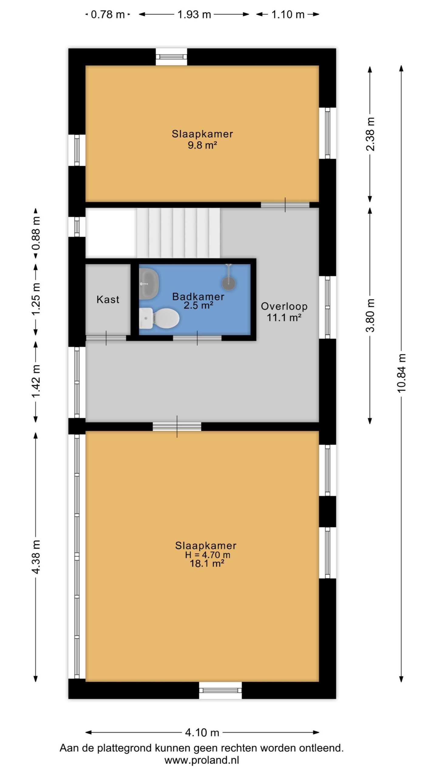
Verdieping:
Middels vaste trap te bereiken overloop met aangrenzend slaapkamer (ca. 10 m²), badkamer (ca. 2,5 m²; met douche, wastafel en toilet), kastruimte en slaapkamer (ca. 18 m²).

Extra informatie:
- Verwarming en warmwatervoorziening middels cv-combiketel Remeha Calenta, bouwjaar 2012, eigendom;
- Vloerverwarming woonkamer en keuken;
- Warmwatervoorziening op de verdieping middels elektrische boiler;
- Voorzien van deels kunststof en deels houten kozijnen en met triple, HR++ en isolerende beglazing;
- Keukenblok vernieuwd in 2023.

Algemeen

  • StatusOnder optie
  • Koopprijs€ 650.000,- k.k.
  • AanvaardingIn overleg

Bouwvorm

  • Soort objectWoonhuis
  • Soort woningEengezinswoning
  • Type woningVrijstaande woning
  • Bouwjaar1991
  • BouwvormBestaande bouw
  • LiggingenAan water, Aan rustige weg, In woonwijk, Aan vaarwater

Indeling

  • Woonoppervlakte182 m2
  • Perceeloppervlakte850 m2
  • Inhoud727 m3
  • Aantal kamers5
  • Aantal slaapkamers4
  • Aantal badkamers2

Energie

  • EnergieklasseB
  • VerwarmingCV ketel, Vloerverwarming gedeeltelijk
  • C.V.-KetelRemeha Calenta
  • Bouwjaar C.V.-Ketel2012
  • WarmwaterCV ketel, Elektrische boiler eigendom
  • IsolatieDakisolatie, Muurisolatie, Vloerisolatie, Dubbelglas, HR glas
  • CombiketelJa
  • BrandstofGas
  • EigendomEigendom

Buitenruimte

  • TuinTuin rondom
  • HoofdtuinTuin rondom
  • AchteromJa
  • Kwaliteit tuinVerzorgd

Bergruimte

  • Schuur / BergingVrijstaand hout
  • Totaal aantal2

Parkeergelegenheid

  • Parkeer faciliteitenOp eigen terrein
  • GarageGeen garage

Dak

  • Soort dakLessenaardak
  • Materiaal dakLeisteen, Bitumineuze Dakbedekking

Overig

  • Permanente bewoningJa
  • Onderhoud binnenGoed
  • Onderhoud buitenGoed
  • Huidig gebruikWoonruimte
  • Huidige bestemmingWoonruimte

Brandsma De Jong - Delfzijl

Kerkstraat 25
9934 CE Delfzijl
+31596 630 920

Vergelijkbare woningen

Hoofdafbeelding Gouverneurstraat 21

Gouverneurstraat 21

9901 HE Appingedam

€ 350.000,- k.k.

Hoofdafbeelding Heiliggravenweg 16

Heiliggravenweg 16

9901 CH Appingedam

€ 425.000,- k.k.

Verkocht onder voorbehoud
Hoofdafbeelding Roerdompstraat 15

Roerdompstraat 15

9903 EN Appingedam

€ 365.000,- k.k.

Hoofdafbeelding Ds. Syperdapad 6

Ds. Syperdapad 6

9901 TC Appingedam

€ 575.000,- k.k.

Over welke vestiging wilt u meer te weten komen?

Welke vestiging mag uw woning verkopen?