Hoofdafbeelding Bosuil 3
Foto 2
Foto
Home Aanbod Bosuil 3

Bosuil 3

9781 RC Bedum

€ 635.000,- k.k.

Fraaie vrijstaande woning op toplocatie in Bedum!

Ben je op zoek naar een comfortabel, royale woning in combinatie met een rustige en kindvriendelijke ligging? Dan hebben wij de match voor je gevonden. Gelegen nabij het Lofversbos biedt deze woning het perfecte evenwicht tussen natuur, privacy en bereikbaarheid. De volledig geïsoleerde woning is gebouwd in 1999 door de 1e bewoners die er met veel plezier hebben gewoond en met liefde hebben onderhouden. Ontwerp van de woning is tot stand gebracht door architect Wim de Kleine.

De begane grond is voorzien van vloerverwarming, wat zorgt voor een aangenaam en gelijkmatig comfort. Vloerverwarming werkt efficiënt en energiezuinig doordat de warmte gelijkmatig wordt verspreid. De woning is volledig geïsoleerd en daarmee uitstekend voorbereid op de toekomst. Een groot deel van de eigen energiebehoefte wordt opgewekt door 25 zonnepanelen en een warmtepomp zorgt op efficiënte en milieuvriendelijke wijze voor het verwarmen van de woning. Al deze maatregelen zorgen voor een duurzame woning waarin lage energielasten en modern wooncomfort hand in hand gaan.
Drie nette slaapkamers vind je op de verdieping, evenals een royale badkamer uitgevoerd en voorzien van comfort om de dag te beginnen of juist af te sluiten. Boven de garage is een ruimte van 22 m2, thans in gebruik als atelier, maar ook zeer geschikt als 4e slaapkamer, als kantoorruimte of praktijk aan huis. Kortom een veelzijdige ruimte met tal van mogelijkheden.

De woonwijk 'Uilennest' ligt aan de rand van het dorp, die bekend staat als een aantrekkelijk woongebied met een mix van gezinswoningen en ruime kavels. De buurt heeft een rustig en groen karakter, een veilige en prettige woonomgeving met voldoende ruimte voor kinderen om buiten te spelen.

Het levendige dorp Bedum beschikt over een uitstekend voorzieningenniveau zoals, winkelaanbod, supermarkten, scholen, sportverenigingen en sport accomodaties en goede openbaar vervoersverbindingen. Alles binnen handbereik.

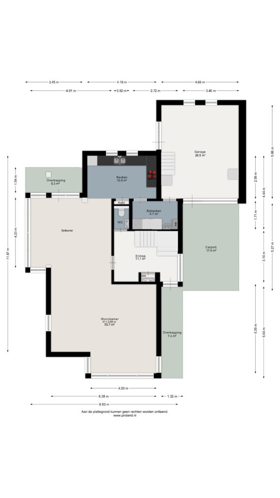
Indeling: entree, royale hal (ca 11 m²), meterkast, toilet en toegang tot de woon/eetkamer (totaal 56 m²) met veel lichtinval wat zorgt voor een prettig wooncomfort. Vervolgens de keuken (ca 11 m²) voorzien van inductie kookplaat, koelkast, magnetron en oven. Vanuit de keuken heb je toegang tot de bijkeuken van ca 5 m² met witgoedaansluiting, spoelbak en doorgang naar de garage van 27 m². Via een vaste trap in de garage kom je op de verdieping waar je toegang hebt tot een royale functionele ruimte (thans in gebruik als atelier) met pelletkachel (ter overname) en veel daglicht.
Op de verdieping van het woonhuis heb je via de overloop toegang tot studeer ruimte en 3 slaapkamers van ca 9, 11 en 13 m². Via de voorste slaapkamers heb je toegang tot het balkon aan de voorzijde van de woning. De keurige zolder die te bereiken is via een vaste trap in de studeer ruimte, is circa 11 m².

Rondom de woning ligt een verzorgde tuin waar je heerlijk kunt genieten van je privacy en het buitenleven.

Benieuwd of dit de woning is die bij je past? Maak dan snel een afspraak voor een bezichtiging

Algemene informatie
* Energielabel A van 2020 (nadien warmtepomp en uitbreiding zonnepanelen)
* Volledig geïsoleerd
* Berging van ca 13 m²

Algemeen

  • StatusBeschikbaar
  • Koopprijs€ 635.000,- k.k.
  • AanvaardingIn overleg

Bouwvorm

  • Soort objectWoonhuis
  • Soort woningEengezinswoning
  • Type woningVrijstaande woning
  • Bouwjaar1999
  • BouwvormBestaande bouw
  • LiggingenAan rustige weg, In woonwijk

Indeling

  • Woonoppervlakte174 m2
  • Perceeloppervlakte576 m2
  • Inhoud842 m3
  • Aantal kamers6
  • Aantal slaapkamers4
  • Aantal badkamers1

Energie

  • EnergieklasseA
  • VerwarmingCV ketel, Vloerverwarming gedeeltelijk, Warmtepomp
  • C.V.-KetelRemeha Calenta
  • Bouwjaar C.V.-Ketel2022
  • WarmwaterElektrische boiler eigendom
  • IsolatieVolledig geïsoleerd
  • CombiketelNee
  • BrandstofElektrisch
  • EigendomEigendom

Buitenruimte

  • TuinAchtertuin, Voortuin
  • HoofdtuinAchtertuin
  • Oppervlakte219 m2
  • Ligging hoofdtuinNoord
  • AchteromJa
  • Kwaliteit tuinVerzorgd

Bergruimte

  • Schuur / BergingVrijstaand hout
  • Totaal aantal1

Parkeergelegenheid

  • Parkeer faciliteitenOp eigen terrein
  • GarageGarage met carport
  • Capaciteit1
  • Garages1

Dak

  • Soort dakZadeldak
  • Materiaal dakPannen

Overig

  • Permanente bewoningJa
  • Onderhoud binnenGoed
  • Onderhoud buitenGoed
  • Huidig gebruikWoonruimte
  • Huidige bestemmingWoonruimte

Brandsma De Jong - Uithuizen

M.J. Bultenastraat 6
9981 JB Uithuizen
+31595 412 591

Over welke vestiging wilt u meer te weten komen?

Welke vestiging mag uw woning verkopen?

Brandsma de Jong

Vragen?

Wij helpen u graag