Hoofdafbeelding Wierdeweg 13
Foto
Foto 3
Home Aanbod Wierdeweg 13

Wierdeweg 13

9931 TC Delfzijl

€ 349.000,- k.k.

Vrijstaand wonen met comfort, rust en alle voorzieningen dichtbij...

In het rustige dorpje Uitwierde, vrijwel grenzend aan de bebouwing van Delfzijl, staat deze vrijstaande gemoderniseerde woning. Afgelopen jaren is het huis aan de binnenzijde volledige gestript en gemoderniseerd. Het huis biedt maar liefst 5 slaapkamers, waarvan 2 op de begane grond en 3 op de verdieping. Hierdoor is de woning uitermate geschikt voor gezinnen, levensloopbestendig wonen of een combinatie van wonen en werken aan huis. De achtertuin is beschut met volop privacy, een heerlijke plek waar kinderen veilig kunnen spelen en waar je in alle rust kunt genieten van het buitenleven.

Kortom: ben je op zoek naar een woning die je direct kunt betrekken, zonder te hoeven verbouwen of klussen, dan is dit een uitstekende kans. Het enige wat je hoeft te doen is je meubels verhuizen om te genieten van alles wat deze fijne woning te bieden heeft.

Uitwierde is een klein dorpje met ligging aan de Uitwierdermaar, die in verbinding staat met het Damsterdiep. Dit waterrijk gebeid, omgeven door natuur en het Groningse cultuurlandschap, is geliefd bij natuurliefhebbers en maakt deel uit van diverse kanoroutes. Een prachtige omgeving om actief te ontspannen en de natuur vanaf het water de beleven.

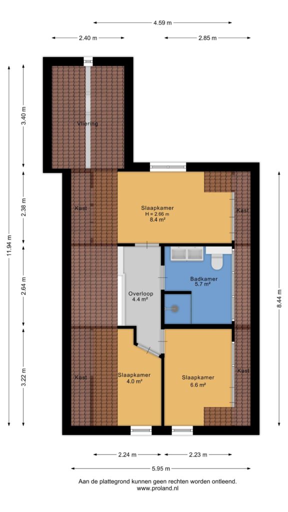
Indeling:
Entree, hal, toilet, slaapkamer (ca. 7 m²), woonkamer van ca. 30 m² en half open keuken (ca. 6 m²) voorzien van koelkast, combimagnetron, kookplaat en vaatwasser. Via de tuindeuren heb je direct toegang tot de tuin. Vanuit de keuken kom je in de bijkeuken van ca. 6 m² en vervolgens de 2e L-vormige slaapkamer van ca. 15 m².
Op de verdieping tref je 3 slaapkamers van ca. 4, 7 en 8 m² en een moderne badkamer (ca. 6 m²) met dubbele wastafel, 2e toilet en doucheruimte.

Algemene informatie:
* Vrijstaande houten tuinberging;
* Kunststof kozijnen (achtergevel) met HR++ glas;
* Overige kozijnen Meranti hout;
* CV ketel (2021);
* Airconditioning (2025).

Algemeen

  • StatusBeschikbaar
  • Koopprijs€ 349.000,- k.k.
  • AanvaardingIn overleg

Bouwvorm

  • Soort objectWoonhuis
  • Soort woningEengezinswoning
  • Type woningVrijstaande woning
  • Bouwjaar1964
  • BouwvormBestaande bouw
  • LiggingenAan rustige weg

Indeling

  • Woonoppervlakte101 m2
  • Perceeloppervlakte508 m2
  • Inhoud377 m3
  • Aantal kamers6
  • Aantal slaapkamers5
  • Aantal badkamers1

Energie

  • EnergieklasseD
  • VerwarmingCV ketel
  • C.V.-KetelIntergas HRE 36/30 CW5
  • Bouwjaar C.V.-Ketel2021
  • WarmwaterCV ketel
  • IsolatieDakisolatie, Muurisolatie, Dubbelglas, HR glas
  • CombiketelJa
  • BrandstofGas
  • EigendomEigendom

Buitenruimte

  • TuinAchtertuin, Voortuin
  • HoofdtuinAchtertuin
  • Oppervlakte305 m2
  • Ligging hoofdtuinZuidoost
  • AchteromJa
  • Kwaliteit tuinNormaal

Bergruimte

  • Schuur / BergingVrijstaand hout
  • VoorzieningenVoorzien van elektra
  • Totaal aantal1

Parkeergelegenheid

  • Parkeer faciliteitenOp eigen terrein
  • GarageGeen garage

Dak

  • Soort dakZadeldak
  • Materiaal dakPannen

Overig

  • Permanente bewoningJa
  • Onderhoud binnenGoed
  • Onderhoud buitenGoed
  • Huidig gebruikWoonruimte
  • Huidige bestemmingWoonruimte

Brandsma De Jong - Uithuizen

M.J. Bultenastraat 6
9981 JB Uithuizen
+31595 412 591

Vergelijkbare woningen

Hoofdafbeelding Ringoven 20

Ringoven 20

9934 LD Delfzijl

€ 225.000,- k.k.

Verkocht onder voorbehoud
Hoofdafbeelding Jacob van Heemskerkstraat 4

Jacob van Heemskerkstraat 4

9934 GV Delfzijl

€ 250.000,- k.k.

Hoofdafbeelding De Wending 56

De Wending 56

9933 KN Delfzijl

€ 325.000,- k.k.

Hoofdafbeelding Burgemeester Buiskoolplein 19

Burgemeester Buiskoolplein 19

9934 PA Delfzijl

€ 175.000,- k.k.

Over welke vestiging wilt u meer te weten komen?

Welke vestiging mag uw woning verkopen?