Hoofdafbeelding Eemskanaal Z.Z. 4
Foto
Foto 2
Home Aanbod Eemskanaal Z.Z. 4

Eemskanaal Z.Z. 4

9936 AM Farmsum

€ 150.000,- k.k.

Het huidige Eemskanaal is oorspronkelijk aangelegd in de periode tussen 1866 en 1876, waarbij het onder andere de stad Groningen verbindt met de havenplaats Delfzijl aan de Eems. Zeker na de verbreding van het kanaal in 1953 is het een belangrijke scheepvaartverbinding tussen beide steden geworden. Aan het begin - gemeten vanuit de Eems - van het kanaal in de plaats Farmsum is grenzend aan het water in het begin van de vorige eeuw een kleinschalig appartementencomplex gebouwd, bestaande uit een tweetal appartementsrechten. Brandsma De Jong mag u hiervan de de verrassend ruime maisonnette op de begane grond te koop aanbieden, die in de eerste plaats beschikt over een ruime woonkamer met fraai uitzicht over het Eemskanaal en richting de Farmsumer jachthaven. Het appartement beschikt daarbij over een volledig souterrain met thans één slaapkamer, waarbij er de mogelijkheid bestaat voor een tweede slaapkamer. Tevens bevindt zich een patio aan de achterzijde welke is gesitueerd op het zuidoosten.

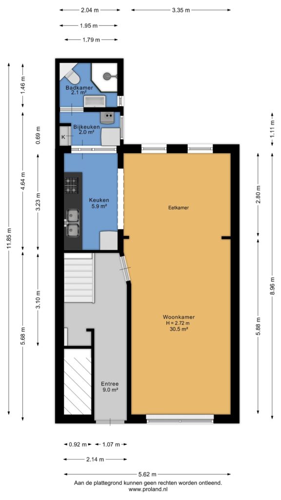
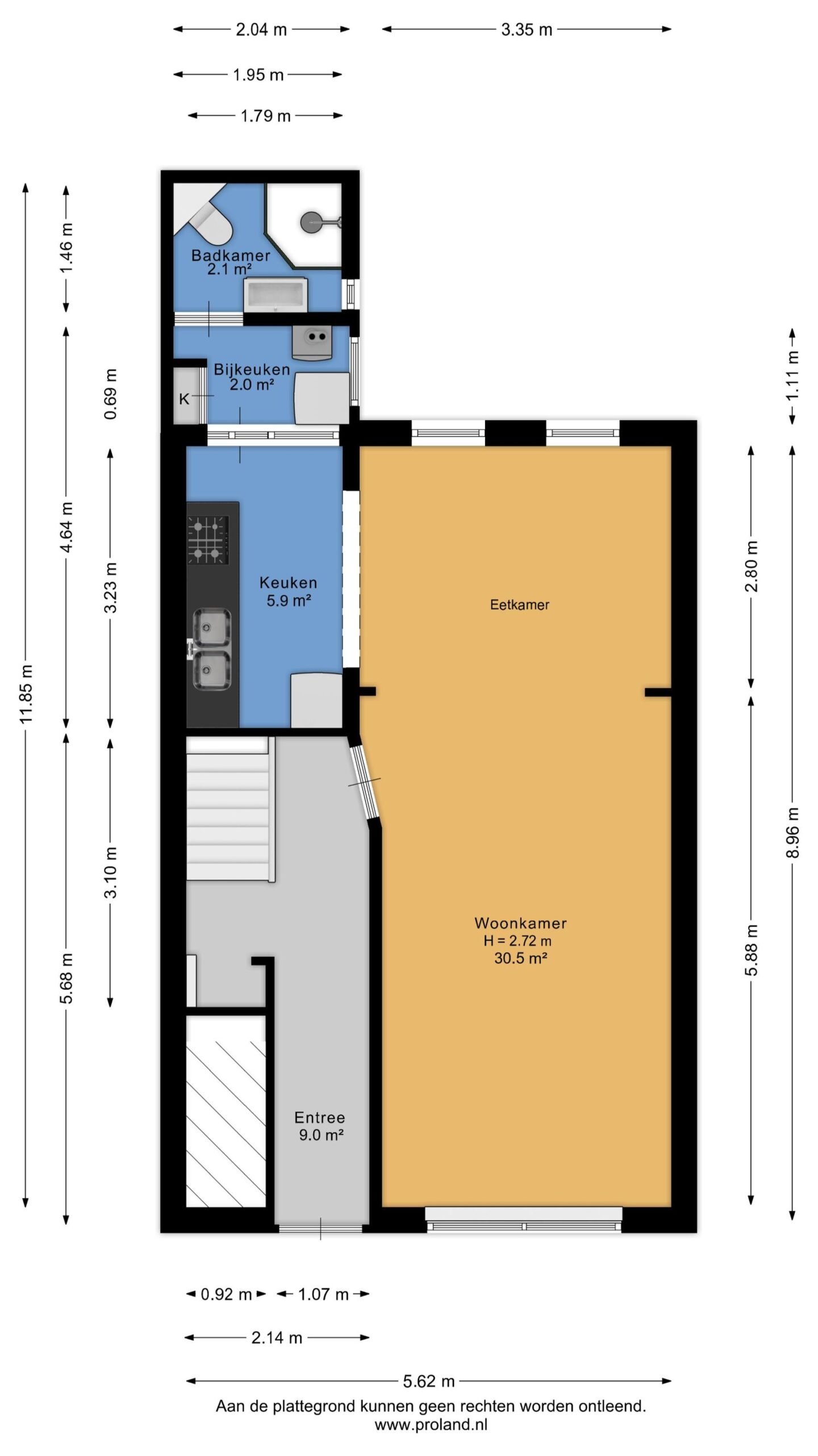
Indeling:

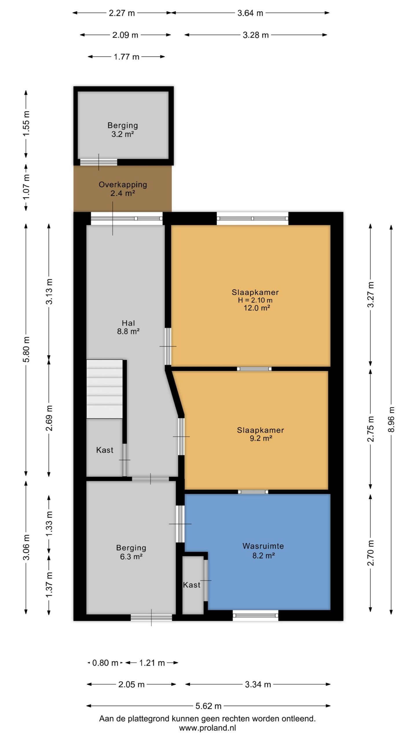
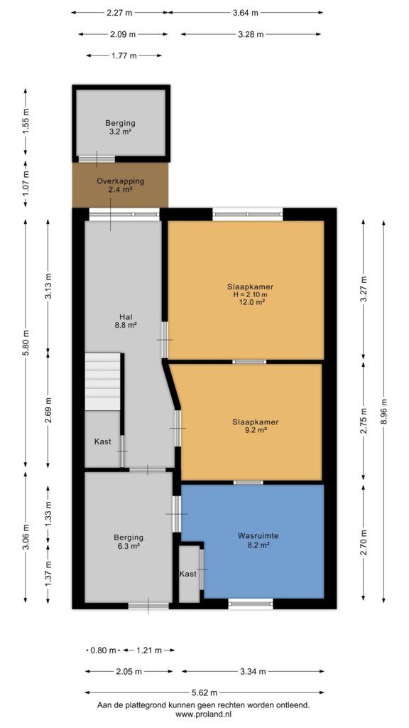
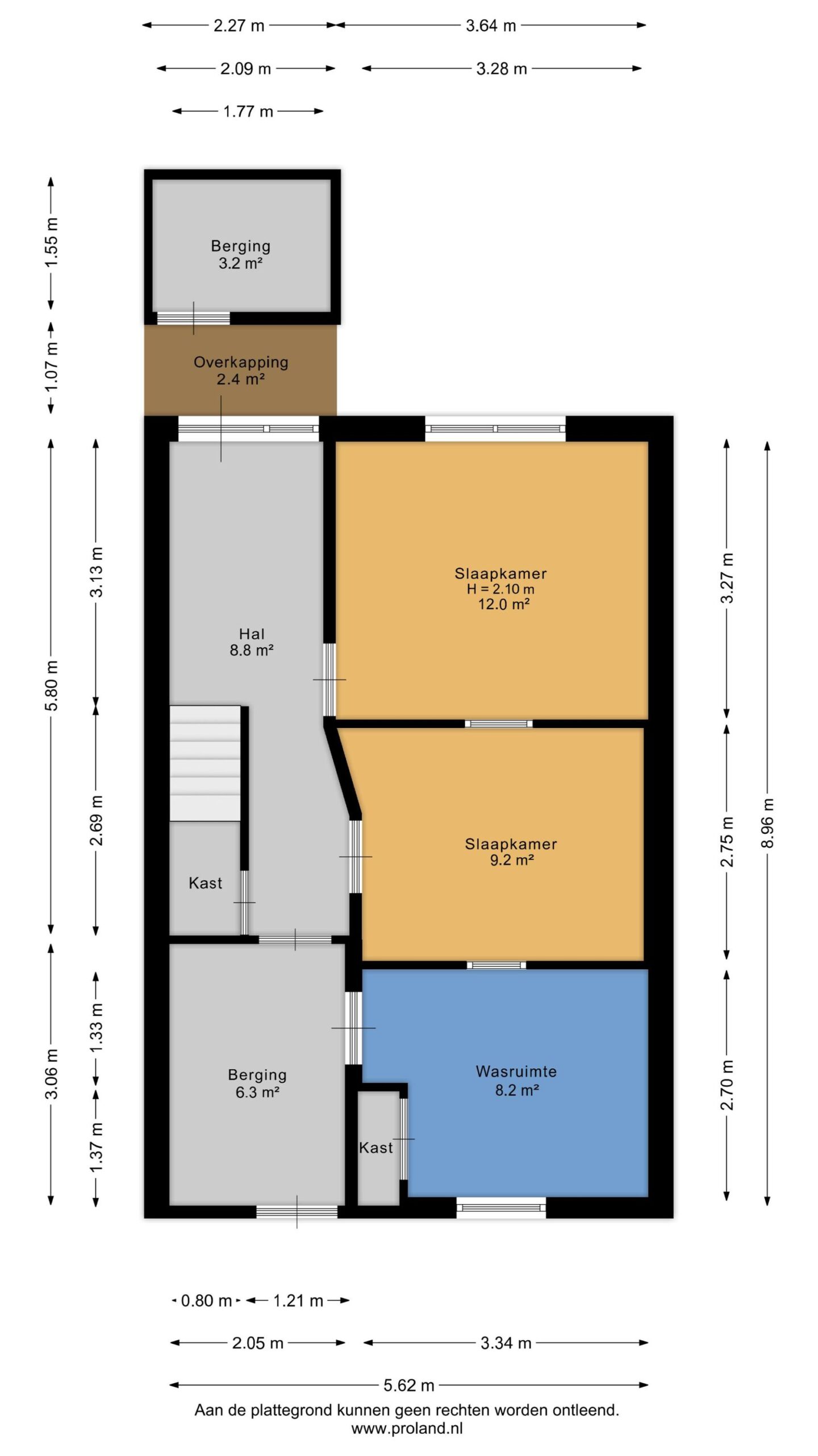
Souterrain:
Berging (ca. 6,0 m²; met tweede entreemogelijkheid), aangrenzende wasruimte (ca. 8 m²; met kastruimte), hal met kastruimte, opgang naar de verdieping, achterdeur en aangrenzend kamer (ca. 9 m²) en slaapkamer (ca. 12 m²).

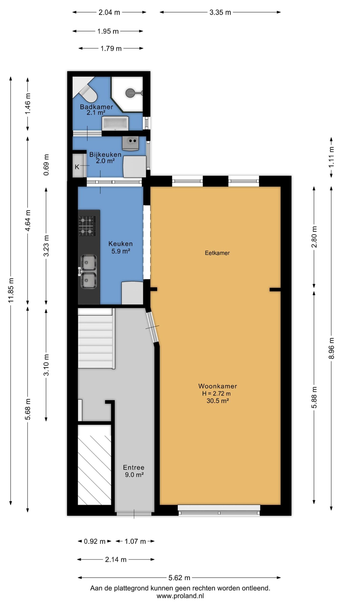
Begane grond:
Entree/hal met trap naar het souterrain en aangrenzende doorzonwoonkamer (ca. 30,5 m²), half open keuken (ca. 6 m²: met eenvoudig keukenblok voorzien van 4-pits gaskookplaat en afzuigkap), bijkeuken (ca. 2 m²; met cv-opstelling en witgoedaansluiting) en badkamer (ca. 2 m²; met douchecabine, wastafelmeubel en toilet).

Buitenruimte:
- Stenen berging (ca. 3 m²);
- Patio (ca. 9 m²).

Extra informatie:
- Verwarming en warmwatervoorziening middels cv-combiketel Remeha Avanta, bouwjaar 2015, eigendom;
- Deels voorzien van houten kozijnen met grotendeels isolerende beglazing, deels van kunststof kozijnen met HR-beglazing;
- Voor zo ver bekend geen SNN subsidie Verduurzaming en Verbetering Groningen;
- VVE bijdrage €100,- per maand;
- Aan de koper wordt een bedrag van ca. €4000,- aan IMG gelden notarieel overgedragen.

Algemeen

  • StatusBeschikbaar
  • Koopprijs€ 150.000,- k.k.
  • AanvaardingIn overleg

Bouwvorm

  • Soort objectAppartement
  • Soort appartementMaisonnette
  • Bouwjaar1915
  • BouwvormBestaande bouw
  • LiggingenAan water, Vrij uitzicht, Aan vaarwater

Indeling

  • Woonoppervlakte98 m2
  • Inhoud337 m3
  • Aantal kamers3
  • Aantal slaapkamers1
  • Aantal badkamers1
  • Aantal woonlagen2

Energie

  • EnergieklasseC
  • VerwarmingCV ketel
  • C.V.-KetelRemeha
  • Bouwjaar C.V.-Ketel2015
  • WarmwaterCV ketel
  • IsolatieGrotendeels dubbelglas, HR glas
  • CombiketelJa
  • BrandstofGas
  • EigendomEigendom

Buitenruimte

  • TuinPatio atrium
  • HoofdtuinPatio atrium
  • Oppervlakte9 m2
  • Ligging hoofdtuinZuidoost
  • AchteromNee
  • Kwaliteit tuinNormaal

Bergruimte

  • Schuur / BergingVrijstaand steen
  • Totaal aantal1

Parkeergelegenheid

  • Parkeer faciliteitenOpenbaar parkeren
  • GarageGeen garage

Dak

  • Soort dakPlat dak
  • Materiaal dakBitumineuze Dakbedekking

Overig

  • Permanente bewoningJa
  • Onderhoud binnenRedelijk
  • Onderhoud buitenRedelijk tot goed
  • Huidig gebruikWoonruimte
  • Huidige bestemmingWoonruimte

Brandsma De Jong - Delfzijl

Kerkstraat 25
9934 CE Delfzijl
+31596 630 920

Over welke vestiging wilt u meer te weten komen?

Welke vestiging mag uw woning verkopen?