Hoofdafbeelding Mondriaanstraat 52
Foto
Foto 2
Home Aanbod Mondriaanstraat 52

Mondriaanstraat 52

9718 MK Groningen

€ 375.000,- k.k.

SFEERVOLLE BENEDENWONING IN DE SCHILDERSBUURT | ENERGIELABEL A | 3 SLAAPKAMERS | DIEPE ZONNIGE TUIN

Aan de Mondriaanstraat 52 in Groningen staat deze op de hoek gelegen benedenwoning met drie slaapkamers, een zonnige achtertuin en energielabel A. Met een woonoppervlakte van 87 m², een aangebouwde stenen berging, zonnepanelen, een cv-ketel uit 2021 én goede isolatie (dak-, muur- en vloerisolatie) woont u hier comfortabel en energiezuinig. Bovendien zijn alle ruimten die u van een eengezinswoning mag verwachten aanwezig. De tuingerichte woonkamer biedt een fraai uitzicht op de karakteristieke watertoren.

De woning is gelegen in een rustige straat in de geliefde Schildersbuurt: een karakteristieke wijk met een prettige mix van jonge gezinnen, starters en stadsliefhebbers. In de directe omgeving vindt u supermarkten, buurtwinkels, basisscholen, kinderopvang en sportfaciliteiten. Ook het Noorderplantsoen ligt op korte afstand – ideaal voor een wandeling, hardloopsessie of een zomerse picknick.

Met meerdere bushaltes in de buurt en het centraal station op enkele minuten fietsen is de bereikbaarheid uitstekend. Binnen enkele minuten staat u bovendien in het bruisende stadscentrum van Groningen met een breed aanbod aan winkels, horeca en culturele voorzieningen. Hier woont u rustig en groen, met alle stadse dynamiek binnen handbereik.

Indeling

Begane grond
Via de entree komt u in een ruime hal met toegang tot het toilet, de woonkamer en de trap naar de eerste verdieping. De lichte woonkamer vormt het hart van de woning en beschikt over grote raampartijen die zorgen voor een prettige lichtinval. De open keuken bevindt zich aan de voorzijde van de woning en is praktisch ingedeeld.

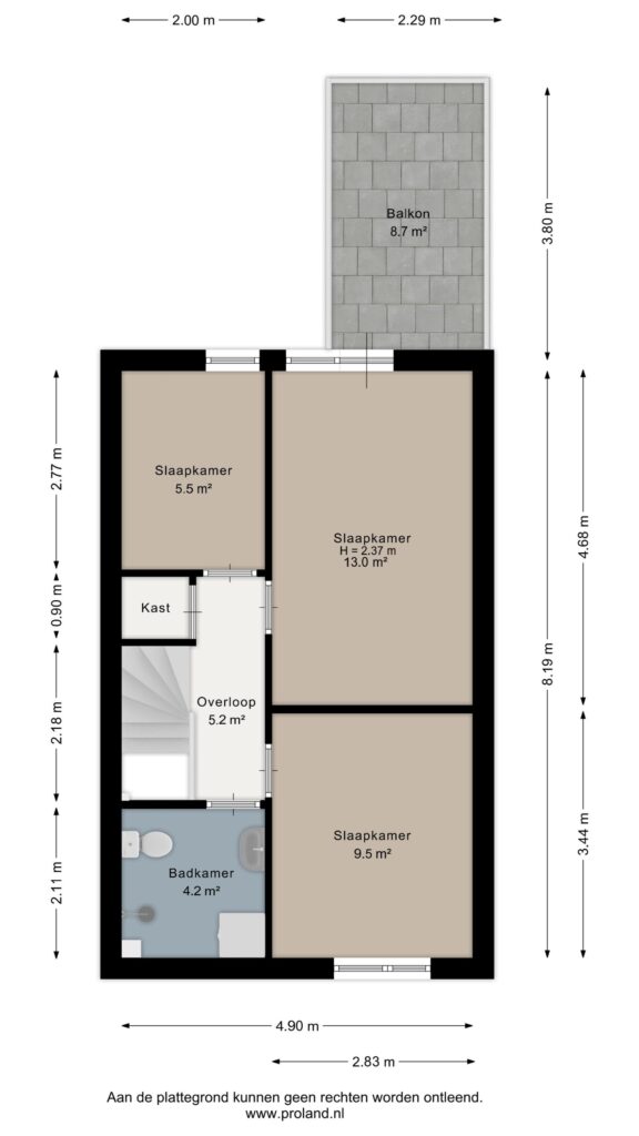
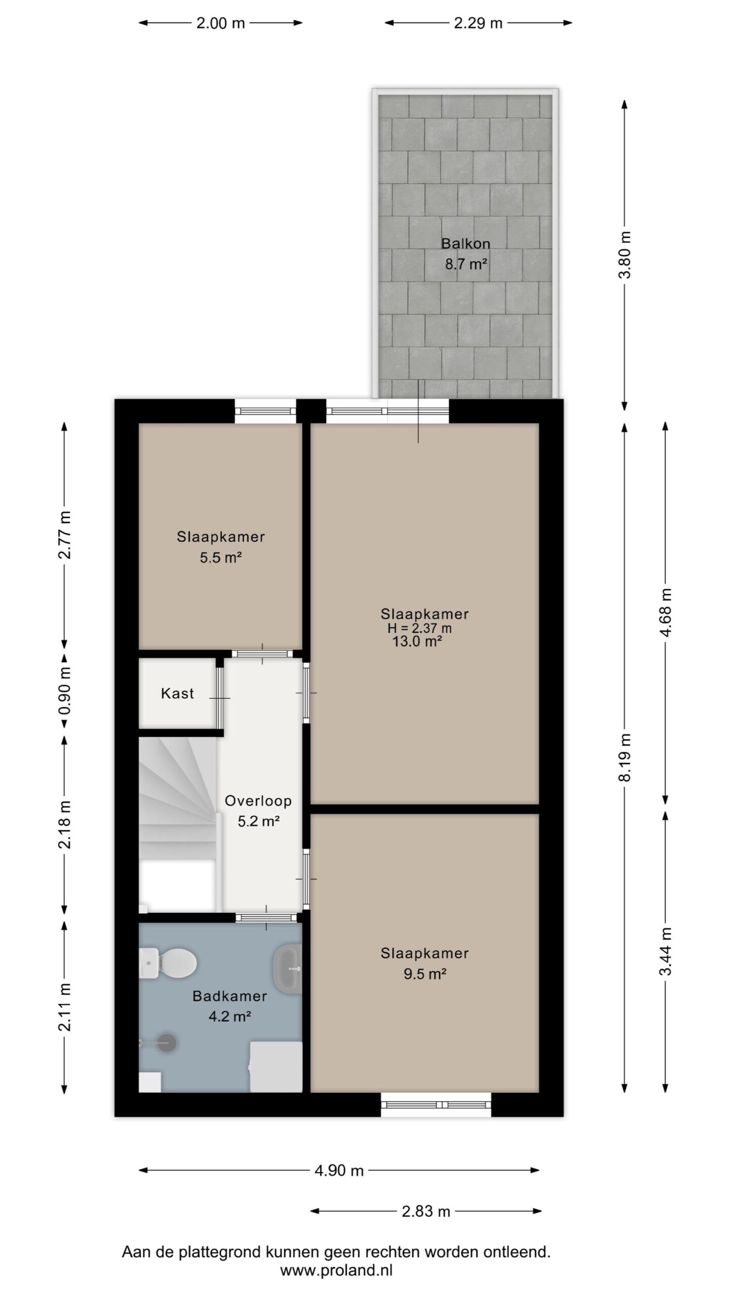
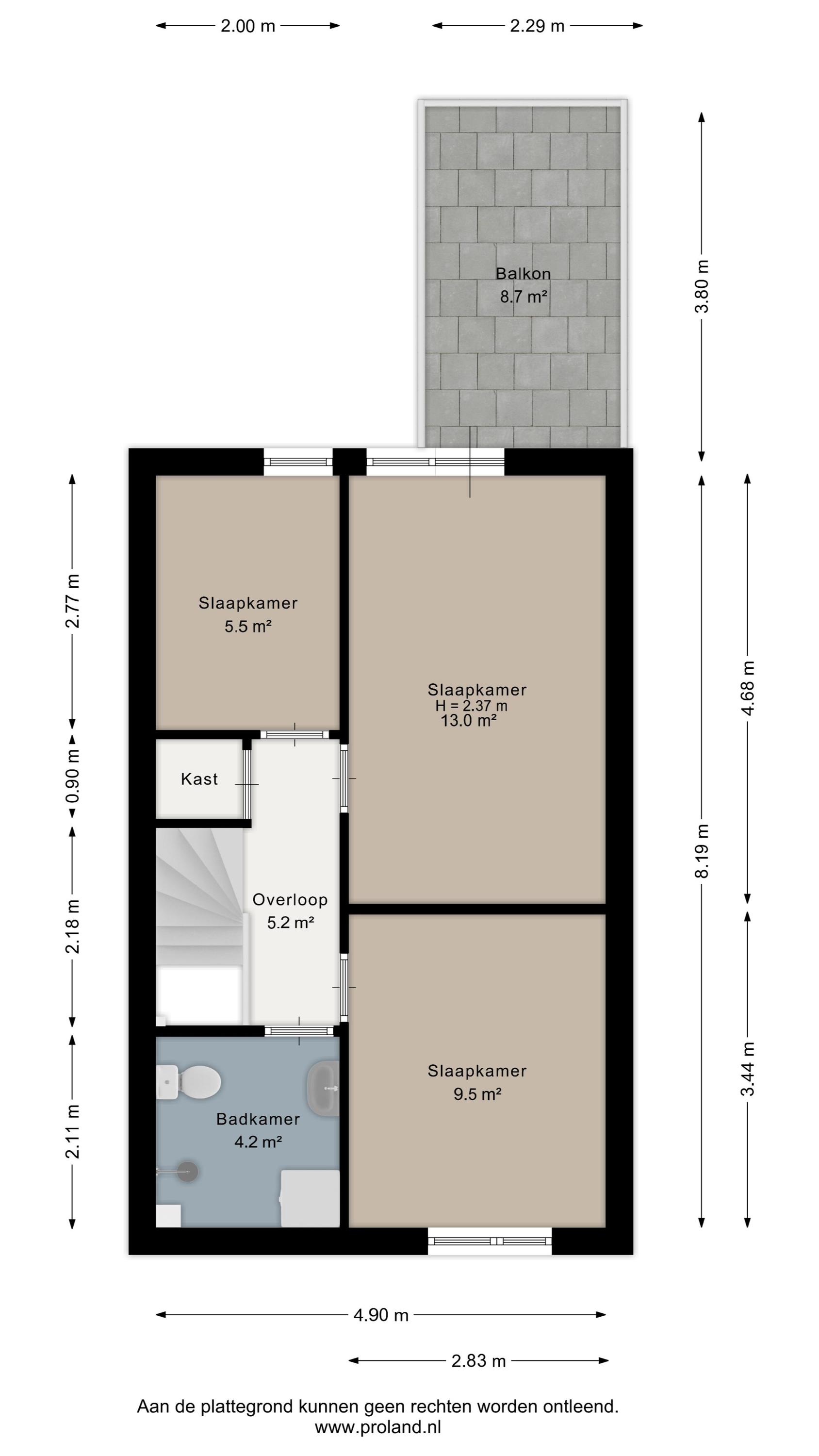
Eerste verdieping
Op de verdieping bevinden zich drie slaapkamers, waarvan één toegang geeft tot het balkon. Ook de badkamer is hier gesitueerd. Deze is uitgerust met een douche, wastafel, toilet en wasmachineaansluiting.

Buitenruimte
Vanuit de woonkamer heb je direct toegang tot de achtertuin. De diepe, zonnige tuin biedt volop ruimte om heerlijk buiten te zitten. Daarnaast is er een aangebouwde stenen berging aanwezig, ideaal voor het stallen van fietsen en extra opslag.

Bijzonderheden
- Drie slaapkamers
- Energielabel A
- Intergas Kompakt HRE cv-ketel (2021, eigendom)
- Voorzien van dak-, muur- en vloerisolatie en gedeeltelijk dubbel glas
- Zonnepanelen aanwezig
- Aangebouwde stenen berging
- VvE ingeschreven bij KvK

Wilt u deze woning zelf ervaren? Maak dan snel een afspraak voor een bezichtiging.

De vermelde informatie is van algemene aard en is niet meer dan een uitnodiging om in onderhandeling te treden. Aan de inhoud van deze informatie kunnen geen rechten worden ontleend.

Algemeen

  • StatusOnder bod
  • Koopprijs€ 375.000,- k.k.
  • AanvaardingIn overleg

Bouwvorm

  • Soort objectAppartement
  • Soort appartementBenedenwoning
  • Bouwjaar1979
  • BouwvormBestaande bouw

Indeling

  • Woonoppervlakte87 m2
  • Inhoud334 m3
  • Aantal kamers4
  • Aantal slaapkamers3
  • Aantal badkamers1
  • Aantal woonlagen2

Energie

  • EnergieklasseA
  • VerwarmingCV ketel
  • C.V.-KetelIntergas Kompakt hre
  • Bouwjaar C.V.-Ketel2021
  • WarmwaterCV ketel
  • IsolatieDakisolatie, Muurisolatie, Vloerisolatie, Gedeeltelijk dubbelglas
  • CombiketelNee
  • EigendomEigendom

Buitenruimte

  • TuinAchtertuin
  • AchteromNee
  • Kwaliteit tuinNormaal

Bergruimte

  • Schuur / BergingAangebouwd steen
  • VoorzieningenVoorzien van elektra
  • Totaal aantal1

Parkeergelegenheid

  • Parkeer faciliteitenOpenbaar parkeren, Betaald parkeren, Parkeervergunningen
  • GarageGeen garage

Dak

  • Soort dakSamengesteld dak

Overig

  • Permanente bewoningJa
  • Onderhoud binnenGoed
  • Onderhoud buitenGoed
  • Huidig gebruikWoonruimte
  • Huidige bestemmingWoonruimte

Lagro Ebens

Oude Ebbingestraat 91
9712 HG Groningen
(050) 318 40 80

Vergelijkbare woningen

Hoofdafbeelding Jakob Israël de Haanstraat 61

Jakob Israël de Haanstraat 61

9745 DP Groningen

€ 415.000,- k.k.

Hoofdafbeelding Diephuisstraat 13

Diephuisstraat 13

9714 GS Groningen

€ 210.000,- k.k.

Hoofdafbeelding Vechtstraat 59

Vechtstraat 59

9725 CT Groningen

€ 270.000,- k.k.

Over welke vestiging wilt u meer te weten komen?

Welke vestiging mag uw woning verkopen?

Brandsma de Jong

Vragen?

Wij helpen u graag