Hoofdafbeelding Robijnstraat 10
Foto
Foto 3
Home Aanbod Robijnstraat 10

Robijnstraat 10

9743 KR Groningen

€ 345.000,- k.k.

RUIME GEZINSWONING | 4 SLAAPKAMERS | ENERGIELABEL A | NABIJ VOORZIENINGEN EN GROEN

In het noordelijke gedeelte van de wijk Vinkhuizen ligt deze verzorgde eengezinswoning uit 1971. De woning biedt met een woonoppervlakte van 126 m², vier slaapkamers en een achtertuin op het zuiden volop ruimte voor het hele gezin. Dankzij onder andere de kunststof kozijnen, de dak-, muur- en vloerisolatie, HR+++ beglazing en een moderne cv-ketel (Remeha CW4, 2023) is dit een comfortabele en energiezuinige woning.

De wijk Vinkhuizen staat bekend om haar groene opzet en kindvriendelijke karakter. Op loopafstand vind je speelvoorzieningen, scholen, sportvelden en buurtwinkels. Ook zijn er uitstekende busverbindingen richting het centrum van Groningen en liggen natuurgebieden zoals De Held en het Reitdiepgebied binnen handbereik. Een ideale woonlocatie voor wie rustig wil wonen met de stad altijd dichtbij.

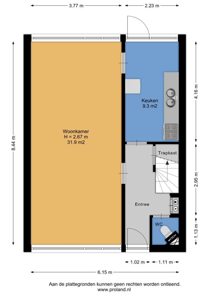
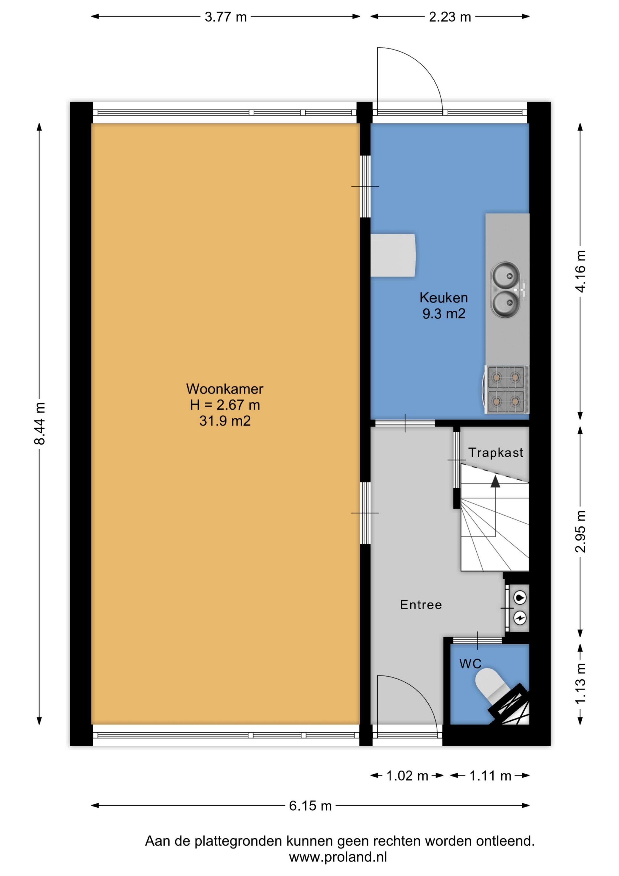
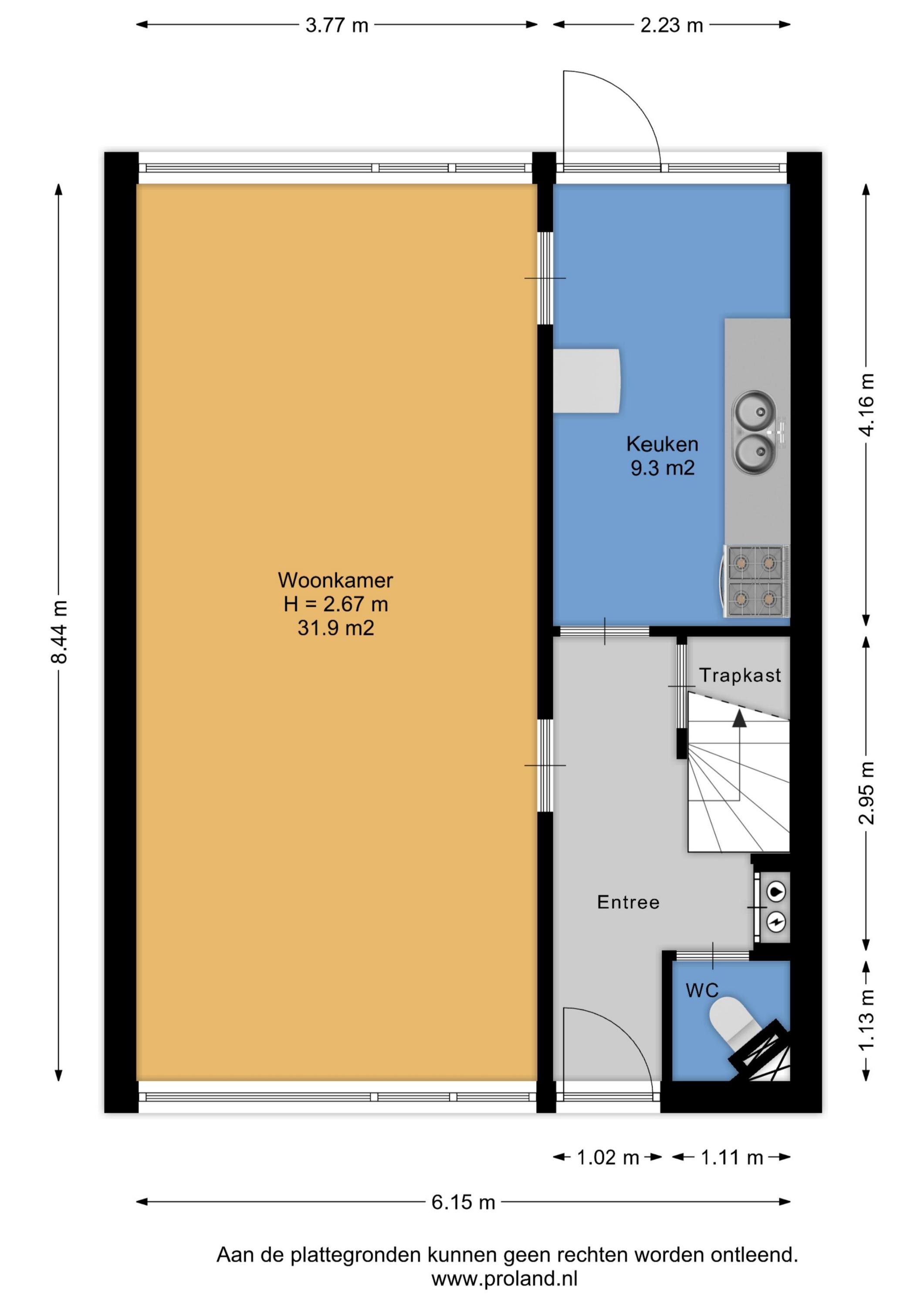
Via de entree kom je in de hal met toilet en trapopgang. De woonkamer is ruim en licht, met grote raampartijen aan zowel de voor- als achterzijde. De aangrenzende keuken biedt toegang tot de achtertuin. Op de eerste verdieping bevinden zich drie slaapkamers, een ruime walk-in-closet en de moderne badkamer met wastafelmeubel, douche en tweede toilet.

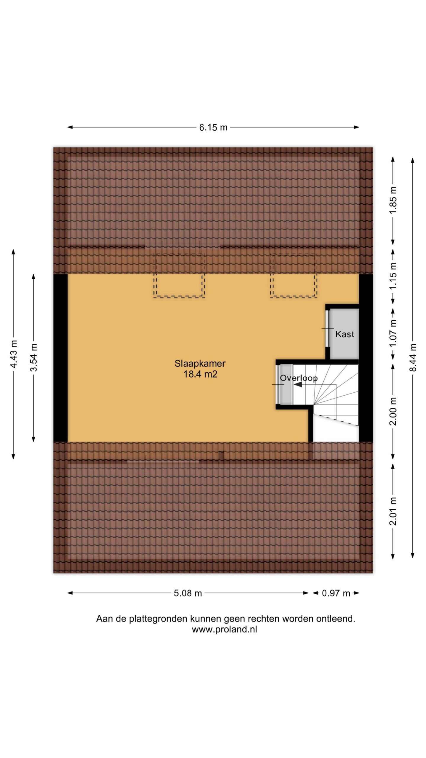
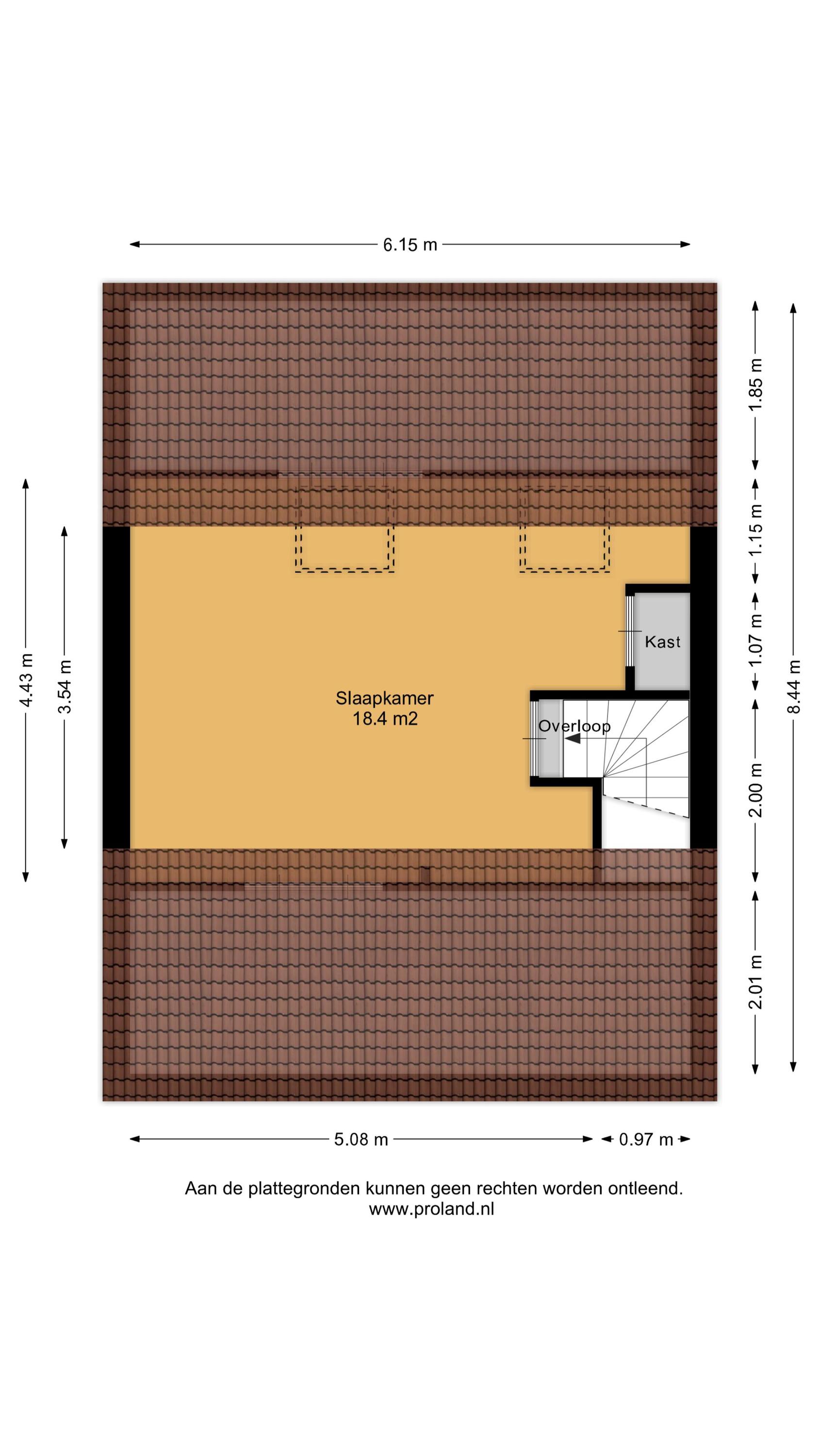
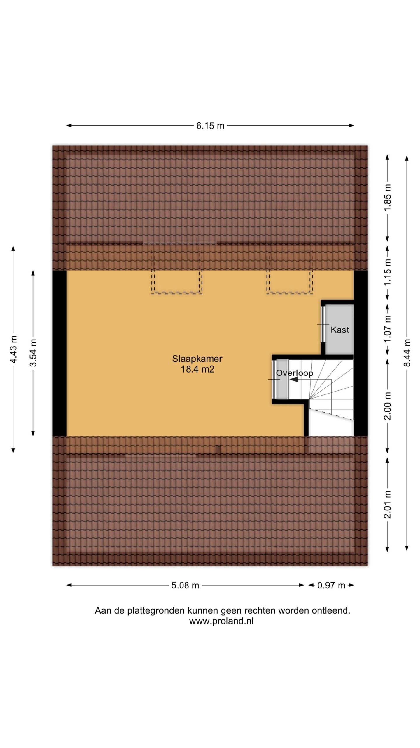
De tweede verdieping beschikt over een royale zolderkamer met dakraam, ideaal als vierde slaapkamer, werk- of hobbyruimte. Ook is er veel bergruimte aanwezig. Tevens biedt deze verdieping mogelijkheden voor bijv. het creëren van een extra slaap- of werkkamer.

De zonnige achtertuin is ca. 49 m² groot, op het zuiden gelegen en biedt meer dan genoeg ruimte voor o.a. een zitgedeelte en beschikt over een vrijstaande stenen berging met achterom.

Bijzonderheden:
- Woonoppervlakte ca. 126 m², perceel 117 m²
- Dak-, muur- en vloerisolatie, HR+++ glas
- volledig voorzien van kunststof kozijnen
- Cv-ketel Remeha CW4 (2023, eigendom)
- Vier slaapkamers
- Achtertuin met stenen berging en achterom
- Energielabel A
- Gelegen in het rustige en groene deel van Vinkhuizen
- Openbare parkeergelegenheid direct voor de deur

Vraagprijs: € 345.000,- kosten koper

Wilt u deze nette en comfortabele woning zelf ervaren? Neem dan contact met ons op voor een bezichtiging. Wij leiden u graag rond!

Algemeen

  • StatusBeschikbaar
  • Koopprijs€ 345.000,- k.k.
  • AanvaardingIn overleg

Bouwvorm

  • Soort objectWoonhuis
  • Soort woningEengezinswoning
  • Type woningTussenwoning
  • Bouwjaar1971
  • BouwvormBestaande bouw
  • LiggingenIn woonwijk

Indeling

  • Woonoppervlakte126 m2
  • Perceeloppervlakte117 m2
  • Inhoud439 m3
  • Aantal kamers5
  • Aantal slaapkamers4
  • Aantal badkamers1

Energie

  • EnergieklasseA
  • VerwarmingCV ketel
  • C.V.-KetelRemeha CW4
  • Bouwjaar C.V.-Ketel2023
  • WarmwaterCV ketel
  • IsolatieDakisolatie, Muurisolatie, Vloerisolatie
  • CombiketelJa
  • BrandstofGas
  • EigendomEigendom

Buitenruimte

  • TuinAchtertuin
  • HoofdtuinAchtertuin
  • Oppervlakte49 m2
  • Ligging hoofdtuinZuid
  • AchteromJa
  • Kwaliteit tuinNormaal

Bergruimte

  • Schuur / BergingVrijstaand steen
  • Totaal aantal1

Parkeergelegenheid

  • Parkeer faciliteitenOpenbaar parkeren
  • GarageGeen garage

Dak

  • Soort dakZadeldak
  • Materiaal dakPannen

Overig

  • Permanente bewoningJa
  • Onderhoud binnenGoed
  • Onderhoud buitenGoed
  • Huidig gebruikWoonruimte
  • Huidige bestemmingWoonruimte

Lagro Ebens

Oude Ebbingestraat 91
9712 HG Groningen
(050) 318 40 80

Vergelijkbare woningen

Hoofdafbeelding Graspad 53

Graspad 53

9713 NH Groningen

€ 289.000,- k.k.

Hoofdafbeelding Ubbo Emmiussingel 47f

Ubbo Emmiussingel 47f

9711 BD Groningen

€ 325.000,- k.k.

Verkocht onder voorbehoud
Hoofdafbeelding Flemingstraat 6

Flemingstraat 6

9728 GZ Groningen

€ 335.000,- k.k.

Verkocht onder voorbehoud
Hoofdafbeelding Jensemaheerd 107

Jensemaheerd 107

9736 CH Groningen

€ 398.000,- k.k.

Over welke vestiging wilt u meer te weten komen?

Welke vestiging mag uw woning verkopen?