Hoofdafbeelding Selwerderstraat 1
Foto
Foto 2
Home Aanbod Selwerderstraat 1

Selwerderstraat 1

9717 GJ Groningen

€ 280.000,- k.k.

KARAKTERISTIEKE SCHIPPERSWONING | CENTRALE LIGGING | TWEE SLAAPKAMERS | STARTERS-/KLUSWONING

Wonen op een van de mooiste plekjes van Groningen? In de geliefde Noorderplantsoenbuurt staat aan de Selwerderstraat deze charmante en karaktervolle schipperswoning met prachtige gevel te koop! Een unieke kans voor wie op zoek is naar sfeer, locatie én de mogelijkheid om een woning volledig naar eigen wens te moderniseren, in te richten en bewonen.

Deze woning uit circa 1890 ademt historie en past perfect in het authentieke straatbeeld. Met een woonoppervlakte van ca. 64 m² en een praktische indeling, inclusief twee slaapkamers, biedt dit huis een fijne basis voor starters of stadsliefhebbers die hun eigen stempel willen drukken. Bovendien zijn er in de afgelopen jaren al belangrijke verbeteringen doorgevoerd, zoals de plaatsing van een moderne Intergas Xtreme cv-ketel (2021), dak- en muurisolatie en deels vernieuwde beglazing.

De ligging maakt het plaatje compleet. Op steenworp afstand ligt het geliefde Noorderplantsoen: dé plek om te ontspannen, sporten of genieten van het groen. Daarnaast bevinden het bruisende stadscentrum, de universiteit, gezellige horeca en diverse voorzieningen zich allemaal op loop- of fietsafstand. De Selwerderstraat zelf is een rustige straat, midden in een levendige en karakteristieke buurt.

Kortom: een sfeervolle woning op een toplocatie, met volop potentie om jouw droomplek in de stad te creëren!

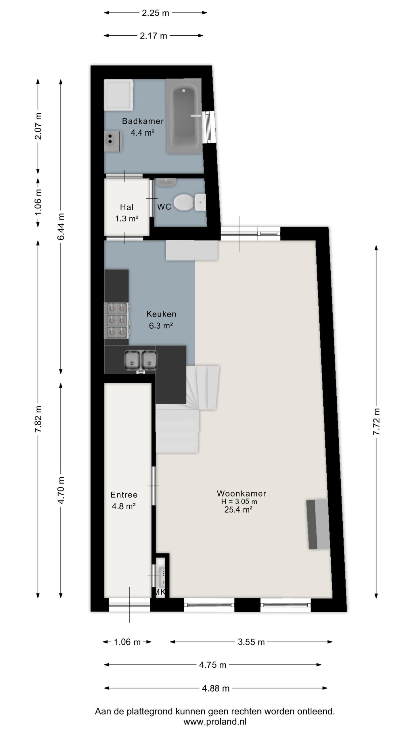
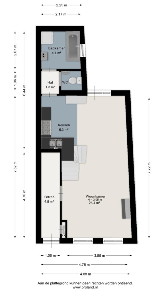
Indeling

Begane grond
Via de entree aan de voorzijde komt u binnen in de hal met meterkast. Vanuit hier heeft u toegang tot de woonkamer.

De woonkamer bevindt zich aan de voorzijde van de woning en is dankzij de raampartijen aangenaam licht. Dit vormt het centrale leefgedeelte van de woning, met voldoende ruimte voor zowel een zit- als eethoek. Vanuit de woonkamer is tevens de trapopgang naar de eerste verdieping bereikbaar.

Aan de achterzijde van de woning bevindt zich de keuken, die in open verbinding staat met de woonkamer. Vanuit de keuken bereikt u een tweede hal, welke toegang geeft tot het toilet en de badkamer. De badkamer is voorzien van een ligbad met douche en een wasmachineaansluiting.

Eerste verdieping
Via de trap in de woonkamer bereikt u de overloop op de eerste verdieping. De overloop verbindt beide slaapkamers en biedt daarnaast ruimte voor bijvoorbeeld het plaatsen van een kast of extra bergruimte.

Aan de voorzijde van de woning bevindt zich de eerste slaapkamer. Aan de achterzijde ligt de tweede slaapkamer, die in 2022 is vergroot door het verlengen van het dak. Hierdoor is hier merkbaar extra ruimte ontstaan en voelt deze kamer comfortabeler aan.

Buitenruimte
De woning beschikt over een compacte tuin. Daarnaast is er vanuit één van de slaapkamers toegang tot het dak, wat mogelijkheden biedt voor bijvoorbeeld onderhoud of incidenteel gebruik.

Bijzonderheden
- Gelegen in de populaire Noorderplantsoenbuurt
- Nabij het centrum van Groningen
- Woning met karakter (bouwjaar 1890)
- Energielabel D
- Twee slaapkamers
- CV-ketel Intergas Xtreme (2021)
- Voorzien van dak- en muurisolatie
- Betonvloer op de begane grond
- Slaapkamer achterzijde vergroot door dakverleging (2022)
- Woning dient gemoderniseerd te worden (keuken en sanitair)

Vraagprijs: € 280.000,- kosten koper
Aanvaarding: in overleg

Interesse? Neem contact met ons op voor een bezichtiging en ervaar de mogelijkheden van deze woning zelf!

De vermelde informatie is van algemene aard en is niet meer dan een uitnodiging om in onderhandeling te treden. Aan de inhoud van deze informatie kunnen geen rechten worden ontleend.

Algemeen

  • StatusBeschikbaar
  • Koopprijs€ 280.000,- k.k.
  • AanvaardingIn overleg

Bouwvorm

  • Soort objectWoonhuis
  • Soort woningEengezinswoning
  • Type woningTussenwoning
  • Bouwjaar1890
  • BouwvormBestaande bouw
  • LiggingenAan rustige weg, In woonwijk

Indeling

  • Woonoppervlakte64 m2
  • Perceeloppervlakte55 m2
  • Inhoud267 m3
  • Aantal kamers3
  • Aantal slaapkamers2
  • Aantal badkamers1

Energie

  • EnergieklasseD
  • VerwarmingCV ketel
  • C.V.-KetelIntergas Xtreme 24CW3
  • Bouwjaar C.V.-Ketel2021
  • WarmwaterCV ketel
  • IsolatieDakisolatie, Muurisolatie, Gedeeltelijk dubbelglas
  • CombiketelJa
  • BrandstofGas
  • EigendomEigendom

Buitenruimte

  • TuinAchtertuin
  • HoofdtuinAchtertuin
  • Oppervlakte5 m2
  • Ligging hoofdtuinNoordoost
  • AchteromNee
  • Kwaliteit tuinNormaal

Parkeergelegenheid

  • Parkeer faciliteitenOpenbaar parkeren, Betaald parkeren, Parkeervergunningen
  • GarageGeen garage

Dak

  • Soort dakSamengesteld dak
  • Materiaal dakPannen

Overig

  • Permanente bewoningJa
  • Onderhoud binnenRedelijk
  • Onderhoud buitenRedelijk
  • Huidig gebruikWoonruimte
  • Huidige bestemmingWoonruimte

Lagro Ebens

Oude Ebbingestraat 91
9712 HG Groningen
(050) 318 40 80

Vergelijkbare woningen

Verkocht onder voorbehoud
Hoofdafbeelding Diephuisstraat 13

Diephuisstraat 13

9714 GS Groningen

€ 210.000,- k.k.

Onder bod
Hoofdafbeelding Vechtstraat 59

Vechtstraat 59

9725 CT Groningen

€ 270.000,- k.k.

Over welke vestiging wilt u meer te weten komen?

Welke vestiging mag uw woning verkopen?

Brandsma de Jong

Vragen?

Wij helpen u graag