Hoofdafbeelding Schoener 46a
Foto
Foto 2
Home Aanbod Schoener 46a

Schoener 46a

9606 PV Kropswolde

€ 895.000,- k.k.

Een unieke kans om elke dag te wonen alsof u op vakantie bent, met de luxe van een hotel en het comfort van thuis.

Aan het Zuidlaardermeer staat deze volledig gerenoveerde halfvrijstaande woning met inpandige garage, terrasoverkapping en schuur. Het woonhuis is sinds 2023 uitgebouwd, stijlvol verbouwd en afgewerkt met hoogwaardige materialen. Naast het moderniseren is het woonhuis ook duurzamer geworden. De nieuwe kunststof kozijnen beschikken over triple beglazing en er is sprake van muur-, vloer en dakisolatie. De zonnepanelen en warmtepomp dragen bij aan een laag energieverbruik. Niet voor niets heeft het woonhuis een A++ energielabel!

De luxe keuken vormt het hart van de woning – een plek waar koken en genieten samenkomen. De badkamer is een ware wellnessruimte met dubbele inloopdouche, ligbad en sauna. Alles bevindt zich op de begane grond, waardoor comfort en gemak vooropstaan.

Buiten gaat het genieten verder. Vanuit de woonkamer stapt u zo het het zonnige terras op en vervolgens de terrasoverkapping, waar u in alle seizoenen van het buitenleven kunt genieten. De buitendouche geeft een extra vakantiegevoel en via uw eigen aanlegsteiger heeft u directe toegang tot het Zuidlaardermeer – perfect voor watersportliefhebbers of een ontspannen boottocht.

Indeling: voorentree; hal met toilet en trapopgang; tuingerichte woonkamer met schuifpui en moderne gietvloer; luxe keuken voorzien van quooker, ingebouwde koffiezetapparaat, koelkast, vriezer, Bora kookplaat en vaatwasser; tussenhal; luxe badkamer met sauna; dubbele douche; ligbad, dubbele wastafel en ruime walkin closet; slaapkamer met toegang naar de tuin; bijkeuken met witgoedaansluitingen en achterentree; inpandige garage; inpandige berging.

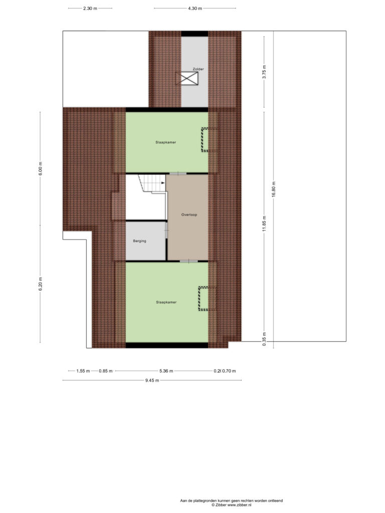
Eerste verdieping: overloop met bergruimte; bergruimte/kantoor; twee royale slaapkamers.
Eerste verdieping boven bijkeuken: bergzolder met vlizotrap te bereiken.

Extra informatie:
- geschikt voor gezin maar ook levensloopbestendig;
- gasloos woonhuis;
- instapklaar woonhuis met veel luxe;
- onderhoudsarm vanwege kunststof kozijnen met triple glas;
- vloerverwarming aanwezig;
- ligging aan water met eigen aanlegsteiger en terras.

Kortom een parel van een woning! Kom de woning in het echt bekijken en laat u verrassen!

Algemeen

  • StatusVerkocht onder voorbehoud
  • Koopprijs€ 895.000,- k.k.
  • AanvaardingIn overleg

Bouwvorm

  • Soort objectWoonhuis
  • Soort woningEengezinswoning
  • Type woningHalfvrijstaande woning
  • Bouwjaar1977
  • BouwvormBestaande bouw
  • LiggingenAan bosrand, Aan water, Aan rustige weg, Aan vaarwater

Indeling

  • Woonoppervlakte220 m2
  • Perceeloppervlakte966 m2
  • Inhoud903 m3
  • Aantal kamers4
  • Aantal slaapkamers3
  • Aantal badkamers1

Energie

  • EnergieklasseA++
  • VerwarmingWarmtepomp
  • WarmwaterElektrische boiler eigendom
  • IsolatieDakisolatie, Muurisolatie, Vloerisolatie, Driedubbel glas
  • CombiketelNee

Buitenruimte

  • TuinAchtertuin, Voortuin
  • HoofdtuinAchtertuin
  • Oppervlakte315 m2
  • Ligging hoofdtuinZuid
  • AchteromJa
  • Kwaliteit tuinVerzorgd

Bergruimte

  • Schuur / BergingAangebouwd hout
  • Totaal aantal1

Parkeergelegenheid

  • Parkeer faciliteitenOp eigen terrein
  • GarageAangebouwd steen
  • Capaciteit1
  • Garages1

Dak

  • Soort dakDwarskap
  • Materiaal dakPannen

Overig

  • Permanente bewoningJa
  • Onderhoud binnenGoed tot uitstekend
  • Onderhoud buitenGoed tot uitstekend
  • Huidig gebruikWoonruimte
  • Huidige bestemmingWoonruimte

Brandsma De Jong - Hoogezand

Gorecht-Oost 175
9603 AE Hoogezand
+31598 221 111

Over welke vestiging wilt u meer te weten komen?

Welke vestiging mag uw woning verkopen?