Hoofdafbeelding Grachtstraat 9
Foto
Foto 3
Home Aanbod Grachtstraat 9

Grachtstraat 9

9991 BA Middelstum

€ 635.000,- k.k.

SFEERVOL, DUURZAAM EN VERRASSEND RUIM wonen in het hart van Middelstum

In de dorpskern van het gezellige en levendige dorp staat deze bijzonder fraaie woning die vanaf 2000 volledig opnieuw is opgebouwd tot een prachtig, sfeervol woonhuis. De fraaie, vrij geplaatste dakkapellen aan zowel de voor- als achterzijde springen direct in het oog en geven het huis een hoge sierwaarde wat bijdraagt aan het karakteristieke aspect. Het huis is uitstekend geïsoleerd en toekomstbestendig ingericht met o.a. 28 zonnepanelen, volledige isolatie en een laadpaal voor je elektrische auto; dat betekent comfortabel wonen met lage energielasten. Met maar liefst 6 slaapkamers biedt deze woning een unieke hoeveelheid ruimte voor een (groot) gezin, waar de slaapkamer op de begane grond zich perfect leent voor gebruik als kantoor of praktijk aan huis. Ideaal voor wie wonen en werken wil combineren.

De begane grond beschikt verder over een royale en sfeervolle woonkeuken, een ruime badkamer én een sauna, een heerlijke plek om tot rust te komen. Op de verdieping bevinden zich nog eens 5 ruim opgezette slaapkamers met een speelse indeling, en een 2e badkamer.

Achter de woning ligt een besloten tuin waar je volop kunt genieten van het buitenleven. Dankzij de overkapping kun je ook bij mindere weersomstandigheden buiten zitten, waardoor het tuinseizoen aanzienlijk wordt verlengd.

Dit is zo'n woning die je hart verovert zodra je binnenstapt. Maak snel een afspraak.

Indeling:
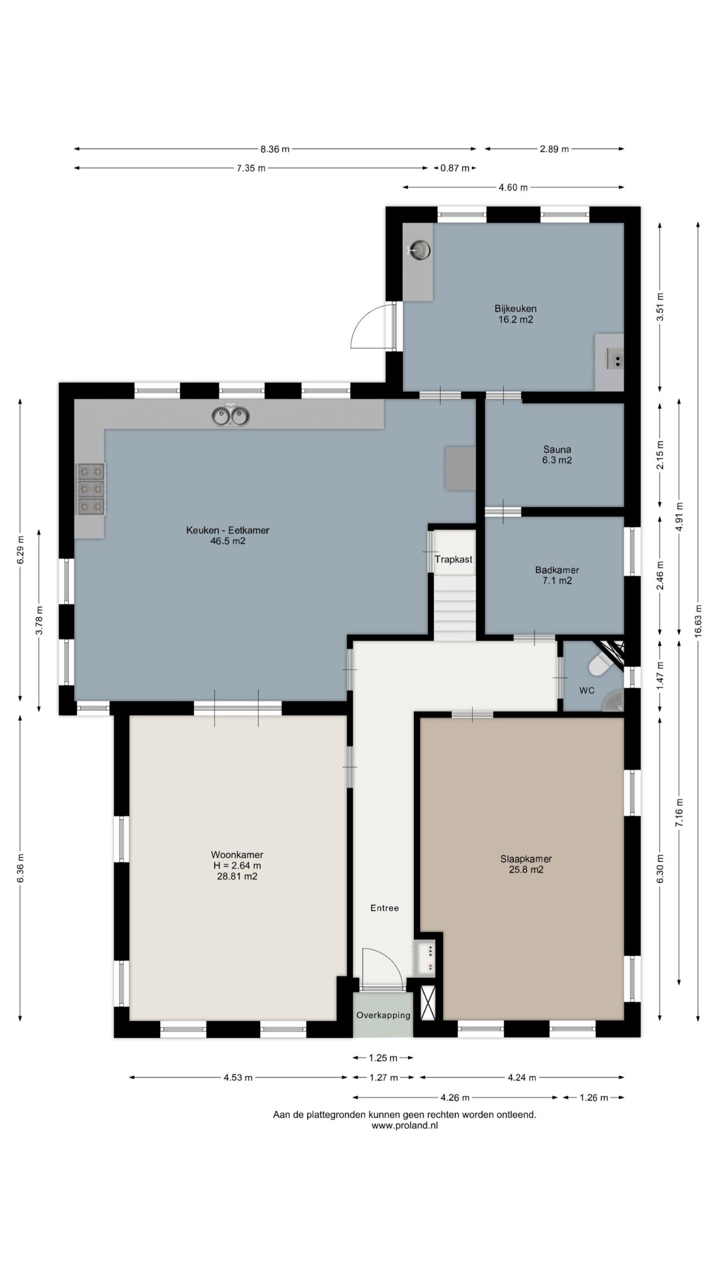
Entree, hal met toegang tot de woonkamer (ca. 29 m²), slaapkamer van ca. 26 m², vervolgens het toilet met fonteintje, badkamer (ca. 7 m²) voorzien van wastafelmeubel en douche, en een heerlijke sauna van ca. 6 m². Vanuit de woonkamer heb je middels prachtige glas-in-lood ensuite deuren toegang tot de woonkeuken. Deze royale woonkeuken van ca. 46 m² is voorzien van een afzuigkap, vaatwasser en een 5 liter close-in boiler. Vanuit de keuken heb je toegang tot de bijkeuken van ca. 16 m² met een keukenblok, wasmachine- en drogeraansluiting en een achterentree. Vanuit de bijkeuken heb je eveneens toegang tot de sauna.

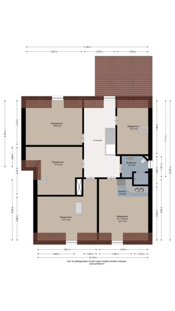
Verdieping: overloop met toegang tot 5 slaapkamers van ca. 12, 17 18, 21 en 22 m², en de 2e badkamer met douche, toilet en wastafel. De grootste slaapkamer beschikt over een keukenblok, waardoor dit gebruikt kan worden voor een ouder gezinslid die wat zelfstandigheid wil, maar ook bijvoorbeeld voor mantelzorg van een familielid.

Algemene informatie:
* Gehele begane grond is voorzien van vloerverwarming m.u.v. de bijkeuken;
* In 2024 is het platte dak voorzien van nieuwe dakbedekking;
* Glasvezel internet aanwezig;
* Schuur met overkapping in 2019 gerealiseerd;
* Laadpaal voor elektrische auto aanwezig.

Algemeen

  • StatusBeschikbaar
  • Koopprijs€ 635.000,- k.k.
  • AanvaardingIn overleg

Bouwvorm

  • Soort objectWoonhuis
  • Soort woningEengezinswoning
  • Type woningVrijstaande woning
  • Bouwjaar2002
  • BouwvormBestaande bouw
  • LiggingenAan rustige weg, In centrum

Indeling

  • Woonoppervlakte280 m2
  • Perceeloppervlakte630 m2
  • Inhoud1.027 m3
  • Aantal kamers7
  • Aantal slaapkamers6
  • Aantal badkamers3

Energie

  • EnergieklasseA
  • VerwarmingCV ketel, Vloerverwarming gedeeltelijk
  • C.V.-KetelBosch HRC
  • Bouwjaar C.V.-Ketel2002
  • WarmwaterCV ketel, Elektrische boiler eigendom
  • IsolatieVolledig geïsoleerd
  • CombiketelJa
  • BrandstofGas
  • EigendomEigendom

Buitenruimte

  • TuinAchtertuin
  • HoofdtuinAchtertuin
  • Oppervlakte450 m2
  • Ligging hoofdtuinZuid
  • AchteromJa
  • Kwaliteit tuinVerzorgd

Bergruimte

  • Schuur / BergingVrijstaand hout
  • VoorzieningenVoorzien van elektra
  • Totaal aantal1

Parkeergelegenheid

  • Parkeer faciliteitenOp eigen terrein
  • GarageGeen garage

Dak

  • Soort dakSamengesteld dak
  • Materiaal dakPannen, Bitumineuze Dakbedekking

Overig

  • Permanente bewoningJa
  • Onderhoud binnenGoed tot uitstekend
  • Onderhoud buitenGoed tot uitstekend
  • Huidig gebruikWoonruimte
  • Huidige bestemmingWoonruimte

Brandsma De Jong - Uithuizen

M.J. Bultenastraat 6
9981 JB Uithuizen
+31595 412 591

Over welke vestiging wilt u meer te weten komen?

Welke vestiging mag uw woning verkopen?

Brandsma de Jong

Vragen?

Wij helpen u graag