Hoofdafbeelding Hoofdstraat 113
Foto 3
Foto 7
Home Aanbod Hoofdstraat 113

Hoofdstraat 113

9944 AD Nieuwolda

€ 475.000,- k.k.

Een fraai onder architectuur gebouwde vrijstaande rentenierswoning met grote werkruimte.

In 1930 werd aan de Hoofdstraat 113 in Nieuwolda een nieuwe woning gebouwd in opdracht van de heer K.J. Jeltsema, destijds ook woonachtig in het dorp. Jeltsema had aan de bekende Damster architect E. Rozema opdracht gegeven een woning te ontwerpen in een regionale variant van de Amsterdamse Schoolstijl. Aangezien de nieuwe woning werd gebouwd op de locatie van een bestaand, gesloopt huis, werd de bij het oorspronkelijke huis behorende schuur geïntegreerd in het plan. Daardoor beschikt het tegenwoordig nog steeds over een grote schuur annex werkplaats annex werkruimte. Deze ruimte biedt volop mogelijkheden om o.a. werken aan huis mogelijk te maken. Vanwege de fraaie architectuur en het behoudt van de hoge mate van detaillering uit de bouwperiode is het geheel in 2001 ingeschreven in het monumentenregister als Rijksmonument. Opvallend aan de inschrijving is de uitgebreide omschrijving van het monument. Er zijn vanuit de overheid subsidies mogelijk voor o.a. de verduurzaming van een rijksmonument.

De woning die Rozema aan de Hoofdstraat 113 ontwierp betreft een ruime en vrijstaande gezinswoning - type voormalige renteniersbehuizing - en is aan de doorgaande weg nabij het dorpscentrum gelegen. Het is gesitueerd op een ruim perceel waardoor het beschikt over een heerlijk, zonnige en mooi aangeplante tuin achter de woning. Het dorp Nieuwolda biedt daarbij alle voorzieningen voor de dagelijkse behoeften als een lagere school en supermarkt. Daarnaast beschikt het dorp over een rijk verenigingsleven en horecagelegenheden. Tot slot is de kern Nieuwolda zeer gunstig gelegen ten opzichte van de havenstad Delfzijl alsmede de kernen Scheemda - met het nieuwe streekziekenhuis OZG - en Winschoten. Overigens zijn deze plaatsen ook zeer goed middels openbaar vervoer vanuit Nieuwolda te bereiken. Kortom, een heerlijke uitvalsbasis voor een brede doelgroep!

Opvallend aan de indeling is direct de sfeervolle entree bestaande uit een vestibule met onder andere - zoals in het monumentenregister beschreven - ‘een bank van blauwe (gewatteerde) geglazuurde tegels (door timmerman Mulder)’. De aansluitende imposante hal - ook met granitovloer, dubbele tochtdeuren en glas-in-lood ramen - biedt plaats aan de fraaie trapopgang naar de eerste verdieping. Nagenoeg alle vertrekken van het voorhuis zijn rechtstreeks vanuit de hal te betreden. Zoals de woonkamer ‘en suite’ aan de straatzijde bijvoorbeeld, voorzien van originele suitedeuren, bijzondere sierschouwen en fraaie glas-in-lood raampjes. Daarachter een tweede woon- of bijvoorbeeld werk- annex slaapkamer en de dichte eetkeuken met een eenvoudige inrichting en zicht over de achtertuin.

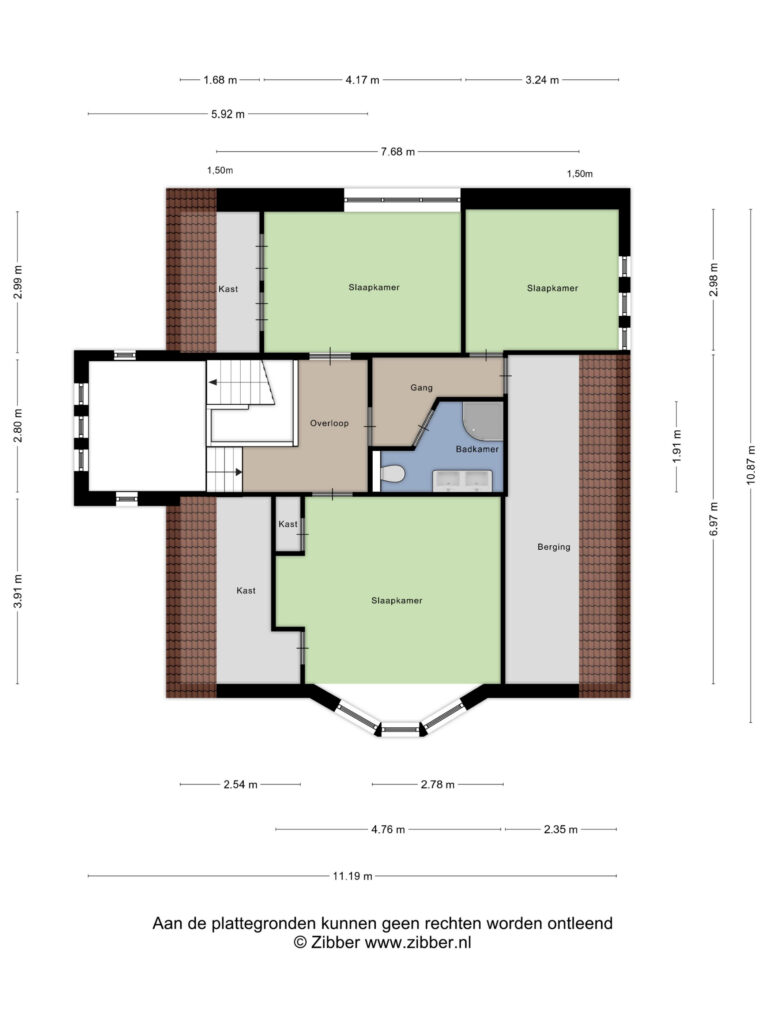
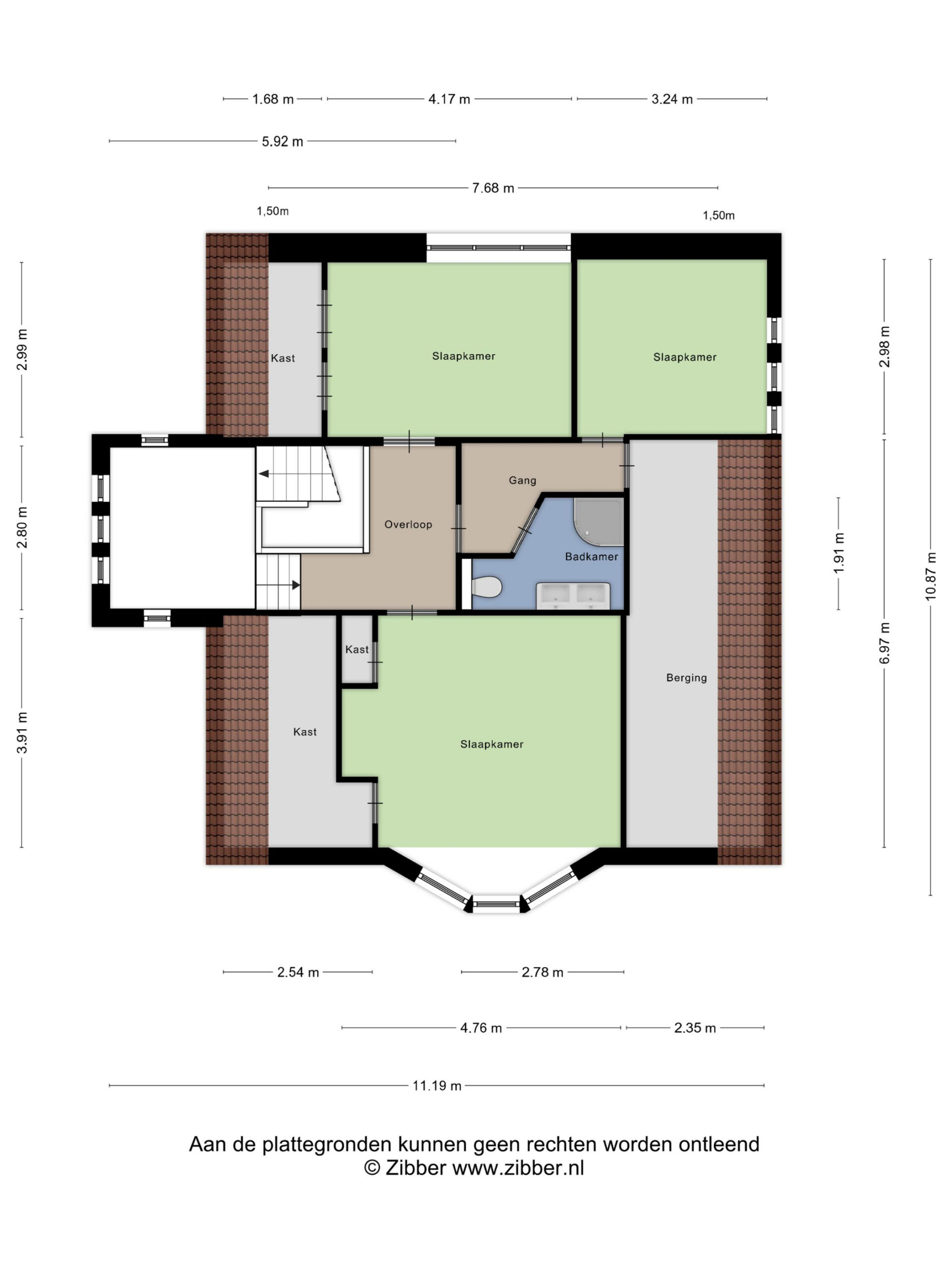
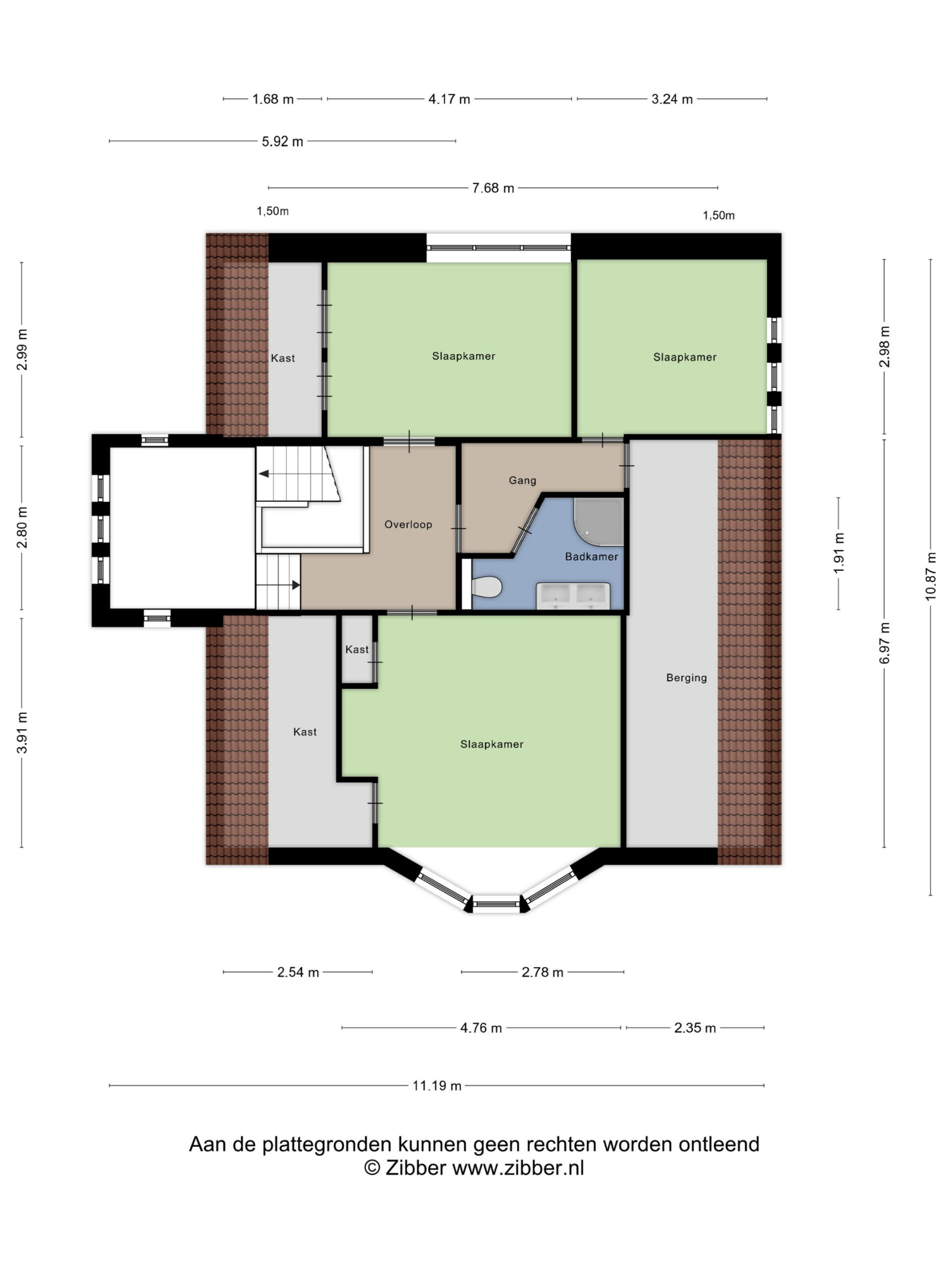
In de oorspronkelijke schuur die bij de nieuwbouw is blijven bestaan is tegenwoordig een achterhal met toilet en aangrenzende badkamer aanwezig. Verder is het ‘anno nu’ ingericht als werkplaats met een aangrenzende kamer annex hobbyruimte. De eerste verdieping is te bereiken via de fraaie trapopgang met bordes en glas-in-lood ramen. Vanaf de overloop zijn vervolgens drie slaapkamers te betreden, waarvan twee voorzien van vaste kasten. Op de eerste verdieping is een tweede badkamer gerealiseerd met douchecabine, wastafelmeubel en tweede toilet. Het geheel wordt op de eerste verdieping gecompleteerd door een zolderberging. Tot slot is er vanuit de werkplaats nog een royale zolderberging met mogelijkheden te bereiken. Kortom, een heerlijk huis met veel mogelijkheden en toegang tot diverse subsidies!

Algemeen

  • StatusBeschikbaar
  • Koopprijs€ 475.000,- k.k.
  • AanvaardingIn overleg

Bouwvorm

  • Soort objectWoonhuis
  • Soort woningVilla
  • Type woningVrijstaande woning
  • Bouwjaar1930
  • BouwvormBestaande bouw
  • LiggingenAan rustige weg, Open ligging

Indeling

  • Woonoppervlakte192 m2
  • Perceeloppervlakte850 m2
  • Inhoud938 m3
  • Aantal kamers7
  • Aantal slaapkamers4
  • Aantal badkamers2

Energie

  • VerwarmingCV ketel
  • C.V.-KetelAtag Blue Angel
  • Bouwjaar C.V.-Ketel2012
  • WarmwaterCV ketel
  • IsolatieVloerisolatie, Gedeeltelijk dubbelglas
  • CombiketelJa
  • BrandstofGas
  • EigendomEigendom

Buitenruimte

  • TuinTuin rondom
  • HoofdtuinTuin rondom
  • AchteromJa
  • Kwaliteit tuinFraai aangelegd

Bergruimte

  • Schuur / BergingAangebouwd steen
  • VoorzieningenVoorzien van elektra, Met vliering
  • Totaal aantal1

Parkeergelegenheid

  • Parkeer faciliteitenOp eigen terrein
  • GarageGeen garage

Dak

  • Soort dakSamengesteld dak
  • Materiaal dakPannen

Overig

  • Permanente bewoningJa
  • Onderhoud binnenGoed
  • Onderhoud buitenGoed
  • Huidig gebruikWoonruimte
  • Huidige bestemmingWoonruimte

Brandsma De Jong - Zuidbroek

Kerkstraat 42a
9636 AC Zuidbroek
+31598 453 355

Vergelijkbare woningen

Verkocht onder voorbehoud
Hoofdafbeelding Hoofdweg Oost 31

Hoofdweg Oost 31

9944 BV Nieuwolda

€ 295.000,- k.k.

Over welke vestiging wilt u meer te weten komen?

Welke vestiging mag uw woning verkopen?