Hoofdafbeelding Langeweg 1
Foto
Foto 2
Home Aanbod Langeweg 1

Langeweg 1

9682 XR Oostwold

€ 775.000,- k.k.

Landelijk, tussen de kernen Nieuwolda Oost en Oostwold (Old.) met rondom een vrij uitzicht is de woonboerderij aan de Langeweg 1 gelegen. Qua adressering behorend bij het dorp Oostwold (Old.). De woonboerderij is overigens niet alleen ‘op de ruimte’ gelegen… Het beschikt zelf ook over uitstekende maatvoeringen. Neem het perceel, met 1,2 hectare passend voor het type vastgoed op haar locatie. De bestemming Agrarisch met aantekening Paardenhouderij geeft met name voor dit laatste veel mogelijkheden. Uiteraard is de woonboerderij hier al op ingericht. Bijvoorbeeld door de aanwezigheid van paardenboxen in de inpandige schuur annex deel. Zeven in totaal. Of vanwege de overdekte rijbak achter de schuur en uiteraard de aanwezigheid van eigen weiland.

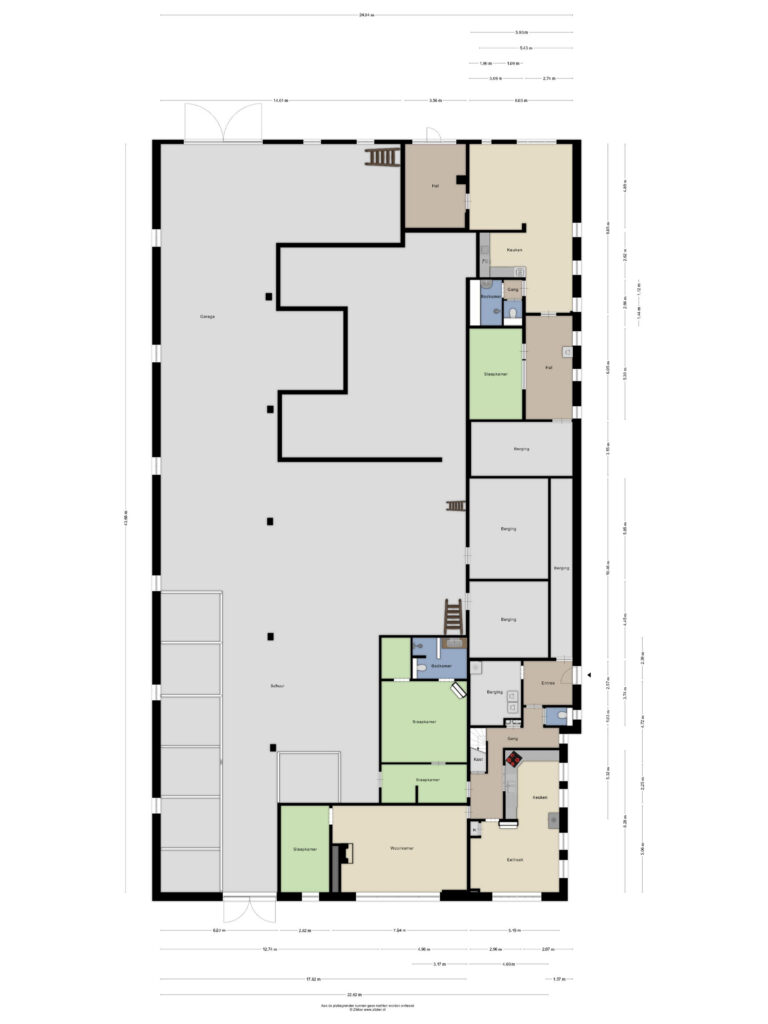
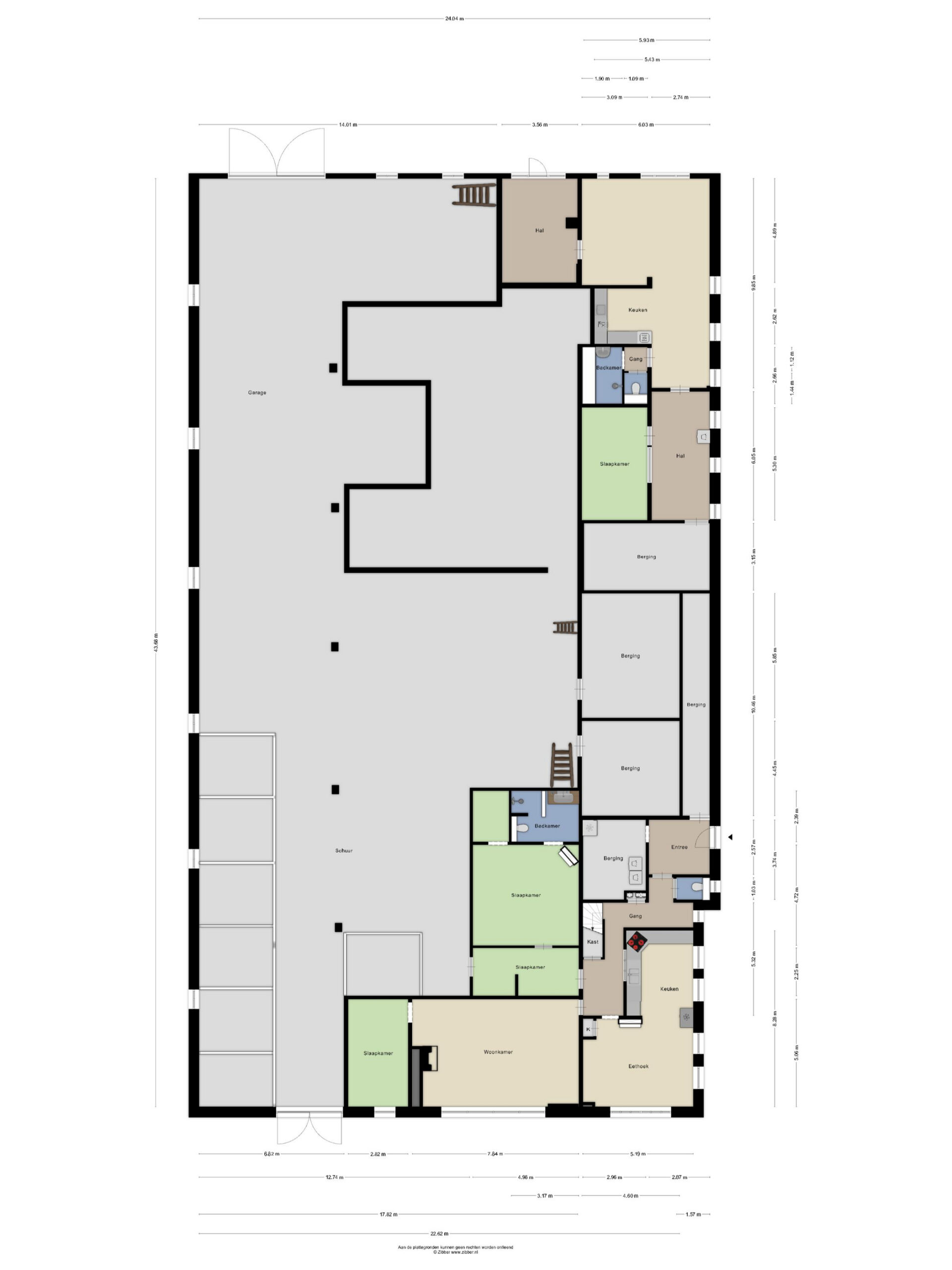
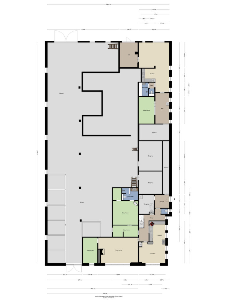
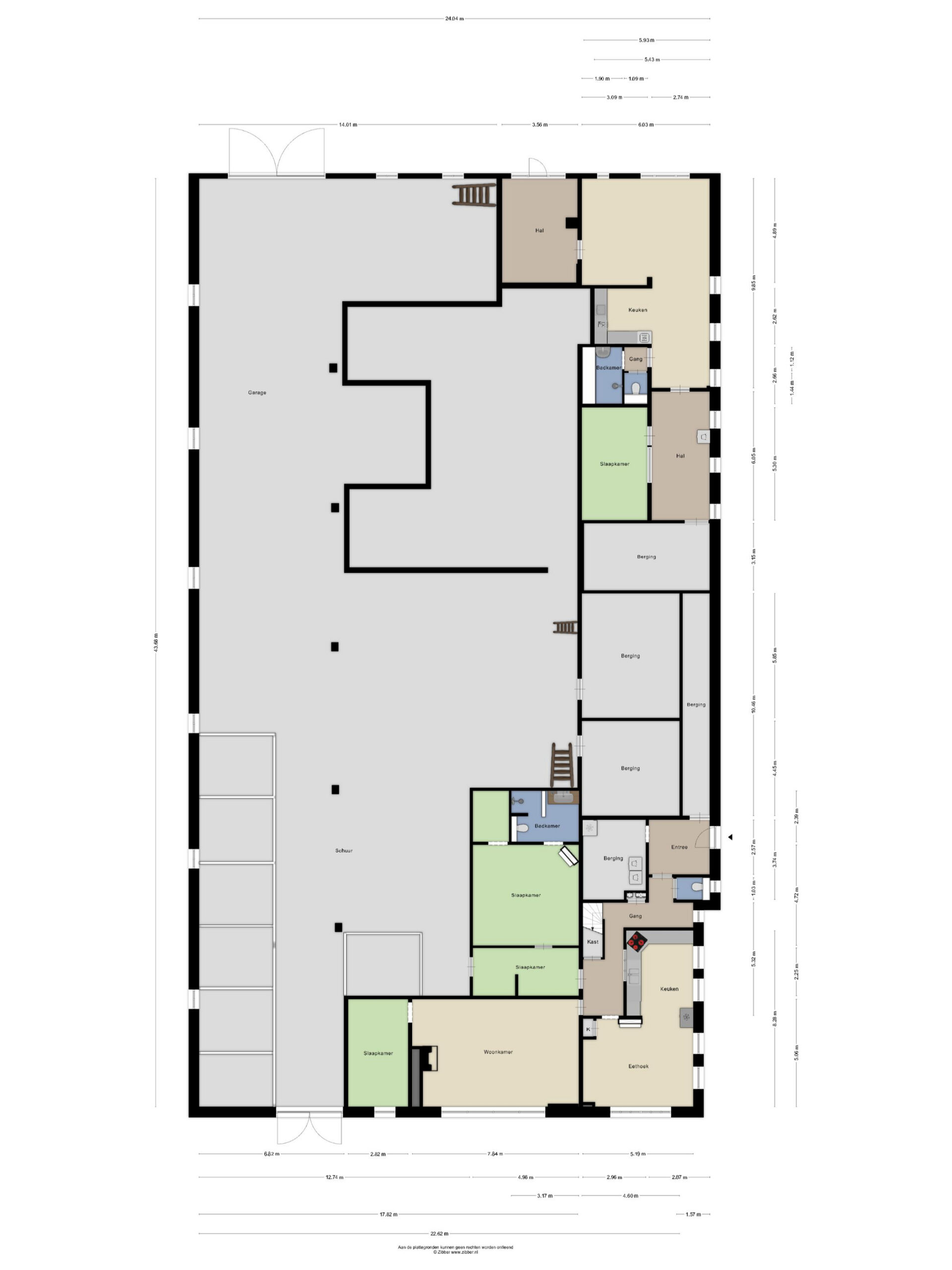
Voor de exacte indeling verwijzen we graag naar de opgemaakte plattegronden. Toch zijn er wel een aantal zaken die direct in het oog springen. In de eerste plaats de mogelijkheid - op basis van de indeling - tot dubbele bewoning. Aan de achterzijde van de woonboerderij is namelijk een soort zelfstandig ‘appartement’ gerealiseerd, voorzien van eigen entree en voorzieningen. Los van dit zelfstandig appartement beschikt het woonhuis zelf ook over een royale maatvoering. Voor het grootste deel op de begane grond maar deels ook op de verdieping. Hierdoor is het woonhuis ook nog eens levensloopbestendig te gebruiken indien gewenst. Kortom, een bijzonder woonhuis op een bijzondere locatie met bijzonder - veel - gebruiksmogelijkheden!

LET OP: Twee slaapkamers op de begane grond zijn aan de zijde van de schuur annex deel gesitueerd en beschikken over indirect daglicht!

Algemeen

  • StatusBeschikbaar
  • Koopprijs€ 775.000,- k.k.
  • AanvaardingIn overleg

Bouwvorm

  • Soort objectWoonhuis
  • Soort woningWoonboerderij
  • Type woningVrijstaande woning
  • Bouwjaar1950
  • BouwvormBestaande bouw
  • LiggingenAan rustige weg, Vrij uitzicht, Landelijk gelegen

Indeling

  • Woonoppervlakte315 m2
  • Perceeloppervlakte12.264 m2
  • Inhoud5.006 m3
  • Aantal kamers6
  • Aantal slaapkamers4
  • Aantal badkamers3

Energie

  • EnergieklasseG
  • VerwarmingCV ketel
  • WarmwaterCV ketel
  • IsolatieDakisolatie, Vloerisolatie, Dubbelglas
  • CombiketelJa
  • BrandstofGas
  • EigendomLease

Buitenruimte

  • TuinTuin rondom
  • HoofdtuinTuin rondom
  • AchteromJa

Bergruimte

  • Schuur / BergingAangebouwd steen
  • Totaal aantal1

Parkeergelegenheid

  • Parkeer faciliteitenOp eigen terrein
  • GarageAangebouwd steen
  • Capaciteit10
  • Garages1

Dak

  • Soort dakZadeldak
  • Materiaal dakPannen

Overig

  • Permanente bewoningJa
  • Onderhoud binnenGoed
  • Onderhoud buitenGoed
  • Huidig gebruikWoonruimte
  • Huidige bestemmingWoonruimte

Brandsma De Jong - Zuidbroek

Kerkstraat 42a
9636 AC Zuidbroek
+31598 453 355

Over welke vestiging wilt u meer te weten komen?

Welke vestiging mag uw woning verkopen?