Hoofdafbeelding Doorloper 66
Foto 2
Foto 3
Home Aanbod Doorloper 66

Doorloper 66

9611 AX Sappemeer

€ 525.000,- k.k.

In een jonge, rustige en kindvriendelijke woonwijk in Sappemeer staat deze moderne, energiezuinige en gasloze twee-onder-één-kapwoning uit 2022. De woning is volledig instapklaar, hoogwaardig afgewerkt en beschikt over het uitstekende energielabel A++++. Dankzij de warmtepomp, WTW-installatie, 21 zonnepanelen en triple beglazing bent u verzekerd van een zeer laag energieverbruik en optimaal wooncomfort.

De tuin van de woning ligt op het zuidoosten, waardoor u al vroeg in de ochtend kunt genieten van de eerste zonnestralen. Dankzij de vrije ligging aan de achterzijde heeft de tuin een prettig open gevoel. Richting de sloot is een betonnen walbeschoeiing aangebracht, wat zorgt voor een duurzame afwerking en een onderhoudsarme waterkant. Onder de terrasoverkapping kunt u in elk seizoen heerlijk beschut zitten tegen zon, regen of wind. Aangrenzend aan de overkapping bevindt zich een houten berging, ideaal voor het opbergen van tuingereedschap, fietsen of uw loungeset in de wintermaanden.

Indeling begane grond: zijentree; hal met meterkast; modern toilet en trapopgang; woonkamer voorzien van vloerverwarming en moderne pvc vloer; tuingerichte eethoek; halfopen keuken met moderne keukenopstelling die voorzien is van Bora kookplaat met afzuiging; oven, combimagnetron, koelkast en vaatwasser; bijkeuken/berging met warmtepompopstelling, achterentree en witgoedaansluitingen.

Eerste verdieping: overloop; drie slaapkamers waarvan één met handige walkin closet; moderne badkamer voorzien van inloopdouche, wastafelmeubel en toilet.
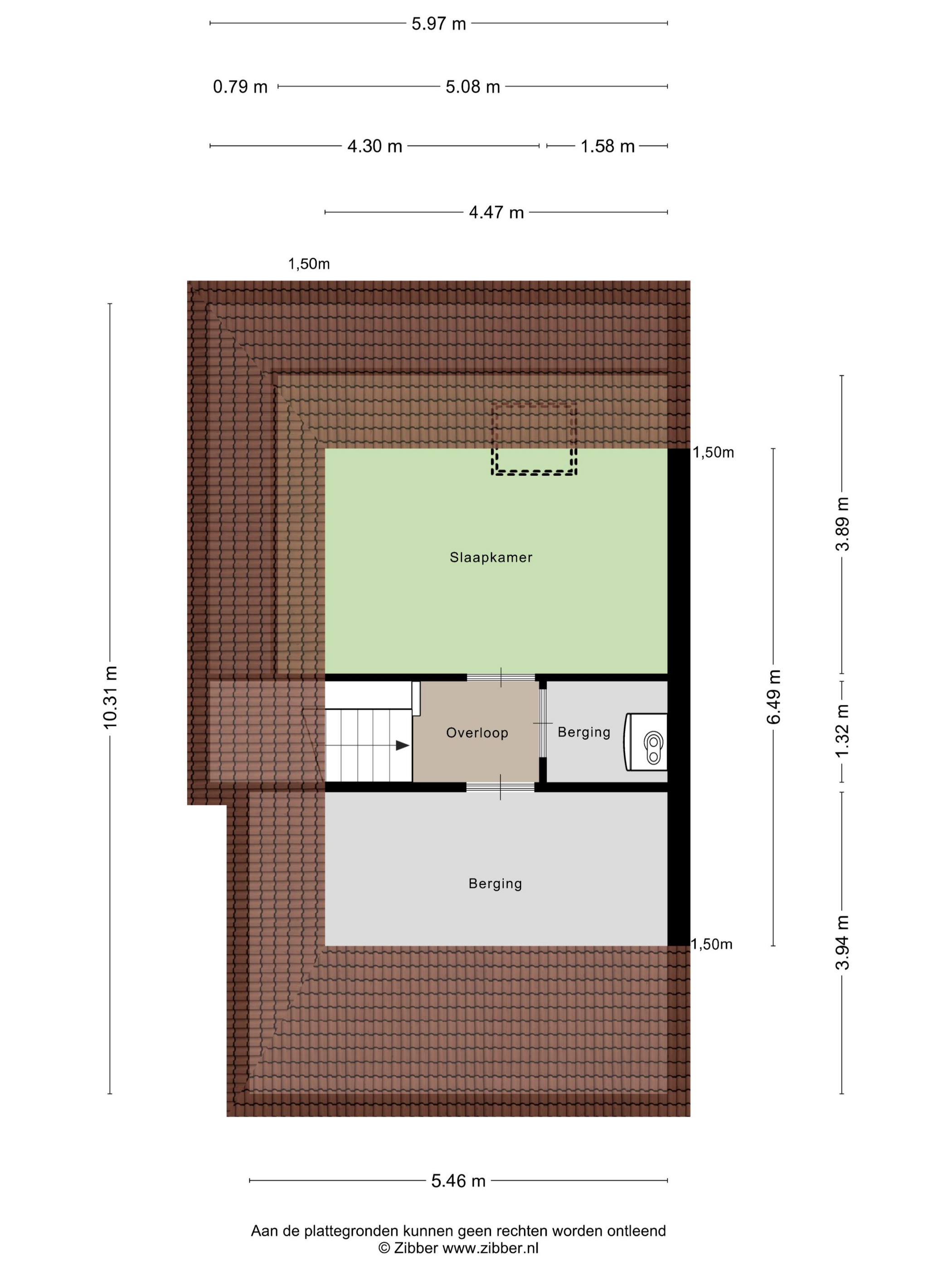
Tweede verdieping: overloop; vierde slaapkamer; technische ruimte met WTW; berging met mogelijkheid voor vijfde slaapkamer.

Extra informatie:
- robuuste trap met rubberwood hardhouten treden aanwezig;
- verwarming middels lucht/water warmtepomp (Daikin 2022) icm met boiler (180 liter)
- 21 zonnepanelen aanwezig;
- huidige verkopers betalen geen maandelijkse verbruikskosten voor elektra (krijgen geld terug);
- aardbevingsbestendig woonhuis;
- voorzien van zinken hemelwaterafvoeren, kunststof kozijnen met houtnerf en fraai dakoverstek;

LET OP! Koper heeft € 30.000,- tot € 40.000,- extra leencapaciteit ivm energielabel A++++!

Algemeen

  • StatusVerkocht onder voorbehoud
  • Koopprijs€ 525.000,- k.k.
  • AanvaardingIn overleg

Bouwvorm

  • Soort objectWoonhuis
  • Soort woningEengezinswoning
  • Type woningTwee onder één kapwoning
  • Bouwjaar2022
  • BouwvormBestaande bouw
  • LiggingenAan rustige weg, In woonwijk

Indeling

  • Woonoppervlakte149 m2
  • Perceeloppervlakte330 m2
  • Inhoud587 m3
  • Aantal kamers6
  • Aantal slaapkamers4
  • Aantal badkamers1

Energie

  • EnergieklasseA++++
  • VerwarmingVloerverwarming gedeeltelijk, Warmtepomp, Warmte terugwininstallatie
  • WarmwaterElektrische boiler eigendom
  • IsolatieVolledig geïsoleerd, Driedubbel glas
  • CombiketelNee

Buitenruimte

  • TuinAchtertuin, Voortuin
  • HoofdtuinAchtertuin
  • Oppervlakte125 m2
  • Ligging hoofdtuinOost
  • AchteromJa
  • Kwaliteit tuinVerzorgd

Bergruimte

  • Schuur / BergingVrijstaand hout
  • VoorzieningenVoorzien van elektra
  • Totaal aantal1

Parkeergelegenheid

  • Parkeer faciliteitenOpenbaar parkeren, Op eigen terrein
  • GarageParkeerplaats

Dak

  • Soort dakSchilddak
  • Materiaal dakPannen

Overig

  • Permanente bewoningJa
  • Onderhoud binnenUitstekend
  • Onderhoud buitenUitstekend
  • Huidig gebruikWoonruimte
  • Huidige bestemmingWoonruimte

Brandsma De Jong - Hoogezand

Gorecht-Oost 175
9603 AE Hoogezand
+31598 221 111

Vergelijkbare woningen

Hoofdafbeelding Kleinemeersterstraat 147

Kleinemeersterstraat 147

9611 JC Sappemeer

€ 290.000,- k.k.

Hoofdafbeelding Noorderstraat 96

Noorderstraat 96

9611 AM Sappemeer

€ 425.000,- k.k.

Hoofdafbeelding Buitensingel 91

Buitensingel 91

9611 DC Sappemeer

€ 725.000,- k.k.

Hoofdafbeelding Noorderstraat 261

Noorderstraat 261

9611 AG Sappemeer

€ 400.000,- k.k.

Over welke vestiging wilt u meer te weten komen?

Welke vestiging mag uw woning verkopen?