Hoofdafbeelding Kloosterstraat 11
Foto
Foto 8
Home Aanbod Kloosterstraat 11

Kloosterstraat 11

9791 ED Ten Boer

€ 225.000,- k.k.

SFEERVOL WONEN IN TEN BOER | DRIE SLAAPKAMERS | ACHTERTUIN MET ACHTEROM | LICHTE DOORZONWONING

In een rustige en kindvriendelijke woonwijk in Ten Boer staat deze verzorgde tussenwoning uit 1971. De woning biedt een lichte doorzonwoonkamer, drie slaapkamers, een praktische bijkeuken en een zonnige achtertuin met achterom. Dankzij het energielabel C, het dubbele en HR+ glas en de HR-ketel uit 2014 woon je hier comfortabel en energiezuinig.

Ten Boer is geliefd vanwege het dorpse karakter, de goede voorzieningen en de uitstekende bereikbaarheid richting Groningen. Scholen, sportclubs, winkels en bushaltes liggen op korte afstand, net als diverse wandelroutes en groenstroken. Een fijne locatie voor wie rustig wil wonen, maar toch alle dagelijkse gemakken dichtbij wil hebben.

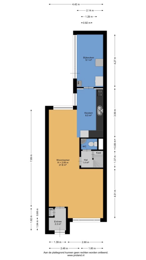
Indeling

Begane grond
Via de hal met meterkast bereik je de woonkamer. De lichte doorzonkamer heeft grote raampartijen aan zowel de voor- als achterzijde, waardoor de ruimte de hele dag door prettig verlicht is. De open keuken ligt aan de achterzijde en biedt toegang tot de bijkeuken, waar onder andere de wasmachineaansluiting aanwezig is. Vanuit de bijkeuken loop je direct de achtertuin in. In de gang met toilet en kast, welke bereikbaar is vanuit de woonkamer, bevindt zich de trapopgang naar de eerste verdieping.

Eerste verdieping
Op de verdieping bevinden zich drie slaapkamers, allen met een praktische indeling. De badkamer is voorzien van een douche en wastafel. De overloop biedt toegang tot alle vertrekken.

De woning beschikt over een woonoppervlakte van 83 m², een overige inpandige ruimte van 9 m², en een inhoud van 342 m³.

Buitenruimte
De woning heeft zowel een voortuin als een achtertuin. De achtertuin (van circa 28²) gelegen op het zuidoosten, biedt voldoende ruimte voor een zitplek, beplanting en is dankzij de achterom ook praktisch in het dagelijks gebruik.

Bijzonderheden

- Voorzien van HR+ en dubbele beglazing
- Energielabel C
- Voordeur is van kunststof
- Septictank welke is doorgezet naar gemeentelijke riool
- Achtertuin met achterom
- Aanvaarding in overleg

Vraagprijs
Vraagprijs: € 225.000,-- kosten koper

Wilt u deze nette en comfortabele woning zelf ervaren? Neem dan contact met ons op voor een bezichtiging. Wij leiden u graag rond!

Algemeen

  • StatusOnder bod
  • Koopprijs€ 225.000,- k.k.
  • AanvaardingIn overleg

Bouwvorm

  • Soort objectWoonhuis
  • Soort woningEengezinswoning
  • Type woningTussenwoning
  • Bouwjaar1971
  • BouwvormBestaande bouw
  • LiggingenIn woonwijk

Indeling

  • Woonoppervlakte83 m2
  • Perceeloppervlakte135 m2
  • Inhoud342 m3
  • Aantal kamers4
  • Aantal slaapkamers3
  • Aantal badkamers1

Energie

  • EnergieklasseC
  • VerwarmingCV ketel
  • C.V.-KetelHR Solid plus VHR
  • Bouwjaar C.V.-Ketel2014
  • WarmwaterCV ketel
  • IsolatieDubbelglas
  • CombiketelNee
  • BrandstofGas
  • EigendomEigendom

Buitenruimte

  • TuinAchtertuin, Voortuin
  • HoofdtuinAchtertuin
  • Oppervlakte28 m2
  • Ligging hoofdtuinZuidoost
  • AchteromJa
  • Kwaliteit tuinNormaal

Parkeergelegenheid

  • Parkeer faciliteitenOpenbaar parkeren
  • GarageGeen garage

Dak

  • Soort dakPlat dak

Overig

  • Permanente bewoningJa
  • Onderhoud binnenRedelijk tot goed
  • Onderhoud buitenRedelijk tot goed
  • Huidig gebruikWoonruimte
  • Huidige bestemmingWoonruimte

Lagro Ebens

Oude Ebbingestraat 91
9712 HG Groningen
(050) 318 40 80

Over welke vestiging wilt u meer te weten komen?

Welke vestiging mag uw woning verkopen?