Hoofdafbeelding Jan Zijlstraat 39
Foto
Foto 2
Home Aanbod Jan Zijlstraat 39

Jan Zijlstraat 39

9792 PT Ten Post

€ 300.000,- k.k.

Aan de rand van Ten Post is een kindvriendelijk woonwijkje gelegen waar de woningen recent zijn - deels nog worden - vernieuwd vanuit de Sloop / Nieuwbouwregeling. Aan de Jan Zijlstraat mag Brandsma De Jong één van deze woningen verkopen, te weten huisnummer 39. Het betreft een ééngezinswoning – type tussenwoning – met een tuingerichte indeling. Vanwege het recente bouwjaar mag de woning het predicaat duurzaam zeker dragen, onder meer vanwege de hoge isolatiewaarde en het gasloze karakter ervan en aanwezigheid van zonnepanelen erbij. Overigens, deze zonnepanelen genieten een optimaal rendement aangezien ze aan de achterzijde zijn geplaatst… De onderhoudsarme achtertuin is namelijk op het zonnige zuiden gesitueerd en beschikt over een houten berging en achterom.

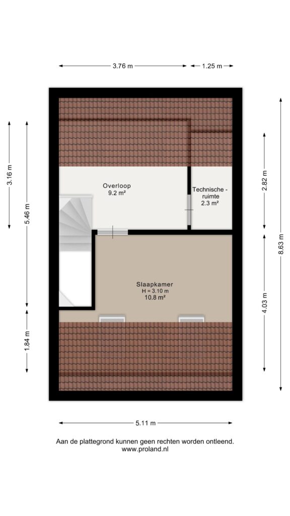
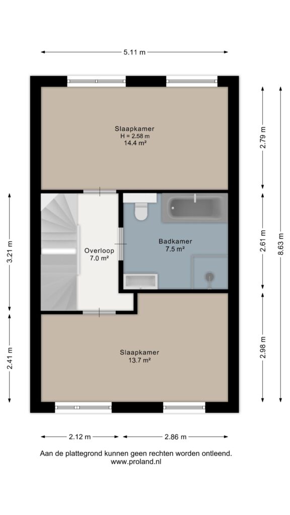
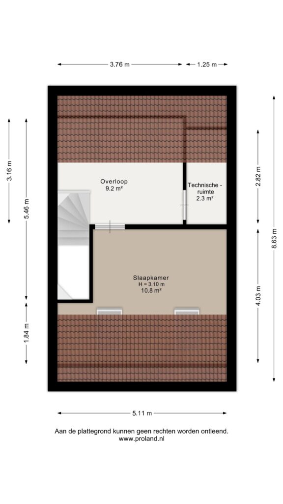
De indeling van de woning is functioneel en tuingericht te noemen. Zo bevindt de woonkamer zich aan de tuinzijde, net als de bijkeuken met buitendeur. Aan de straatzijde de eetkeuken. Modern uitgevoerd en voorzien van alle inbouwapparatuur. Het geheel wordt op de begane grond gecompleteerd door de ontvangsthal met het modern toilet en de trapopgang naar de eerste verdieping. Deze eerste verdieping biedt plaats aan twee - drie mogelijk - ruime slaapkamers een moderne badkamer, voorzien van ligbad, douchecabine, wastafelmeubel en tweede toilet. Ook de tweede verdieping is met een vaste trap te bereiken. Een trap die leidt naar een tweede overloop met technische ruimte en een - eveneens ruime - derde slaapkamer met dubbele dakramen.

Algemeen

  • StatusVerkocht onder voorbehoud
  • Koopprijs€ 300.000,- k.k.
  • AanvaardingIn overleg

Bouwvorm

  • Soort objectWoonhuis
  • Soort woningEengezinswoning
  • Type woningTussenwoning
  • Bouwjaar2023
  • BouwvormBestaande bouw
  • LiggingenAan rustige weg, In woonwijk, Vrij uitzicht

Indeling

  • Woonoppervlakte123 m2
  • Perceeloppervlakte165 m2
  • Inhoud439 m3
  • Aantal kamers4
  • Aantal slaapkamers3
  • Aantal badkamers1

Energie

  • EnergieklasseA++++
  • VerwarmingVloerverwarming geheel, Warmte terugwininstallatie
  • IsolatieVolledig geïsoleerd, HR glas
  • CombiketelNee

Buitenruimte

  • TuinAchtertuin, Voortuin
  • HoofdtuinAchtertuin
  • Oppervlakte38 m2
  • Ligging hoofdtuinZuidwest
  • AchteromJa
  • Kwaliteit tuinNormaal

Bergruimte

  • Schuur / BergingVrijstaand hout
  • Totaal aantal1

Parkeergelegenheid

  • Parkeer faciliteitenOpenbaar parkeren
  • GarageGeen garage

Dak

  • Soort dakZadeldak
  • Materiaal dakPannen

Overig

  • Permanente bewoningJa
  • Onderhoud binnenGoed
  • Onderhoud buitenGoed
  • Huidig gebruikWoonhuis
  • Huidige bestemmingWoonhuis

Brandsma De Jong - Delfzijl

Kerkstraat 25
9934 CE Delfzijl
+31596 630 920

Vergelijkbare woningen

Hoofdafbeelding Rijksweg 211

Rijksweg 211

9792 PG Ten Post

€ 385.000,- k.k.

Hoofdafbeelding Rijksweg 183

Rijksweg 183

9792 PE Ten Post

€ 275.000,- k.k.

Over welke vestiging wilt u meer te weten komen?

Welke vestiging mag uw woning verkopen?

Brandsma de Jong

Vragen?

Wij helpen u graag