Hoofdafbeelding Houwerdastraat 11
Foto 4
Foto
Home Aanbod Houwerdastraat 11

Houwerdastraat 11

9947 PD Termunten

€ 300.000,- k.k.

Termunten kennen velen als het vissersdorpje aan de rand van de oude gemeente Delfzijl. Het dorp kent inderdaad een rijke historie op het gebied van de visserij waarbij één van de best bewaarde ‘bewijzen’ uiteraard de Boog van Ziel is in het aanpalende Termunterzijl. Vanaf hier heeft men zicht op de jachthaven, het Termunterzijldiep en zijn alle toeristische en recreatieve voorzieningen die het gebied rijk is wandelend te bereiken. Naast deze voorzieningen kent het dorp een opvallend aantal restaurants, waarbij het niemand zal verbazen dat vis een veel voorkomend product op de kaart is…

In de oude kern van het dorp Termunten mag Brandsma De Jong een bijzondere woning te koop aanbieden. Je zou de woning kunnen typeren als een soort dijkwoning, onder meer vanwege de aanwezigheid van een souterrain dat nagenoeg volledig als extra woonverdieping wordt gebruikt. Tel daarbij de aangebouwde tuinkamer, het vrije uitzicht aan de achterzijde en de aanwezigheid van maar liefst zes slaapkamers… Geen wonder dat de huidige eigenaren het jarenlang ook als Bed & Breakfast hebben gebruikt. Het geheel beschikt – ondanks het hoogteverschil – over een eigen oprit die leidt naar de achtertuin met houten berging.

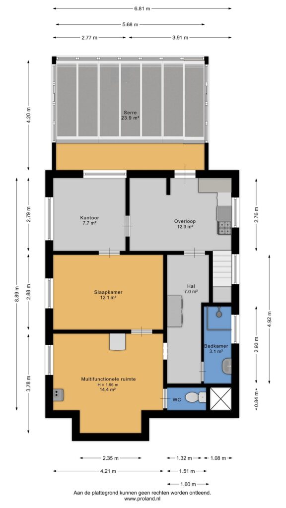
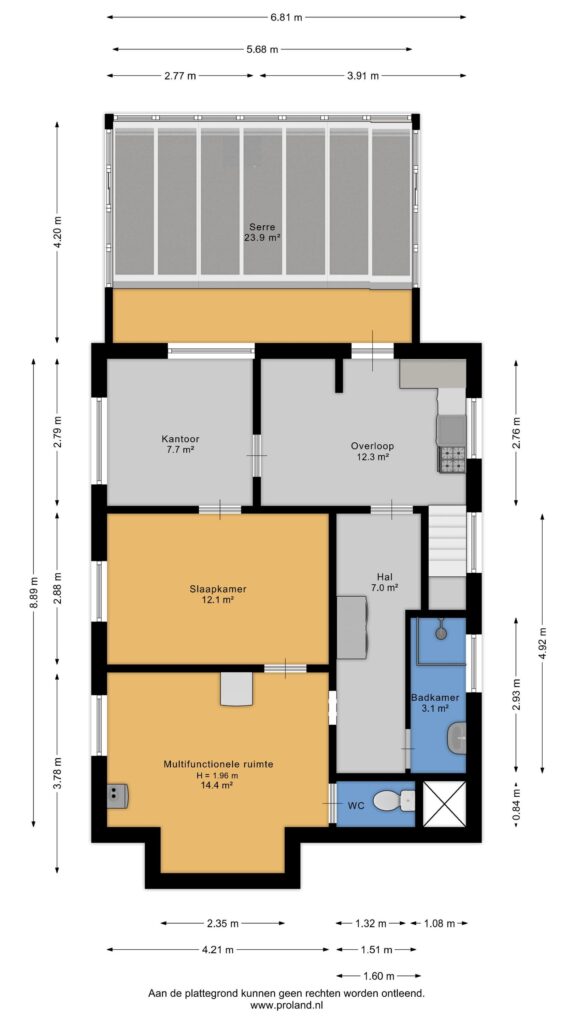
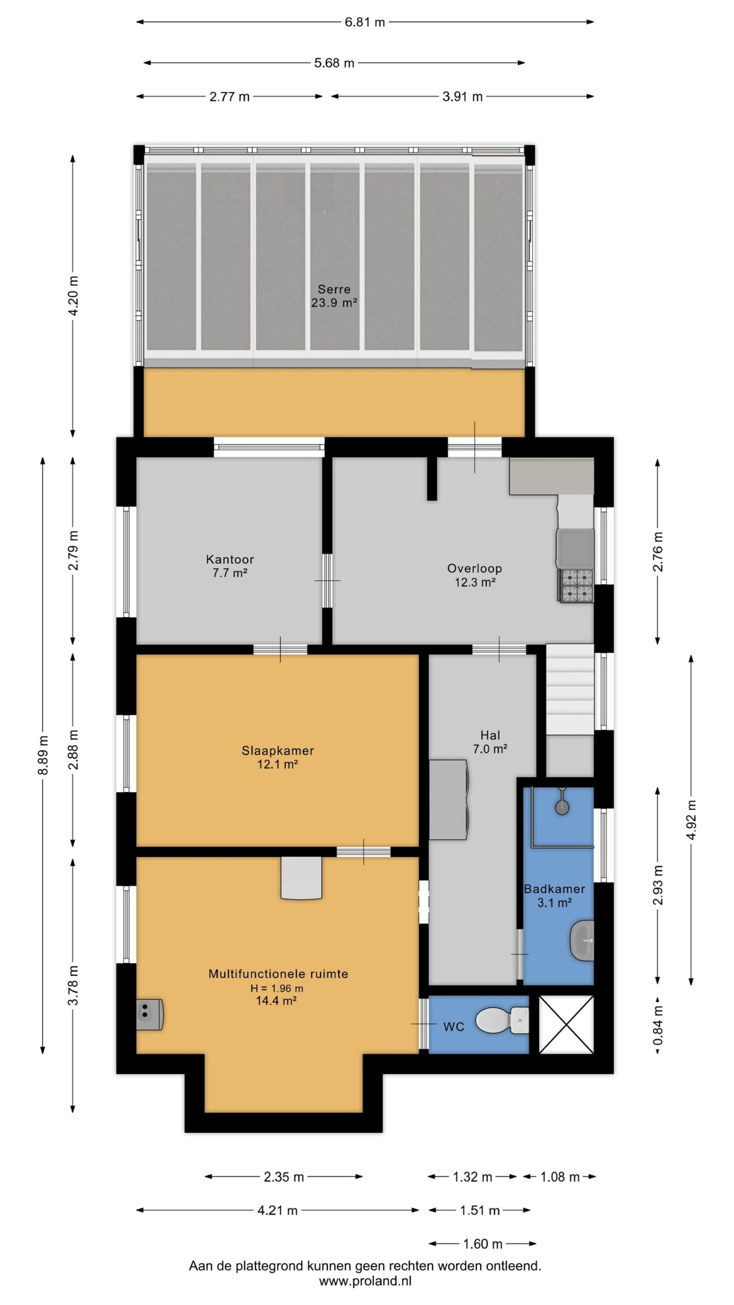
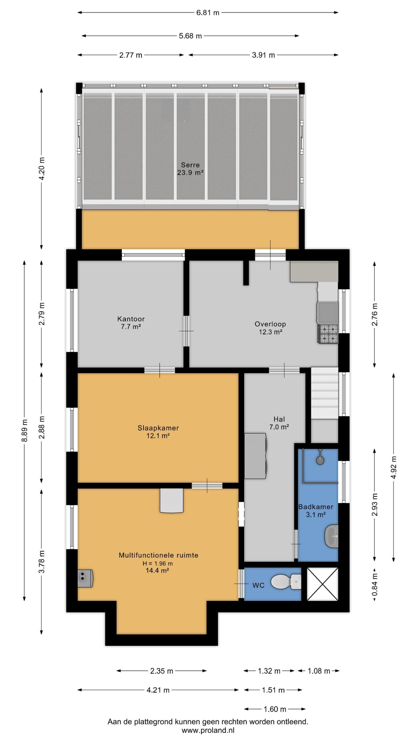
Verdeeld over vier woonlagen beschikt de woning over bijna tweehonderd vierkante meter woonoppervlakte. Op de begane grond een sfeervolle woonkamer ‘en suite’ voorzien van suitedeuren, speelse erker, balkon een half open keuken en uiteraard het toilet. Eén verdieping daarboven een overloop met vaste trapopgang naar de tweede verdieping, drie slaapkamers en een eenvoudige badkamer. Helemaal ‘bovenin nog eens twee slaapkamers - waarvan één met sauna - toegankelijk vanaf een overloop. Tot slot ‘onderin’, het souterrain verdeeld in diverse ruimtes waaronder een slaap- en werkkamer, pantry, tweede badkamer, toilet en multifunctionele ruimte.

Algemeen

  • StatusBeschikbaar
  • Koopprijs€ 300.000,- k.k.
  • AanvaardingIn overleg

Bouwvorm

  • Soort objectWoonhuis
  • Soort woningEengezinswoning
  • Type woningVrijstaande woning
  • Bouwjaar1937
  • BouwvormBestaande bouw
  • LiggingenAan rustige weg

Indeling

  • Woonoppervlakte198 m2
  • Perceeloppervlakte742 m2
  • Inhoud660 m3
  • Aantal kamers9
  • Aantal slaapkamers6
  • Aantal badkamers3

Energie

  • EnergieklasseE
  • VerwarmingCV ketel
  • C.V.-KetelRemeha
  • Bouwjaar C.V.-Ketel2024
  • WarmwaterCV ketel
  • IsolatieDakisolatie, Dubbelglas, HR glas
  • CombiketelJa
  • BrandstofGas
  • EigendomEigendom

Buitenruimte

  • TuinTuin rondom
  • HoofdtuinTuin rondom
  • AchteromJa
  • Kwaliteit tuinNormaal

Bergruimte

  • Schuur / BergingVrijstaand hout
  • Totaal aantal1

Parkeergelegenheid

  • Parkeer faciliteitenOp eigen terrein
  • GarageGeen garage

Dak

  • Soort dakZadeldak
  • Materiaal dakPannen, Bitumineuze Dakbedekking

Overig

  • Permanente bewoningJa
  • Onderhoud binnenGoed
  • Onderhoud buitenGoed
  • Huidig gebruikWoonhuis
  • Huidige bestemmingWoonhuis

Brandsma De Jong - Delfzijl

Kerkstraat 25
9934 CE Delfzijl
+31596 630 920

Vergelijkbare woningen

Onder optie
Hoofdafbeelding Eemslaan 5

Eemslaan 5

9947 PL Termunten

€ 175.000,- k.k.

Over welke vestiging wilt u meer te weten komen?

Welke vestiging mag uw woning verkopen?