Hoofdafbeelding Alberdalaan 3
Foto 2
Foto
Home Aanbod Alberdalaan 3

Alberdalaan 3

9981 NG Uithuizen

€ 495.000,- k.k.

Op een fraaie locatie aan de rand van de woonwijk 'Dingewold 2' ligt dit keurig onderhouden vrijstaand woonhuis (type stolp) op een ruime kavel van 776 m². Ideaal voor gezinnen én voor wie op zoek is naar een levensloopbestendige woning. In 2023 is de garage verbouwd tot een slaapkamer met een badkamer, waardoor je een volledig woonprogramma op de begane grond tot je beschikking hebt.

Tegenover de woning strekt zich een grote groene weide uit met o.a. een speeltuintje en een hertenkamp met daarachter het prachtig decor - de karakteristieke "Menkemaborg". Vanuit je woonkamer geniet je van dit fraaie en rustgevende panorama, wat bijdraagt aan een gevoel van ruimte en vrijheid.

Rondom de woning ligt een verzorgde tuin die uitnodigt tot ontspanning en genieten. Een praktische tuinberging biedt ruimte voor tuingereedschap en extra opslag. Het vijvertje vormt een rustgevend element en zorgt voor een natuurlijke sfeer. Daarnaast is er een overkapping, ideaal om ook bij minder gunstige weersomstandigheden of tot late zomeravonden comfortabel buiten te vertoeven.

De woning is bovendien duurzaam en energiezuinig uitgevoerd. Zo zijn er maar liefst 18 zonnepanelen wat bijdraagt aan lage energielasten, en is er een laadpaal voor de electrische auto aanwezig, wat de woning helemaal klaarmaakt voor de toekomst. Dankzij de volledige isolatie geniet je van optimaal wooncomfort, een aangenaam binnenklimaat en een efficiënte energiehuishouding. De inrichting is met oog voor stijl en comfort gerealiseerd met een moderne keuken en 2 fraaie badkamers, die luxe en functionaliteit perfect combineren en zorgen voor extra comfort en privacy voor het hele gezin.

De woning ligt in een kindvriendelijke woonomgeving, waarbij er voornamelijk bestemmingsverkeer in de wijk rijdt. Door de ligging grenzend aan de Menkemaborg, heb je heerlijke wandelmogelijkheden, maar ook de omliggende fietspaden lenen zich uitstekend om te genieten van het Groninger landschap. De grote (vis) vijver die centraal over de breedte van de woonwijk is gelegen geeft zowel in de zomer als in de winter veel vertier. Het centrum van Uithuizen is op loopafstand te bereiken en biedt alle nodige dagelijkse voorzieningen. Ook het (openlucht) zwembad, tennisbanen en andere sportfaciliteiten zijn binnen handbereik.

Indeling van de woning:
Entree, ruime hal, met trapopgang, meterkast en toilet. Vanuit de hal is er toegang tot de L-vormige woonkamer (ca. 40 m²) en de half open keuken voorzien van o.a. vaatwasser, kookplaat en combimagnetron. De vele lichtinval zorgt voor een
prettige woonbeleving gedurende de hele dag. De openslaande deuren geven direct toegang tot de achtertuin, waardoor je een perfecte overgang naar het buitenleven hebt. Via de bijkeuken van ca. 9 m² heb je toegang tot de slaapkamer van ca. 17 m² en badkamer (ca. 6 m²) met o.a. douche, 2e toilet en dubbele wastafel.
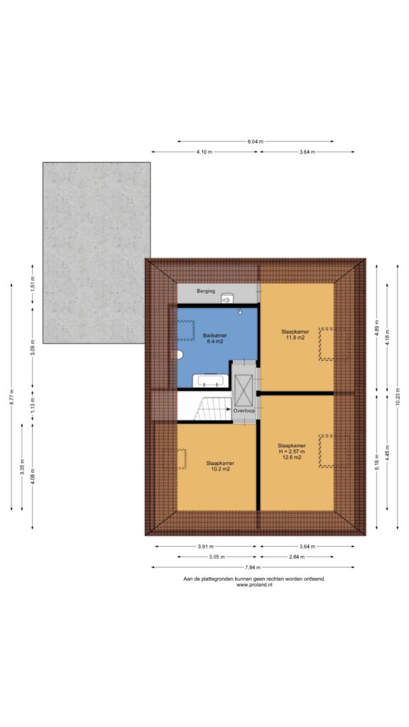
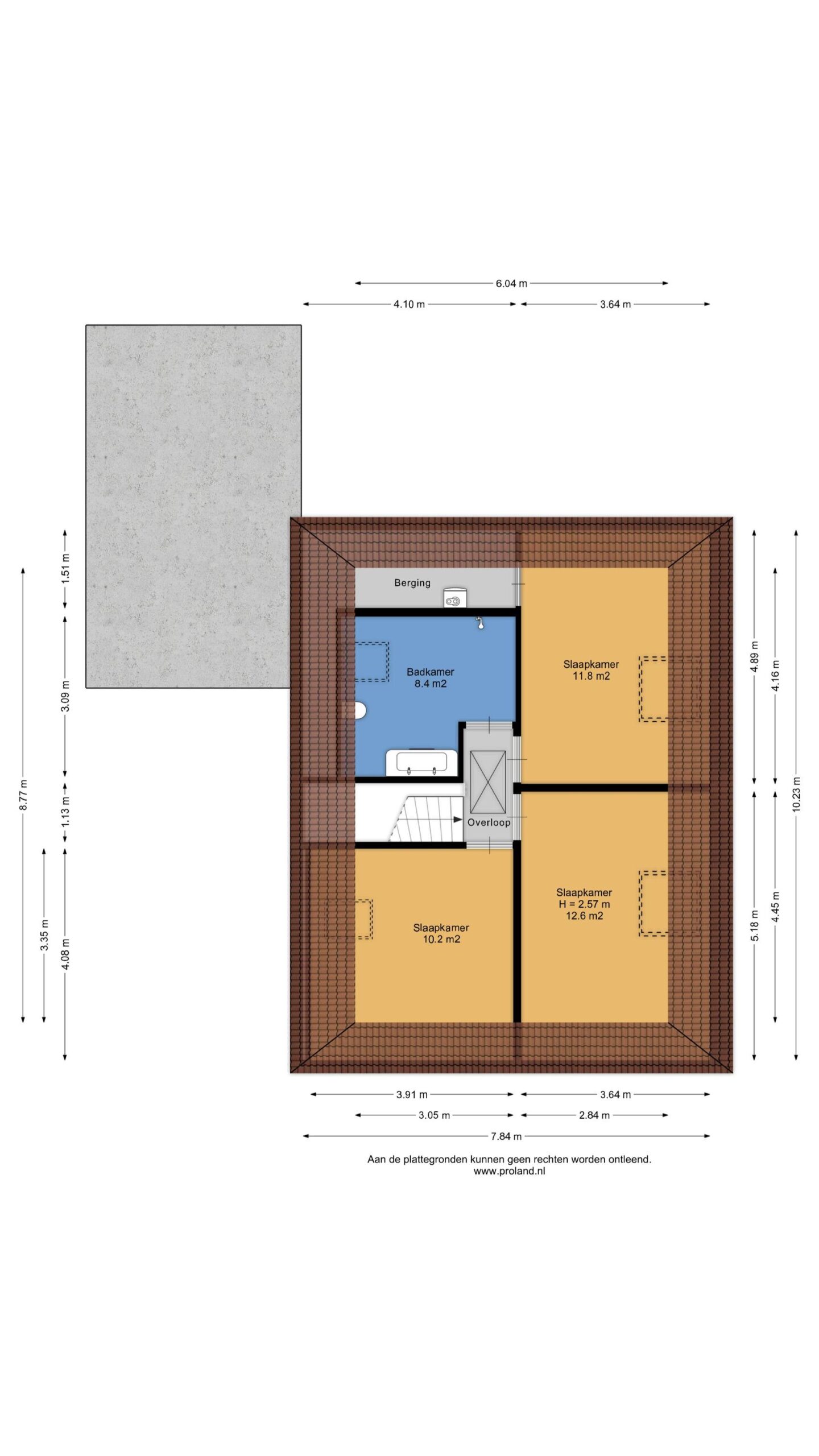
Verdieping: via de overloop heb je toegang tot 3 ruime slaapkamers van ca. 10,12 en 13 m² en de 2e badkamer (ca. 8 m²) met douche, dubbele wastafel en toilet.

Algemene informatie:
* vloerverwarming begane grond
* cv (2022) huur
* Laadpaal aanwezig
* Glasvezel internet
* 18 zonnepanelen
* Tuinberging van ca. 17 m²
* Strook gemeentegrond in gebruik € 2,25 per jaar

Algemeen

  • StatusBeschikbaar
  • Koopprijs€ 495.000,- k.k.
  • AanvaardingIn overleg

Bouwvorm

  • Soort objectWoonhuis
  • Soort woningEengezinswoning
  • Type woningVrijstaande woning
  • Bouwjaar2007
  • BouwvormBestaande bouw
  • LiggingenIn woonwijk

Indeling

  • Woonoppervlakte158 m2
  • Perceeloppervlakte776 m2
  • Inhoud612 m3
  • Aantal kamers5
  • Aantal slaapkamers4
  • Aantal badkamers2

Energie

  • EnergieklasseA
  • VerwarmingCV ketel, Vloerverwarming gedeeltelijk, Warmte terugwininstallatie
  • C.V.-KetelRemeha Tzerra Ace 28c
  • Bouwjaar C.V.-Ketel2022
  • WarmwaterCV ketel
  • IsolatieDakisolatie, Muurisolatie, Vloerisolatie
  • CombiketelJa
  • BrandstofGas
  • EigendomHuur

Buitenruimte

  • TuinTuin rondom
  • HoofdtuinTuin rondom
  • AchteromJa
  • Kwaliteit tuinVerzorgd

Bergruimte

  • Schuur / BergingVrijstaand hout
  • VoorzieningenVoorzien van elektra
  • Totaal aantal1

Parkeergelegenheid

  • GarageGeen garage

Dak

  • Soort dakTentdak
  • Materiaal dakPannen

Overig

  • Permanente bewoningJa
  • Onderhoud binnenGoed
  • Onderhoud buitenGoed
  • Huidig gebruikWoonruimte
  • Huidige bestemmingWoonruimte

Brandsma De Jong - Uithuizen

M.J. Bultenastraat 6
9981 JB Uithuizen
+31595 412 591

Vergelijkbare woningen

Hoofdafbeelding Schoolstraat 60A

Schoolstraat 60A

9981 AP Uithuizen

€ 398.000,- k.k.

Over welke vestiging wilt u meer te weten komen?

Welke vestiging mag uw woning verkopen?