Hoofdafbeelding Pr. Bernhardstraat 8
Foto
Foto 2
Home Aanbod Pr. Bernhardstraat 8

Pr. Bernhardstraat 8

9982 GH Uithuizermeeden

€ 289.000,- k.k.

Het dorp Uithuizermeeden is binnen de gemeente Hogeland gelegen en biedt daarbij een regiofunctie voor de omliggende dorpen. Als gevolg van deze regiofunctie biedt het dorp een breed scala aan voorzieningen, waarbij een groot deel hiervan zijn gesitueerd aan het Johan van Veenplein. Zo vindt u hier een supermarkt, cafetaria, kapsalon e.d., waarbij verspreid over het dorp nog diverse winkels zijn gevestigd. Naast een ruim winkelbestand beschikt het dorp ook over meerdere lagere scholen alsmede een treinstation met verbinding tussen de Eemshaven en de stad Groningen.

Op veilige loopafstand van deze dorpse voorzieningen bevindt zich de Prins Bernhardstraat, waar Brandsma De Jong op huisnummer 8 een heerlijke starterswoning te koop aanbiedt. Het betreft een 2-onder-1-kap woning, compleet met een uitgebouwde keuken en bijkeuken aan de achterzijde van de woning. Daarnaast beschikt het over een eigen oprit naar de vrijstaande houten garage, die met een maatvoering van bijna 24m2 royaal genoemd kan worden. Ook leidt deze oprit naar de verrassend diepe achtertuin met gazon, borders en een royaal zonneterras aan de achterzijde van de tuin.

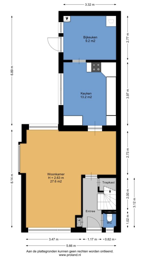
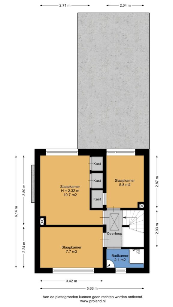
Intern beschikt het geheel over een centrale hal voorzien van meterkast, provisieruimte, modern toilet en trapopgang naar de eerste verdieping. Daarnaast biedt het toegang tot de L-vormige woonkamer voorzien van PVC en verbinding met de dichte eetkeuken. Deze dichte keuken biedt plaats aan een keurige inrichting en sluit aan op de bijkeuken met witgoedaansluiting en buitendeur. Op de eerste verdieping bevinden zich vervolgens drie slaapkamers - waarvan twee met vaste kasten - en een keurige badkamer met douche en wastafelmeubeltje alsmede een vlizotrap naar de vliering op de tweede verdieping.

Algemeen

  • StatusBeschikbaar
  • Koopprijs€ 289.000,- k.k.
  • AanvaardingIn overleg

Bouwvorm

  • Soort objectWoonhuis
  • Soort woningEengezinswoning
  • Type woningTwee onder één kapwoning
  • Bouwjaar1964
  • BouwvormBestaande bouw
  • LiggingenIn woonwijk

Indeling

  • Woonoppervlakte93 m2
  • Perceeloppervlakte339 m2
  • Inhoud363 m3
  • Aantal kamers4
  • Aantal slaapkamers3
  • Aantal badkamers1

Energie

  • EnergieklasseD
  • VerwarmingCV ketel
  • C.V.-KetelNefit
  • WarmwaterCV ketel
  • IsolatieDakisolatie, Muurisolatie, HR glas
  • CombiketelJa
  • BrandstofGas
  • EigendomEigendom

Buitenruimte

  • TuinAchtertuin, Voortuin
  • HoofdtuinAchtertuin
  • Oppervlakte136 m2
  • Ligging hoofdtuinNoordoost
  • AchteromJa
  • Kwaliteit tuinNormaal

Parkeergelegenheid

  • Parkeer faciliteitenOp eigen terrein
  • GarageVrijstaand hout
  • Capaciteit1
  • Garages1

Dak

  • Soort dakDwarskap
  • Materiaal dakPannen

Overig

  • Permanente bewoningJa
  • Onderhoud binnenGoed
  • Onderhoud buitenGoed
  • Huidig gebruikWoonruimte
  • Huidige bestemmingWoonruimte

Brandsma De Jong - Uithuizen

M.J. Bultenastraat 6
9981 JB Uithuizen
+31595 412 591

Vergelijkbare woningen

Hoofdafbeelding Tuinbouwweg 45

Tuinbouwweg 45

9982 EJ Uithuizermeeden

€ 325.000,- k.k.

Hoofdafbeelding Hoofdstraat 15

Hoofdstraat 15

9982 AA Uithuizermeeden

€ 325.000,- k.k.

Hoofdafbeelding Stationsstraat 2

Stationsstraat 2

9982 HA Uithuizermeeden

€ 369.000,- k.k.

Over welke vestiging wilt u meer te weten komen?

Welke vestiging mag uw woning verkopen?