Hoofdafbeelding Tuinbouwweg 45
Foto
Foto 2
Home Aanbod Tuinbouwweg 45

Tuinbouwweg 45

9982 EJ Uithuizermeeden

€ 325.000,- k.k.

Wat een fijne plek om thuis te komen!

Aan de rand van het dorp, op een rustige locatie staat deze VRIJSTAANDE woning met ROYALE tuin. Hier geniet je volop van de ruimte, de rust en het buitenleven. De achtertuin is echt een genot - ruim, groen en heerlijk vrij gelegen. Of je nu wilt tuinieren, spelen met de kinderen of gewoon ontspannen in de zon, het kan hier allemaal. Dankzij de royale kavel heb je bovendien alle mogelijkheden om het geheel naar eigen wens in te richten en te verfraaien.

De woning is netjes onderhouden en biedt een uitstekende basis om naar eigen wens te moderniseren. Dat is juist het mooie: je kunt het helemaal maken zoals jij het wilt.
Op de begane grond vind je een woonkamer aan de voorzijde en in het achterhuis een gezellige en lichte woonkeuken, twee slaapkamers en een compacte badkamer. Op de verdieping zijn nog twee extra slaapkamers aanwezig.

Kortom: een fijne vrijstaande woning op een prachtige locatie met ruimte om te wonen en te dromen!

Zie jij je hier wonen? Maak dan snel een bezichtigingsafspraak.

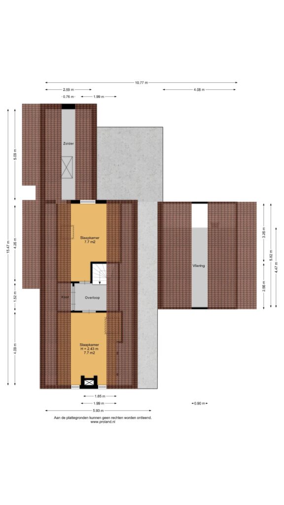
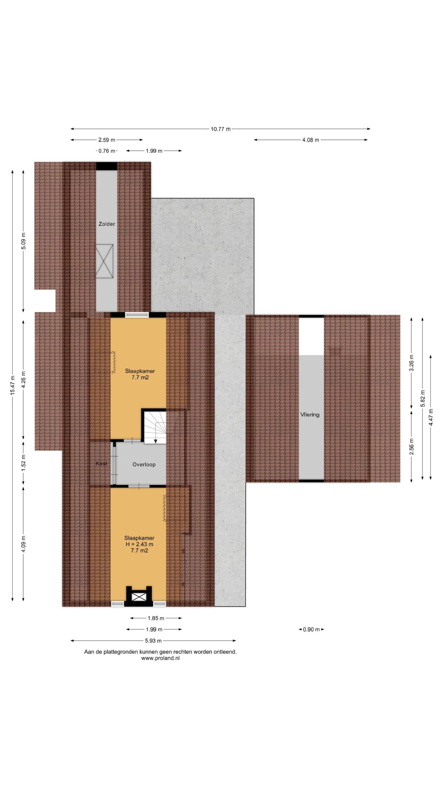
Indeling:
Entree, hal, woonkamer (ca. 24 m²) met laminaatvloer, slaapkamer (ca. 15 m²), doucheruimte met douche en wastafel, toilet, woonkeuken (ca. 25 m²) voorzien van een keukenblok met vaatwasser, combimagnetron en gasfornuis. Vanuit de woonkeuken heb je direct toegang tot de overkapping en de tuin. Via een tussenhal (en achterentree) bereik je de 2e slaapkamer van ca. 15 m² met vlizotrap naar de zolderruimte.
Op de verdieping zijn 2 slaapkamers van beide ca. 8 m². De aangebouwde garage heeft een oppervlakte van ca. 26 m², via een losse trap bereik je de vliering.

Algemene informatie:
- nieuwe CV ketel;

Algemeen

  • StatusBeschikbaar
  • Koopprijs€ 325.000,- k.k.
  • AanvaardingIn overleg

Bouwvorm

  • Soort objectWoonhuis
  • Soort woningEengezinswoning
  • Type woningVrijstaande woning
  • Bouwjaar1930
  • BouwvormBestaande bouw
  • LiggingenAan rustige weg, Vrij uitzicht, Landelijk gelegen

Indeling

  • Woonoppervlakte121 m2
  • Perceeloppervlakte1.460 m2
  • Inhoud627 m3
  • Aantal kamers5
  • Aantal slaapkamers4
  • Aantal badkamers1

Energie

  • EnergieklasseD
  • VerwarmingCV ketel, Gaskachels
  • C.V.-KetelNefit Pro Line
  • Bouwjaar C.V.-Ketel2025
  • WarmwaterCV ketel
  • IsolatieDakisolatie
  • CombiketelNee
  • EigendomEigendom

Buitenruimte

  • TuinAchtertuin
  • HoofdtuinAchtertuin
  • Oppervlakte920 m2
  • Ligging hoofdtuinNoordwest
  • AchteromNee
  • Kwaliteit tuinVerzorgd

Parkeergelegenheid

  • Parkeer faciliteitenOp eigen terrein
  • GarageAangebouwd steen
  • Capaciteit1
  • Garages1

Dak

  • Soort dakSamengesteld dak
  • Materiaal dakPannen, Bitumineuze Dakbedekking

Overig

  • Permanente bewoningJa
  • Onderhoud binnenRedelijk tot goed
  • Onderhoud buitenGoed
  • Huidig gebruikWoonruimte
  • Huidige bestemmingWoonruimte

Brandsma De Jong - Uithuizen

M.J. Bultenastraat 6
9981 JB Uithuizen
+31595 412 591

Vergelijkbare woningen

Hoofdafbeelding Hoofdstraat 15

Hoofdstraat 15

9982 AA Uithuizermeeden

€ 325.000,- k.k.

Hoofdafbeelding Pr. Bernhardstraat 8

Pr. Bernhardstraat 8

9982 GH Uithuizermeeden

€ 289.000,- k.k.

Hoofdafbeelding Stationsstraat 2

Stationsstraat 2

9982 HA Uithuizermeeden

€ 369.000,- k.k.

Over welke vestiging wilt u meer te weten komen?

Welke vestiging mag uw woning verkopen?