Hoofdafbeelding Oude Dijk 11
Foto
Foto 4
Home Aanbod Oude Dijk 11

Oude Dijk 11

9988 TB Usquert

€ 635.000,- k.k.

Op werkelijk een prachtige, landelijke locatie staat deze karakteristieke woonboerderij op een kavel van maar liefst 6902 m². Waar je je ook bevindt - in huis, in de tuin, of op het erf - aan alle zijden geniet je van een vrij en weids uitzicht over het omliggende landschap. Hier ervaar je elke dag rust, ruimte en vrijheid.

Deze woonboerderij biedt een unieke kans voor een echte levensgenieter. Of je nu droomt van het houden van paarden, kleinvee of gewoon wilt genieten van het buitenleven als hobbyboer, hier kan het allemaal met de aanwezige bijgebouwen en op de weidegronden. De royale kavel maakt dit object hiervoor uitermate geschikt. En je buren? Die bevinden zich op ca. 150 meter.

De rietgedekte woning is bovendien levensloopbestendig dankzij de aanwezigheid van een slaapkamer en een badkamer op de begane grond. Daarmee is comfortabel wonen in alle levensfasen gegarandeerd. Een bijzonder element in de woonkamer is de sfeervolle 'zitkuil'. Deze lager gelegen zithoek zorgt voor een speels effect en creëert tegelijkertijd een intieme, warme plek om samen te komen met de houtkachel als gezellig middelpunt. De authentieke uitstraling in combinatie met het comfort maken dit een bijzonder aantrekkelijk geheel.

In de zomermaanden komt het buitenleven hier volledig tot zijn recht. De prachtig aangelegde siertuin vormt een ware oase van groen, waar je in alle privacy kunt ontspannen en genieten van de natuur, het geluid van de vogels en de rust om je heen. De omgeving leent zich prima voor heerlijke fiets- of wandeltochten naar de nabijgelegen Waddenkust en het kleinste zeehaventje van Nederland "Noordpolderzijl".

Dit is wonen op een plek waar vrijheid vanzelfsprekend is, waar stilte nog écht stil is en waar iedere dag voelt als een kleine vakantie. De woning heeft veel te bieden, om dat te ervaren nodigen wij je graag uit voor een bezichtiging.

Indeling:
Entree, centrale hal, toilet, wasruimte en trapopgang naar de verdieping. Vervolgens de woon/eetkamer met een totale oppervlakte van ca. 48 m². De half open keuken (ca. 9 m²) is voorzien van inbouwapparatuur; oven, koelkast en vaatwasser. Vanuit de hal is er tevens toegang tot de royale slaapkamer van ca. 17 m² met aansluitend de inloopkast van ca. 4 m² en de badkamer van ca. 6 m² voorzien van ligbad, wastafel en douche.

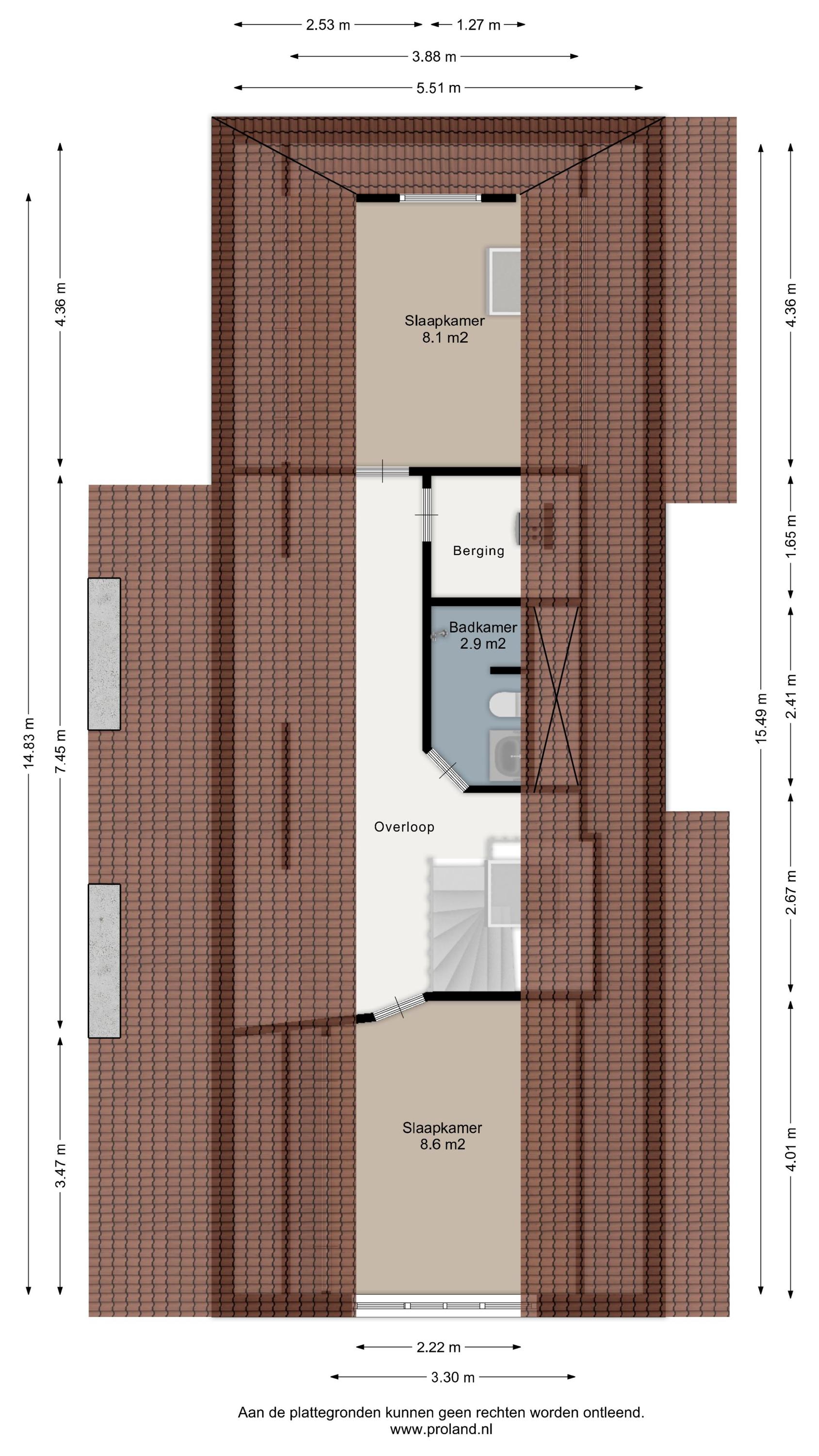
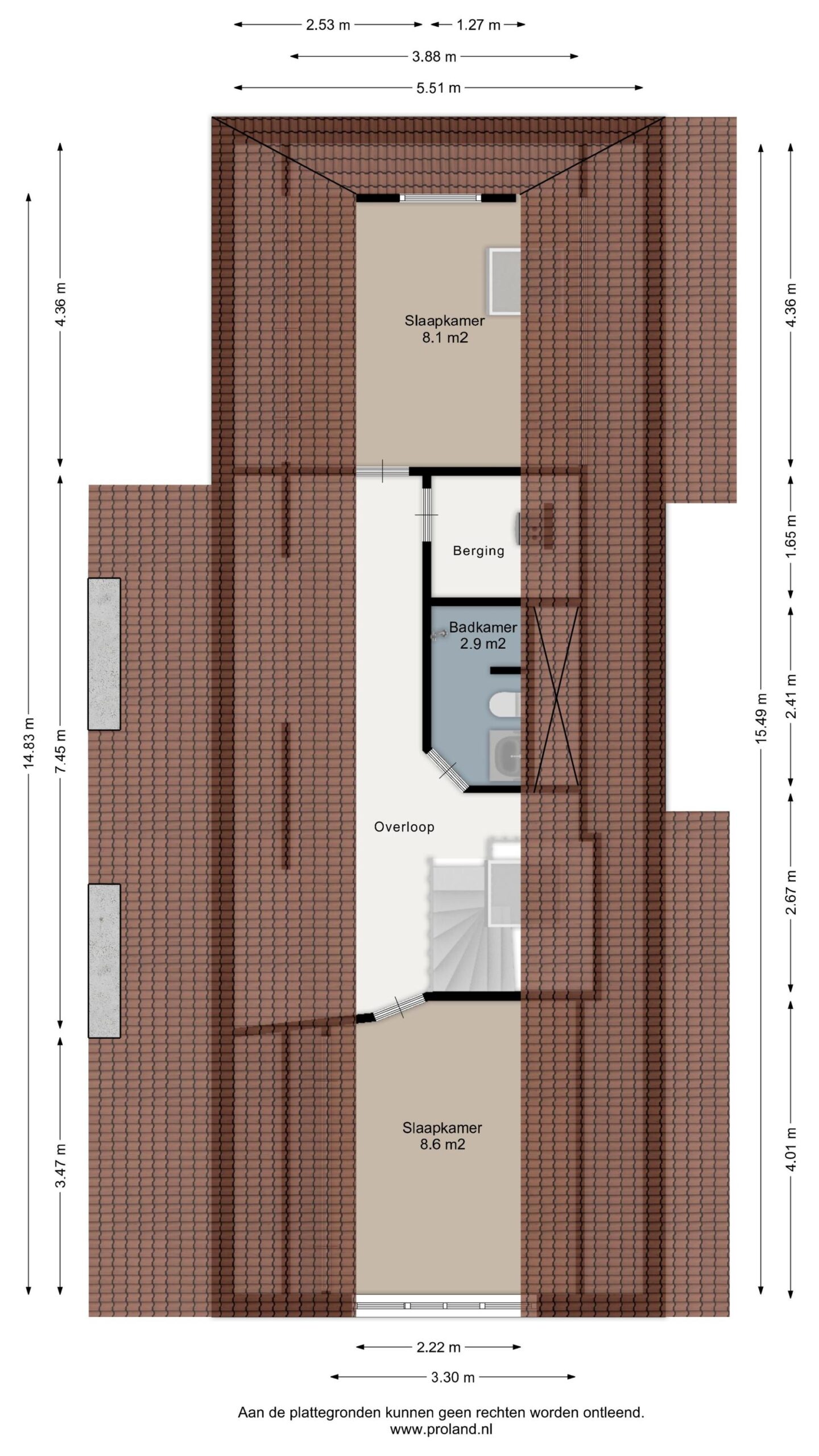
Op de verdieping tref je aan weerskanten 2 slaapkamers van ca. 8 en 9 m² met kastruimte onder de schuine wand, en een tweede badkamer voorzien van toilet, wastafel en douche. Naast de badkamer is een berging waar de CV opstelling en de waterontharder zich bevinden.

Algemeen:
* Kapschuur (met zolder), inloopstal met een totale oppervlakte van ca. 45 m²
* Carport (ca. 24 m²) met berging (ca. 8 m²)
* Tuinberging (ca. 7 m²) met overkapping
* Vloerverwarming in de zitkuil
* 11 zonnepanelen
* Waterontharder blijft achter
* CV ketel van 2025 (aangeschaft na opmaak energielabel)

Algemeen

  • StatusOnder optie
  • Koopprijs€ 635.000,- k.k.
  • AanvaardingIn overleg

Bouwvorm

  • Soort objectWoonhuis
  • Soort woningWoonboerderij
  • Type woningVrijstaande woning
  • Bouwjaar2007
  • BouwvormBestaande bouw
  • LiggingenAan rustige weg, Vrij uitzicht, Landelijk gelegen

Indeling

  • Woonoppervlakte147 m2
  • Perceeloppervlakte6.902 m2
  • Inhoud552 m3
  • Aantal kamers6
  • Aantal slaapkamers3
  • Aantal badkamers2

Energie

  • EnergieklasseC
  • VerwarmingCV ketel, Vloerverwarming gedeeltelijk, Houtkachel
  • C.V.-KetelNefit Trendline hrc 30
  • Bouwjaar C.V.-Ketel2025
  • WarmwaterCV ketel
  • IsolatieDakisolatie, Muurisolatie, Dubbelglas
  • CombiketelJa
  • BrandstofGas
  • EigendomEigendom

Buitenruimte

  • TuinTuin rondom
  • HoofdtuinTuin rondom
  • AchteromJa
  • Kwaliteit tuinVerzorgd

Bergruimte

  • Schuur / BergingVrijstaand hout
  • VoorzieningenVoorzien van elektra
  • Totaal aantal2

Parkeergelegenheid

  • Parkeer faciliteitenOp eigen terrein
  • GarageCarport

Dak

  • Soort dakZadeldak
  • Materiaal dakRiet

Overig

  • Permanente bewoningJa
  • Onderhoud binnenGoed
  • Onderhoud buitenGoed
  • Huidig gebruikWoonruimte
  • Huidige bestemmingWoonruimte

Brandsma De Jong - Uithuizen

M.J. Bultenastraat 6
9981 JB Uithuizen
+31595 412 591

Over welke vestiging wilt u meer te weten komen?

Welke vestiging mag uw woning verkopen?

Brandsma de Jong

Vragen?

Wij helpen u graag