Hoofdafbeelding A.E. Gorterweg 12
Foto 36
Foto 7
Home Aanbod A.E. Gorterweg 12

A.E. Gorterweg 12

9946 PC Woldendorp

€ 425.000,- k.k.

Sommige woningen die we mogen verkopen hebben meer kwaliteiten dan de woning op zichzelf... Dit geldt ook voor de sfeervolle, vrijstaande woning aan de A.E. Gorterweg 12 in Woldendorp. Op dit royale perceel is namelijk niet lang geleden een vrijstaande loods annex werkplaats gerealiseerd, aan de achterzijde inmiddels voorzien van een functionele uitbouw. Binnen de woonbestemming die het perceel kent, biedt dit legio gebruiksmogelijkheden op het gebied van hobby’s en/of werk. Overigens, naast deze mogelijkheden biedt het perceel ook voldoende ‘privé’... Getuige de heerlijke veranda ter plaatse van de woonkeuken met zicht over de diepe achtertuin.

De woning zelf is oorspronkelijk uit de jaren twintig van de vorige eeuw. Gelukkig beschikt het nog steeds over de stijlkenmerken uit die periode. Denk aan de combinatie van het fraaie metselwerk met stucwerk, de dakoverstekken, het glas-in-lood maar ook de fraaie entree en intern bijvoorbeeld de originele deuren met kozijnen. Overigens is de woning zeker niet blijven ‘hangen’ in die vervolgen tijden. Naar de maatstaven van het oorspronkelijke bouwjaar is het namelijk tegenwoordig uitstekend geïsoleerd waarbij het intern ook volledig is gemoderniseerd en bijvoorbeeld voorzien van airco’s. Hierdoor ervaart u de sfeer van toen in een hedendaags jasje aan de A.E. Gorterweg 12.

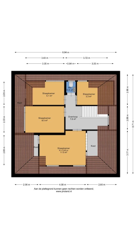
De indeling is eveneens voor een brede doelgroep heel interressant. In de eerste plaats vanwege de verdeling op de begane grond. Een heerlijke woonkamer aan de straatzijde voorzien van een sfeervolle haard en dito suitedeuren naar de woonkeuken. Deze keuken is absoluut een prettige leefruimte. Onder meer vanwege de maatvoering, het contact met de woonkamer maar ook met de tuin via de tuindeuren en veranda! Op de begane grond verder een provisiekelder, modern betegeld toilet, royale bijkeuken maar meest opvallend een zeer moderne badkamer! De slaapkamers zijn op de eerste verdieping gesitueerd. Vier in totaal, allen voorzien van een keurige laminaatvloer met een tweede toilet.

Algemeen

  • StatusVerkocht onder voorbehoud
  • Koopprijs€ 425.000,- k.k.
  • AanvaardingIn overleg

Bouwvorm

  • Soort objectWoonhuis
  • Soort woningEengezinswoning
  • Type woningVrijstaande woning
  • Bouwjaar1920
  • BouwvormBestaande bouw
  • LiggingenAan drukke weg

Indeling

  • Woonoppervlakte134 m2
  • Perceeloppervlakte1.168 m2
  • Inhoud537 m3
  • Aantal kamers5
  • Aantal slaapkamers4
  • Aantal badkamers1

Energie

  • EnergieklasseB
  • VerwarmingCV ketel
  • C.V.-KetelRemeha
  • Bouwjaar C.V.-Ketel2015
  • WarmwaterCV ketel
  • IsolatieDakisolatie, Muurisolatie, Vloerisolatie, Dubbelglas
  • CombiketelJa
  • BrandstofGas
  • EigendomEigendom

Buitenruimte

  • TuinTuin rondom
  • HoofdtuinTuin rondom
  • AchteromJa

Parkeergelegenheid

  • Parkeer faciliteitenOp eigen terrein
  • GarageVrijstaand steen
  • Capaciteit4
  • Garages1

Dak

  • Soort dakSchilddak
  • Materiaal dakPannen, Bitumineuze Dakbedekking

Overig

  • Permanente bewoningJa
  • Onderhoud binnenGoed
  • Onderhoud buitenGoed
  • Huidig gebruikWoonhuis
  • Huidige bestemmingWoonhuis

Brandsma De Jong - Delfzijl

Kerkstraat 25
9934 CE Delfzijl
+31596 630 920

Vergelijkbare woningen

Onder optie
Hoofdafbeelding Heemweg 8

Heemweg 8

9946 RP Woldendorp

€ 250.000,- k.k.

Over welke vestiging wilt u meer te weten komen?

Welke vestiging mag uw woning verkopen?