Hoofdafbeelding Burgemeester Meesstraat 12
Foto
Foto 2
Home Aanbod Burgemeester Meesstraat 12

Burgemeester Meesstraat 12

9902 NT Appingedam

€ 350.000,- k.k.

De wijk Opwierde Zuid in Appingedam heeft onlangs een grootschalige herstructurering ondergaan. Eén van de woningen die van dit project deel heeft uitmaakt is de tussenwoning aan de Burgemeester Meesstraat 12. Door het recente bouwjaar en de bijbehorende bouwaard is het geheel als duurzaam te kenmerken. Niet alleen op het gebied van isolatie. Ook als gevolg van de aanwezigheid van zonnepanelen en het ‘gasloze’ karakter ervan. Deze ruime gezinswoning wordt namelijk verwarmd middels een lucht/water warmtepomp. Opvallend aan de buitenzijde is in de eerste plaats de bijkeuken aan de tuinzijde. Bijkomend voordeel, de tuin is direct middels heerlijke tuindeuren te bereiken vanuit de woonkamer.

Voorzieningen voor de dagelijkse behoeften bevinden zich in de directe nabijheid en zijn op loopafstand aanwezig. Daarnaast grenst de woning aan de voorzijde aan een kindvriendelijk speelveldje, wat deze plek bij uitstek geschikt maakt voor jonge gezinnen.

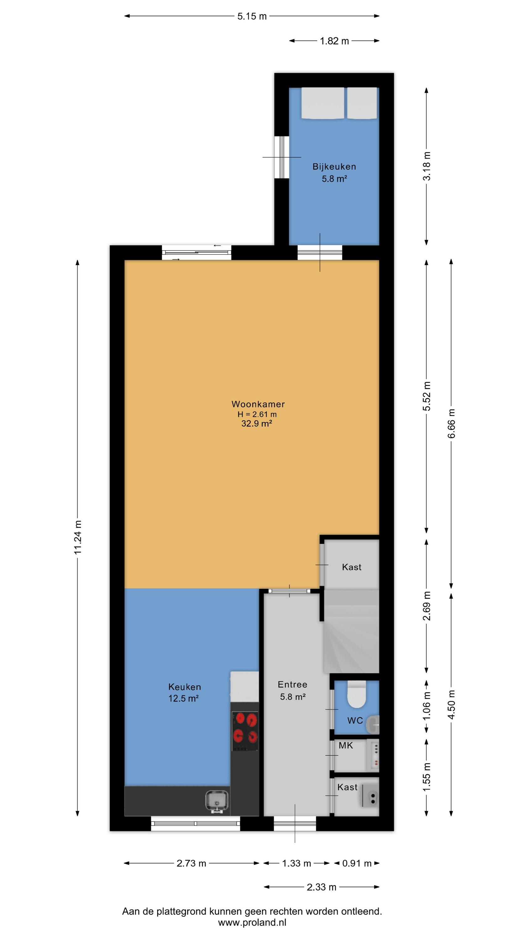
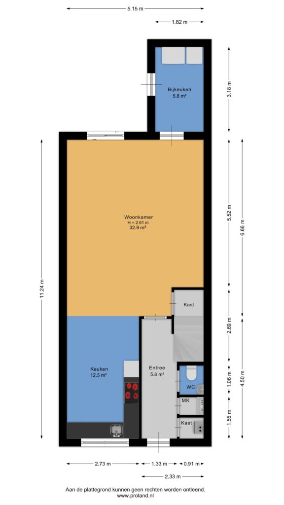
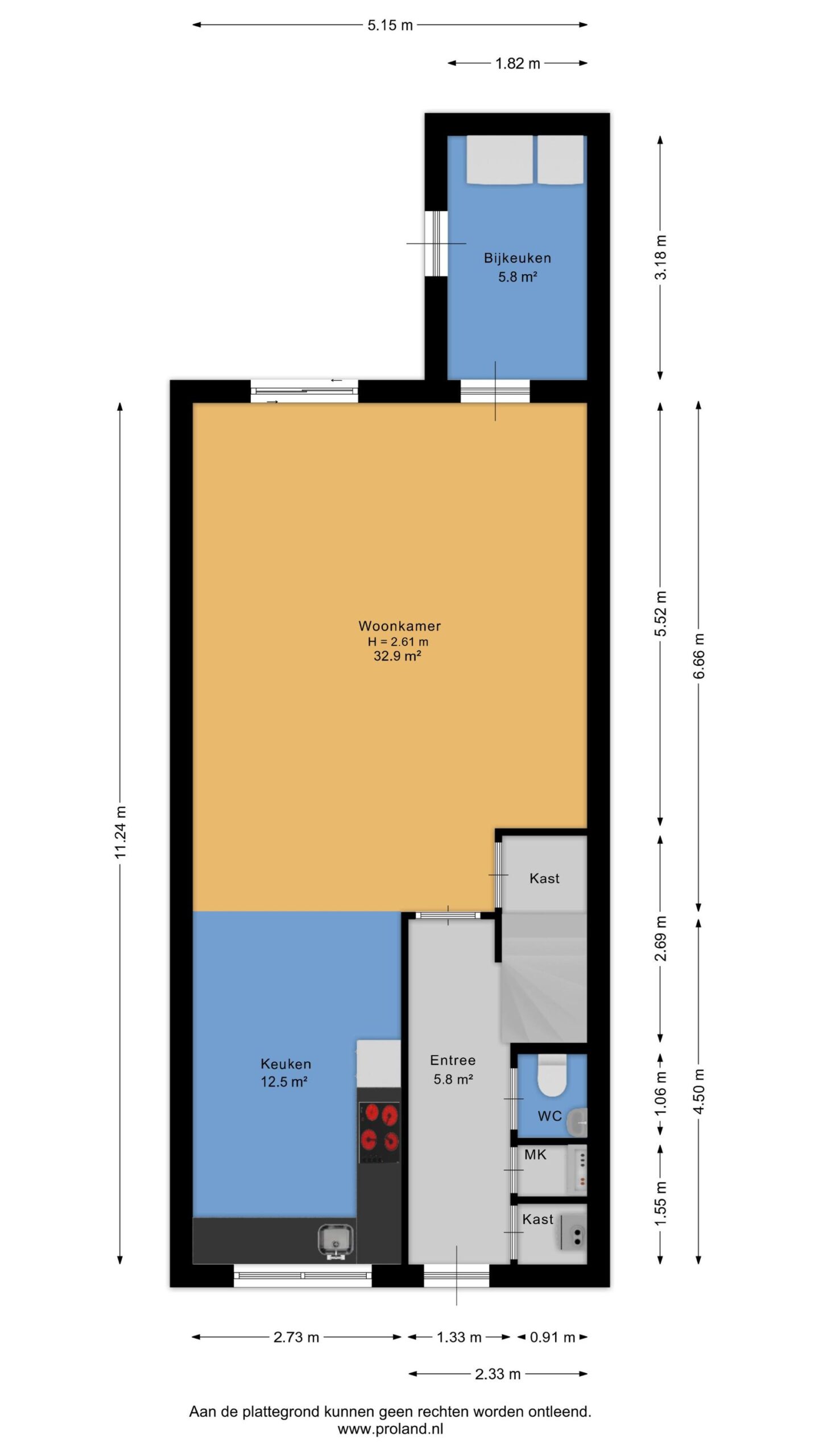
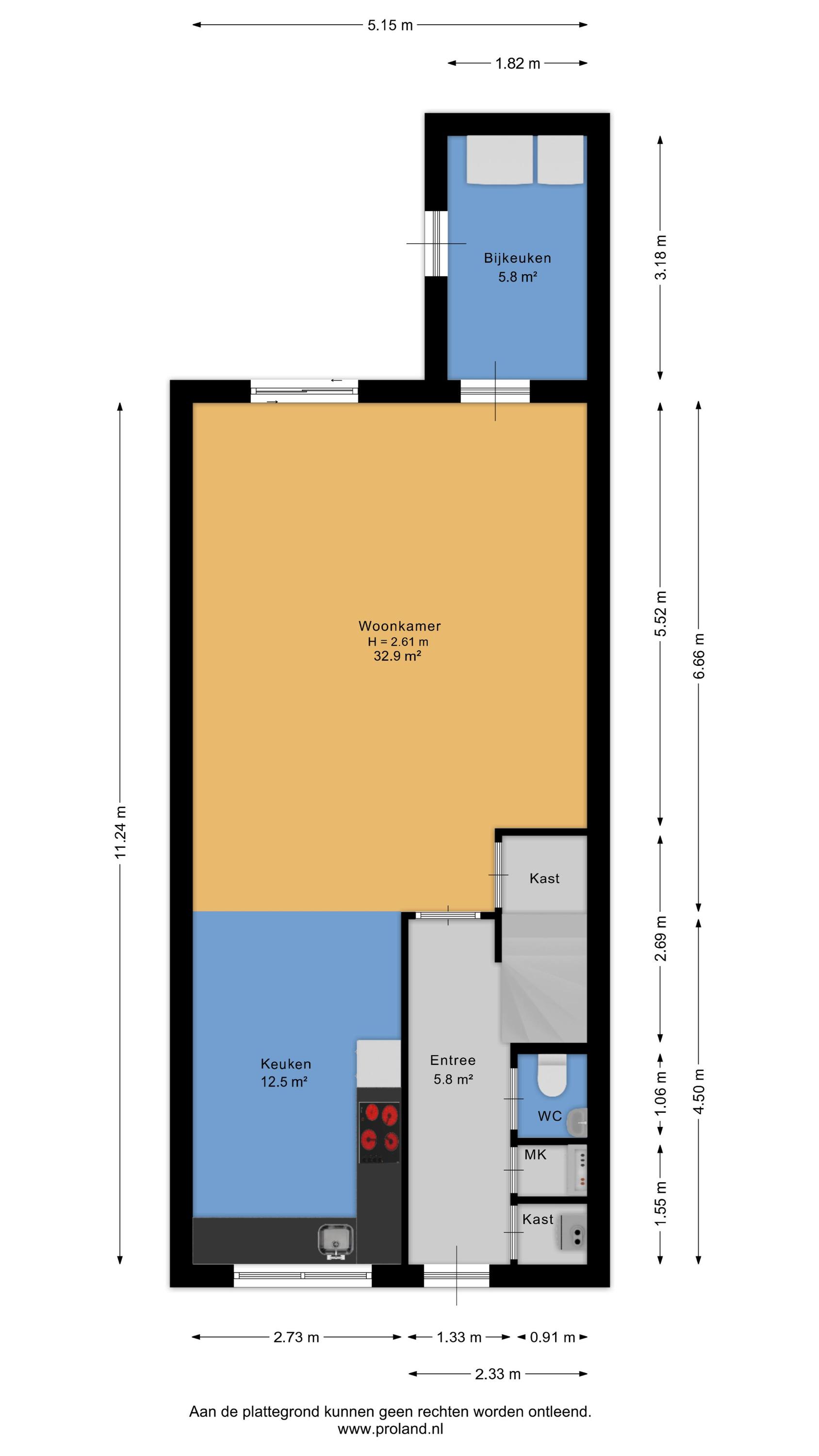
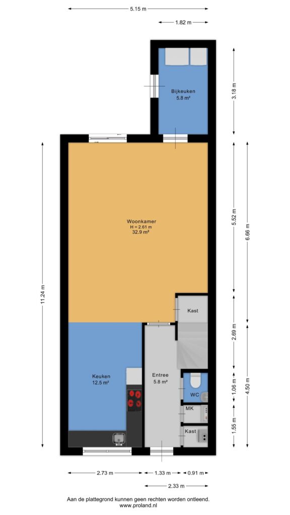
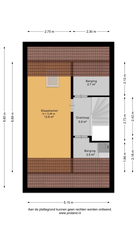
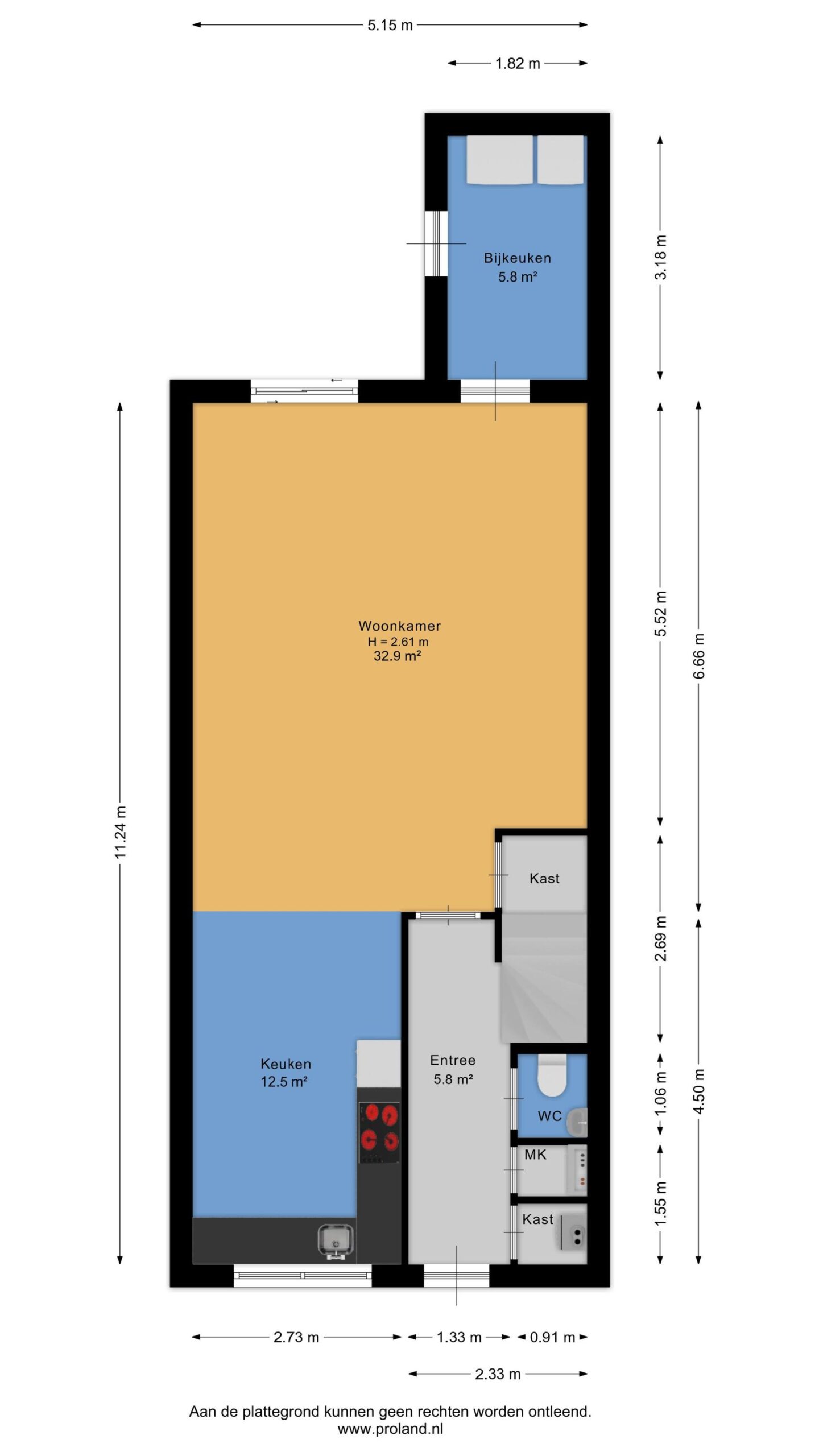
De indeling van de woning bestaat op de begane grond uit een hal met meterkast, modern toilet en de trapopgang naar de eerste verdieping. De woonkamer is tuingericht gesitueerd en voorzien van heerlijke tuindeuren en een aansluitende bijkeuken. Aan de straatzijde bevindt zich de open keuken, compleet met een moderne inrichting en voorzien van alle inbouwapparatuur. De overloop op de eerste verdieping beschikt over een vaste trapopgang naar de tweede verdieping en drie bruikbare slaapkamers. De badkamer bevindt zich ook op deze woonlaag en is modern uitgevoerd met een inloopdouche, wastafelmeubel en tweede toilet. Ook op de tweede verdieping leidt de overloop naar een royale slaapkamer. Het geheel wordt op deze woonlaag gecompleteerd middels een berg- en stookruimte, waar zich tevens de aansluitingen voor het witgoed bevinden.

Bijzonderheden:
- geheel voorzien van kunststof kozijnen, ramen en deuren;
- energielabel A+++;
- uitgerust met 14 zonnepanelen;
- grotendeels voorzien van vloerverwarming;
- voorzien van elektrische screens, rolluiken en horren;
- warmtepomp, boilervat en ventilatiesysteem.

Indien niet verkocht:

- Shaneska Gonzalez / 0642567467 / gonzalezshaneska@hotmail.com

Algemeen

  • StatusVerkocht onder voorbehoud
  • Koopprijs€ 350.000,- k.k.
  • AanvaardingIn overleg

Bouwvorm

  • Soort objectWoonhuis
  • Soort woningEengezinswoning
  • Type woningTussenwoning
  • Bouwjaar2023
  • BouwvormBestaande bouw
  • LiggingenIn woonwijk

Indeling

  • Woonoppervlakte136 m2
  • Perceeloppervlakte209 m2
  • Inhoud489 m3
  • Aantal kamers5
  • Aantal slaapkamers4
  • Aantal badkamers1

Energie

  • EnergieklasseA+++
  • VerwarmingVloerverwarming gedeeltelijk, Warmtepomp, Warmte terugwininstallatie
  • IsolatieVolledig geïsoleerd, HR glas
  • CombiketelNee

Buitenruimte

  • TuinAchtertuin, Voortuin
  • HoofdtuinAchtertuin
  • Oppervlakte38 m2
  • Ligging hoofdtuinZuidoost
  • AchteromJa

Bergruimte

  • Schuur / BergingAangebouwd steen
  • Totaal aantal1

Parkeergelegenheid

  • Parkeer faciliteitenOpenbaar parkeren
  • GarageGeen garage

Dak

  • Soort dakZadeldak
  • Materiaal dakPannen, Bitumineuze Dakbedekking

Overig

  • Permanente bewoningJa
  • Onderhoud binnenGoed
  • Onderhoud buitenGoed
  • Huidig gebruikWoonhuis
  • Huidige bestemmingWoonhuis

Brandsma De Jong - Delfzijl

Kerkstraat 25
9934 CE Delfzijl
+31596 630 920

Vergelijkbare woningen

Hoofdafbeelding Wijkstraat 89

Wijkstraat 89

9901 AH Appingedam

€ 295.000,- k.k.

Verkocht onder voorbehoud
Hoofdafbeelding Prins Hendrikstraat 8

Prins Hendrikstraat 8

9902 CN Appingedam

€ 295.000,- k.k.

Onder optie
Hoofdafbeelding Koningstraat 11a

Koningstraat 11a

9901 EC Appingedam

€ 195.000,- k.k.

Hoofdafbeelding Heiliggravenweg 16

Heiliggravenweg 16

9901 CH Appingedam

€ 425.000,- k.k.

Over welke vestiging wilt u meer te weten komen?

Welke vestiging mag uw woning verkopen?

Brandsma de Jong

Vragen?

Wij helpen u graag