Hoofdafbeelding Prins Hendrikstraat 8
Foto 2
Foto
Home Aanbod Prins Hendrikstraat 8

Prins Hendrikstraat 8

9902 CN Appingedam

€ 295.000,- k.k.

* REEDS VOOR PUBLICATIE VERKOCHT *

Wat een fantastische woning! Dat durven we met recht wel te stellen van deze 2^1 kapwoning aan de Prins Hendrikstraat 8 te Appingedam. Goed onderhouden en werkelijk instapklaar met bijvoorbeeld een toilet en badkamer uit 2022, een gloednieuwe keuken van een half jaar oud, grotendeels kunststof kozijnen en deuren, pvc visgraat vloeren beneden en 3 keurig nette slaapkamers. Maar ook buiten een uiterst royale carport welke hoog genoeg is voor een caravan of camper en een onderhoudsarme tuin welke is gesitueerd op het zuiden en die zo is ingericht dat er tot de allerlaatste seconde van de zon kan worden genoten.

Door de centrale ligging van de woning bevinden het historische centrum van Appingedam, winkelcentra Harddraversplein en Overdiep, de jachthaven, sportvoorzieningen en basis- en voortgezet onderwijs zich allemaal op loop- c.q. fietsafstand. Zo bevindt het busstation zich ook op steenworp afstand en is het NS-station - met verbinding tussen Delfzijl en stad Groningen - tevens in de nabijheid gesitueerd.

Indeling:

Begane grond:
Entree/hal met meterkast, toilet en opgang naar de verdieping, woonkamer (ca. 24 m²; met tuindeuren) en half open keuken (ca. 6,5 m²; met hoekopstelling uit 2025 voorzien van koelkast, combi-oven, vaatwasser, inductiekookplaat en afzuigkap), bijkeuken (ca. 9,5 m²; met witgoedaansluitingen, cv-opstelling en achterentree).

Verdieping:
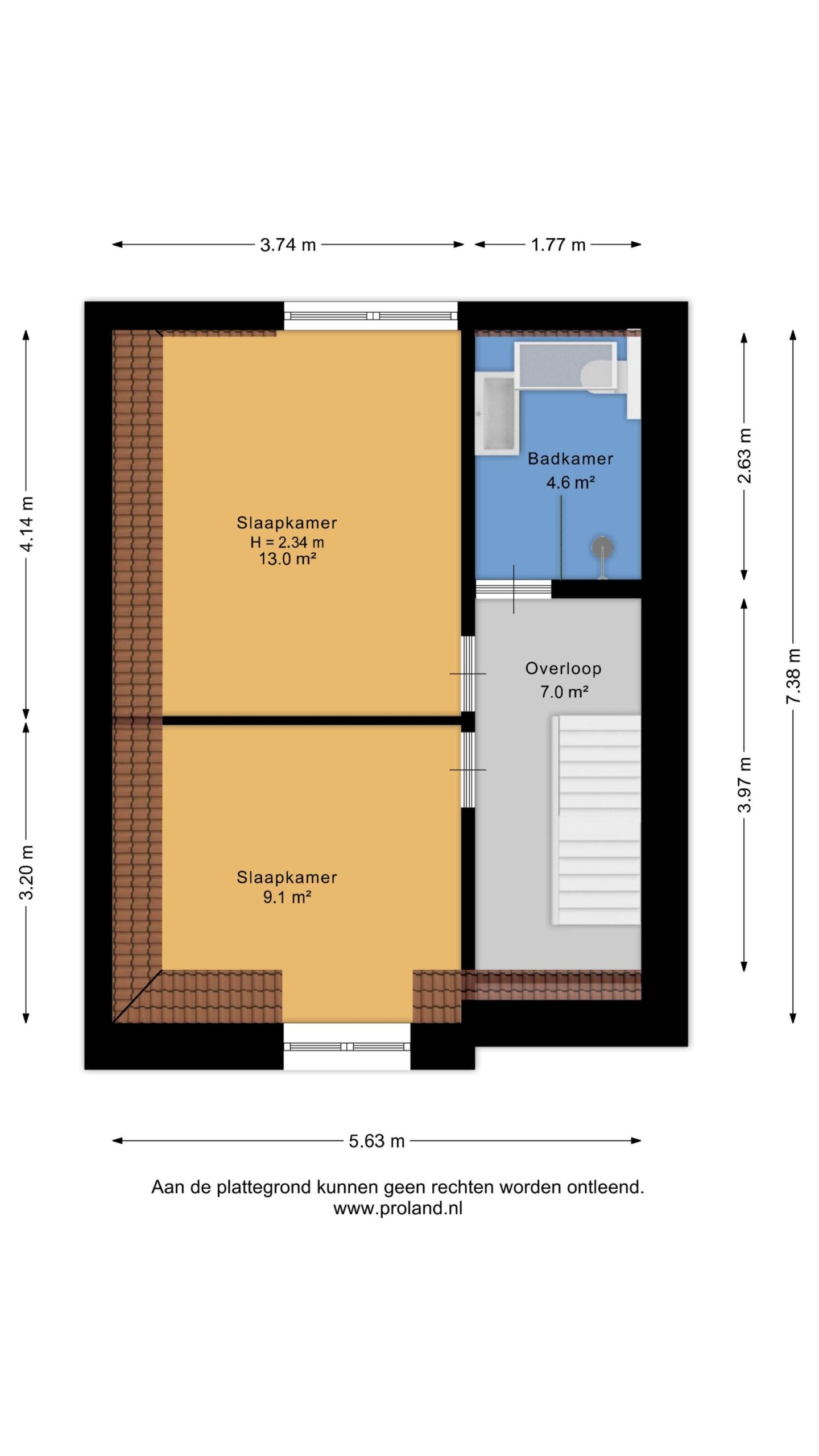
Middels vaste trap te bereiken overloop met opgang naar de zoldeverdieping en aangrenzend slaapkamer (ca. 13 m²), slaapkamer (ca. 9 m²) en badkamer (ca. 4,5 m²; vernieuwd in 2022 en met inloopdouche, wastafelmeubel en toilet).

Zolder:
Middels vaste trap te bereiken zolderkamer (ca. 7 m²).

Buiten:
- Aangebouwde royale carport (ca. 22 m²);
- Vrijstaande houten berging (ca. 10 m²).

Extra informatie:
- Verwarming middels cv-combiketel Intergas, bouwjaar 2017, eigendom;
- Vloerverwarming begane grond (m.u.v bijkeuken);
- Begane grond voorzien van kunststof kozijnen + deuren met HR++ beglazing (2022) en op de verdieping voorzien van houten kozijnen met isolerende beglazing;
- Keuken is vernieuwd in augustus 2025;
- Badkamer en toilet vernieuwd in 2022;
- Voorzien van 5 zonnepanelen;
- Nieuwe zinken goten (2025).

Algemeen

  • StatusVerkocht onder voorbehoud
  • Koopprijs€ 295.000,- k.k.
  • AanvaardingIn overleg

Bouwvorm

  • Soort objectWoonhuis
  • Soort woningEengezinswoning
  • Type woningTwee onder één kapwoning
  • Bouwjaar1922
  • BouwvormBestaande bouw
  • LiggingenIn woonwijk

Indeling

  • Woonoppervlakte82 m2
  • Perceeloppervlakte202 m2
  • Inhoud356 m3
  • Aantal kamers4
  • Aantal slaapkamers3
  • Aantal badkamers1

Energie

  • EnergieklasseC
  • VerwarmingCV ketel
  • C.V.-KetelIntergas HRE CW4
  • Bouwjaar C.V.-Ketel2017
  • WarmwaterCV ketel
  • IsolatieDakisolatie, Muurisolatie, Vloerisolatie, HR glas
  • CombiketelJa
  • BrandstofGas
  • EigendomEigendom

Buitenruimte

  • TuinAchtertuin, Voortuin
  • HoofdtuinAchtertuin
  • Oppervlakte50 m2
  • Ligging hoofdtuinZuid
  • AchteromJa
  • Kwaliteit tuinVerzorgd

Bergruimte

  • Schuur / BergingVrijstaand hout
  • Totaal aantal1

Parkeergelegenheid

  • Parkeer faciliteitenOp eigen terrein
  • GarageCarport, Geen garage

Dak

  • Soort dakSchilddak
  • Materiaal dakPannen

Overig

  • Permanente bewoningJa
  • Onderhoud binnenGoed
  • Onderhoud buitenGoed
  • Huidig gebruikWoonruimte
  • Huidige bestemmingWoonruimte

Brandsma De Jong - Delfzijl

Kerkstraat 25
9934 CE Delfzijl
+31596 630 920

Vergelijkbare woningen

Hoofdafbeelding Wijkstraat 89

Wijkstraat 89

9901 AH Appingedam

€ 295.000,- k.k.

Onder optie
Hoofdafbeelding Koningstraat 11a

Koningstraat 11a

9901 EC Appingedam

€ 195.000,- k.k.

Verkocht onder voorbehoud
Hoofdafbeelding Burgemeester Meesstraat 12

Burgemeester Meesstraat 12

9902 NT Appingedam

€ 350.000,- k.k.

Hoofdafbeelding Heiliggravenweg 16

Heiliggravenweg 16

9901 CH Appingedam

€ 425.000,- k.k.

Over welke vestiging wilt u meer te weten komen?

Welke vestiging mag uw woning verkopen?

Brandsma de Jong

Vragen?

Wij helpen u graag