Hoofdafbeelding Walker 14
Foto
Foto 2
Home Aanbod Walker 14

Walker 14

9934 LK Delfzijl

€ 300.000,- k.k.

Uiteraard verkopen we vaker een 2-onder-1-kap woning, maar niet alle dagen één die uiterlijk zo afwijkend is als deze… Aan de Walker mogen we op huisnummer veertien namelijk een bijzondere versie te koop aanbieden. Bijzonder vanwege bijvoorbeeld de twee balkons aan de voor- en achterzijde. Naast bijzonder kan het ook als onderhoudsvriendelijk worden beschreven. Het beschikt namelijk over kunststof kozijnen met HR++ beglazing. Ook de indeling draagt bij aan een brede doelgroep door onder meer de aanwezigheid van vier slaapkamers. De heerlijke tuin die hierachter ‘schuilgaat’ is eveneens onderhoudsarm en recent verfraaid. Meer functioneel is aan de straatzijde een eigen oprit aanwezig, die leidt naar de aangebouwde garage. Naast een garage is ook een royale carport gerealiseerd. Uw auto staat dus altijd droog geparkeerd!

En dan de ligging. Kort samengevat; centraal binnen een rustige woonwijk, maar op loopafstand van diverse stedelijke voorzieningen die de havenplaats Delfzijl te bieden heeft. Kortom, ideaal voor - grote - gezinnen! De Walker maakt namelijk onderdeel uit van de wijk West II, een wijk die zelf zeer centraal binnen de havenstad Delfzijl is gelegen. De woonwijk is in de jaren zeventig van de vorige eeuw - als een nieuwe uitbreidingswijk - gerealiseerd die we ‘anno nu’ ook wel kennen als de Steenbakkersbuurt. De wijk kent een overzichtelijke opbouw en structuur en beschikt over een grote verscheidenheid aan woningtypes in overwegend de koopsector. In de directe nabijheid is een lagere school, een Gezondheidscentrum, Kinderopvang, treinstation - met verbinding naar de steden Groningen en Delfzijl - en Winkelcentrum Jachtlaan gesitueerd.

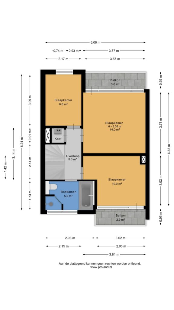
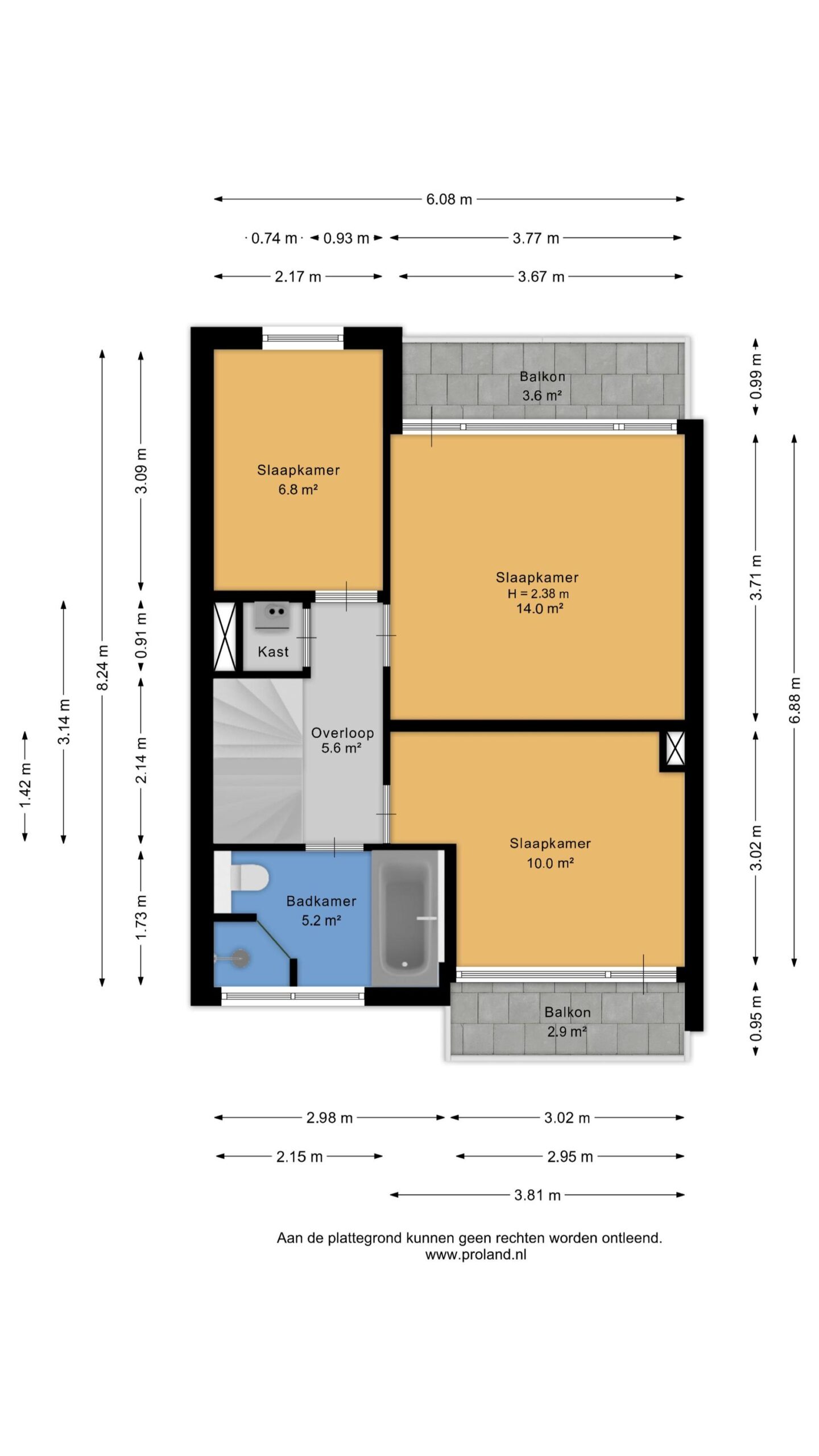
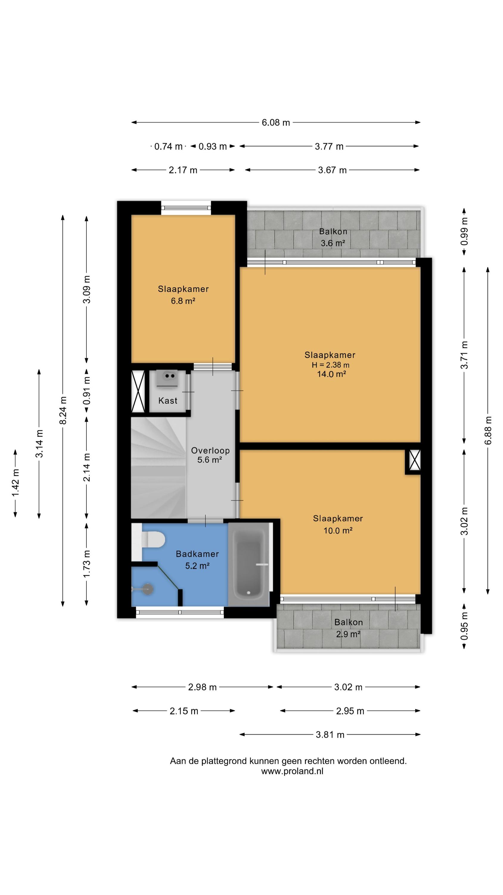
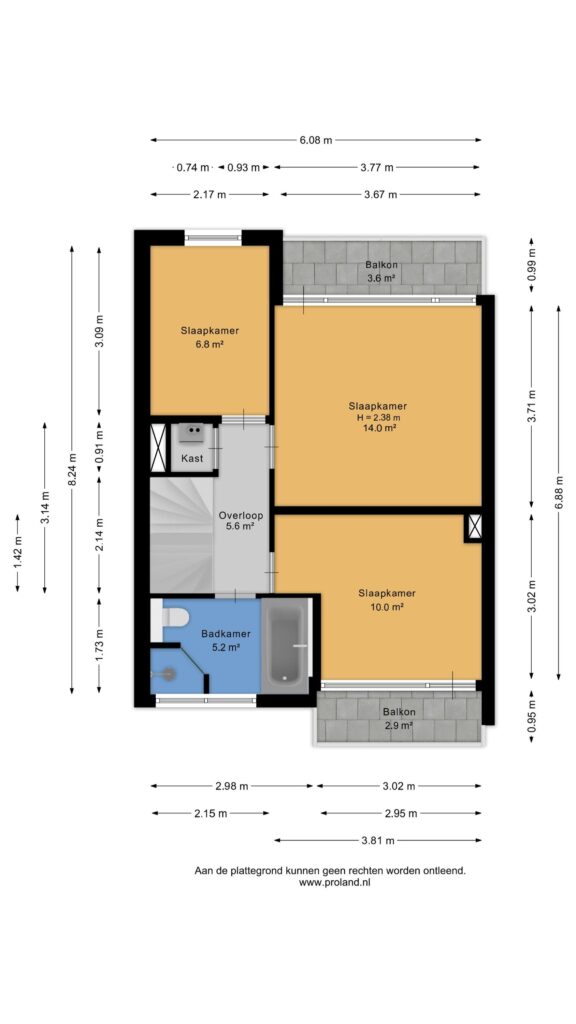
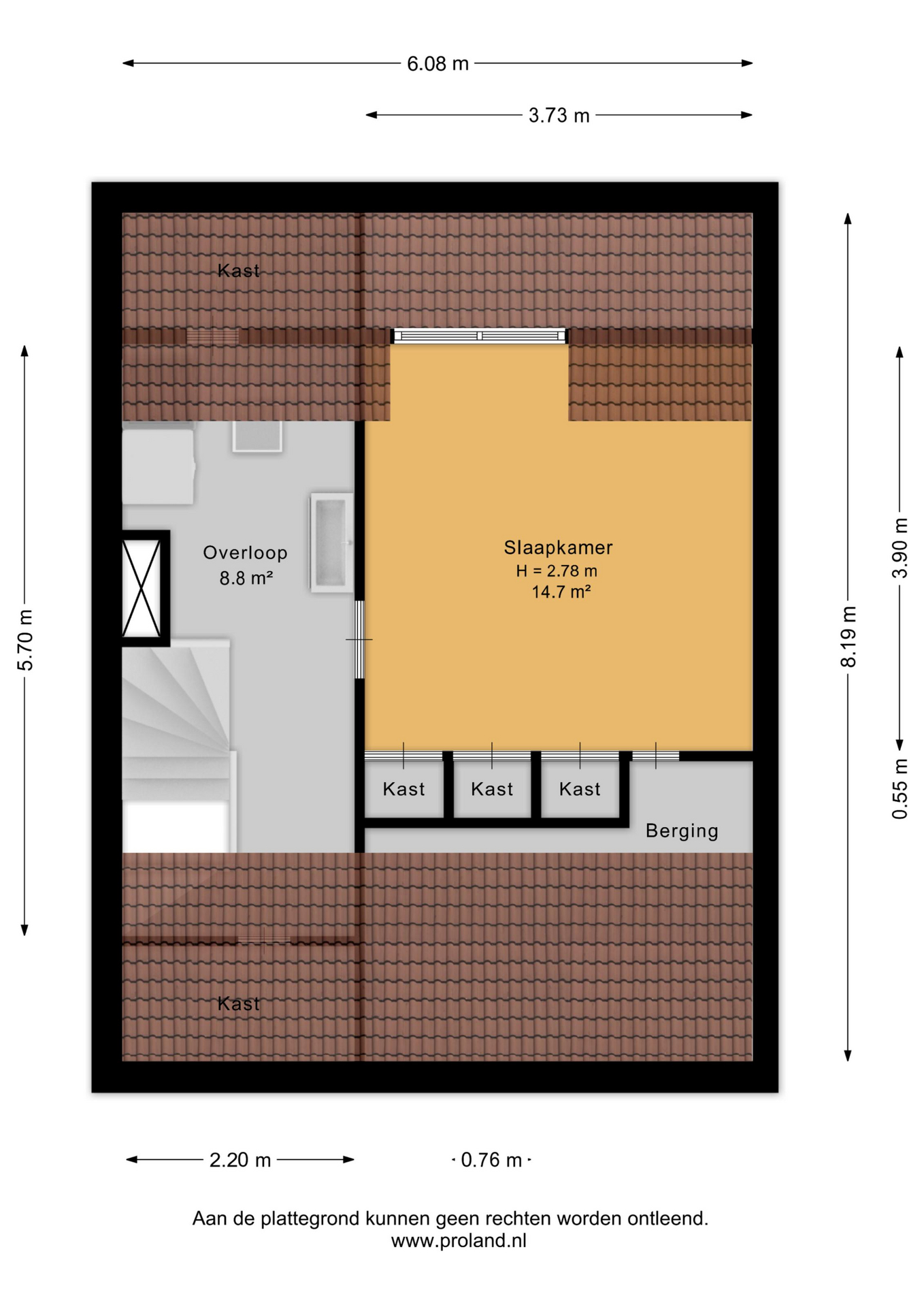
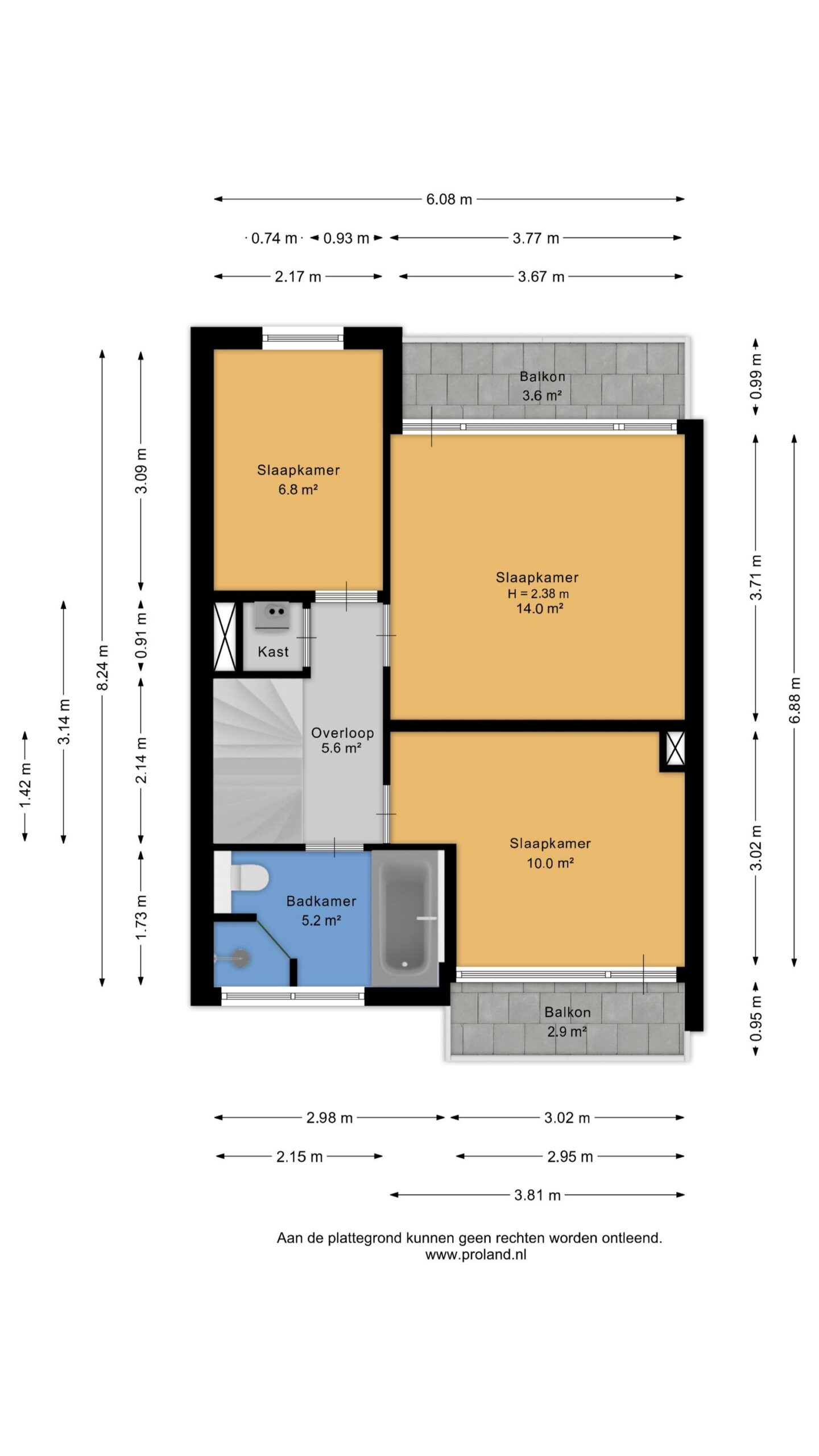
Dan de functionele indeling. In de eerste plaats de doorzon woonkamer voorzien van een fraaie laminaatvloer en een heerlijke schuifpui naar een kleine overkapping – balkon van de eerste verdieping - in de achtertuin. Daarnaast een open verbinding met de moderne keuken. Voorzien van alle inbouwapparatuur en met aansluitend en tuindeur. Uiteraard op de begane grond ook de ontvangsthal met het modern toilet en de trapopgang naar de eerste verdieping niet te vergeten. Op deze eerste verdieping zijn drie van de vier slaapkamers gesitueerd. Twee voorzien van een fraai balkon. Ook de eigentijdse badkamer bevindt zich op deze woonlaag. Compleet met douchecabinee, wastafelmeubel en tweede wandcloset. De vierde slaapkamer is op de tweede woonlaag gerealiseerd en toegankelijk vanaf een overloop met bergruimte.

HET BESTAANDE ENERGIELABEL IS OPGEMAAKT VOORDAT DE MUUR-, VLOER- EN DAKISOLATIE IS AANGEBRACHT EN DE ZONNEPANELEN ZIJN GEPLAATST!

VERKOPER LEVERT NOG EEN NIEUW ENERGIELABEL BIJ DE VERKOOP.

Algemeen

  • StatusBeschikbaar
  • Koopprijs€ 300.000,- k.k.
  • AanvaardingIn overleg

Bouwvorm

  • Soort objectWoonhuis
  • Soort woningEengezinswoning
  • Type woningTwee onder één kapwoning
  • Bouwjaar1965
  • BouwvormBestaande bouw
  • LiggingenAan rustige weg, In woonwijk

Indeling

  • Woonoppervlakte116 m2
  • Perceeloppervlakte228 m2
  • Inhoud508 m3
  • Aantal kamers5
  • Aantal slaapkamers4
  • Aantal badkamers1

Energie

  • EnergieklasseD
  • VerwarmingCV ketel
  • C.V.-KetelRemeha
  • Bouwjaar C.V.-Ketel2009
  • WarmwaterCV ketel
  • IsolatieDakisolatie, Muurisolatie, Vloerisolatie, Dubbelglas, HR glas
  • CombiketelJa
  • BrandstofGas
  • EigendomEigendom

Buitenruimte

  • TuinAchtertuin, Voortuin
  • HoofdtuinAchtertuin
  • Oppervlakte35 m2
  • Ligging hoofdtuinZuid
  • AchteromNee
  • Kwaliteit tuinNormaal

Parkeergelegenheid

  • Parkeer faciliteitenOp eigen terrein
  • GarageAangebouwd steen, Carport
  • Capaciteit2
  • Garages1

Dak

  • Soort dakZadeldak
  • Materiaal dakPannen, Bitumineuze Dakbedekking

Overig

  • Permanente bewoningJa
  • Onderhoud binnenGoed
  • Onderhoud buitenGoed
  • Huidig gebruikWoonhuis
  • Huidige bestemmingWoonhuis

Brandsma De Jong - Delfzijl

Kerkstraat 25
9934 CE Delfzijl
+31596 630 920

Vergelijkbare woningen

Hoofdafbeelding Vlamoven 95

Vlamoven 95

9934 NH Delfzijl

€ 250.000,- k.k.

Verkocht onder voorbehoud
Hoofdafbeelding Menno van Coehoornplein 5

Menno van Coehoornplein 5

9934 GT Delfzijl

€ 275.000,- k.k.

Verkocht onder voorbehoud
Hoofdafbeelding Simon van Wattumstraat 13

Simon van Wattumstraat 13

9933 KD Delfzijl

€ 300.000,- k.k.

Hoofdafbeelding Kustweg 20A

Kustweg 20A

9933 BC Delfzijl

€ 250.000,- k.k.

Over welke vestiging wilt u meer te weten komen?

Welke vestiging mag uw woning verkopen?

Brandsma de Jong

Vragen?

Wij helpen u graag