Hoofdafbeelding Tonnistil 12
Foto
Foto 2
Home Aanbod Tonnistil 12

Tonnistil 12

9945 RZ Wagenborgen

€ 325.000,- k.k.

Sommige 2-onder-1-kap woningen zijn standaard, andere juist niet… Neem nou de 2-onder-1-kap woning aan de Tonnistil 12 in Wagenborgen. In de eerste plaats vanwege de maatvoeringen van deze gezinswoning. Met name op de begane grond ruim bemeten, maar niet alleen intern. Ook het perceel is bovengemiddeld te noemen, waarbij in de eerste plaats de diepe voortuin direct opvalt. Parkeergelegenheid voor meerdere auto’s, onder andere in de aangebouwde garage. Achter de woning vinden we misschien wel de grootste verrassing. De keurige aanlegde siertuin biedt namelijk plaats aan een tuinschuur met een heerlijke veranda. Ideaal voor heerlijke zomeravonden!

Het dorp Wagenborgen is gunstig gelegen ten opzichte van de grotere plaatsen Delfzijl, Winschoten en Scheemda en biedt goede openbaar vervoersverbindingen in alle richtingen. Naast de gunstige ligging is het dorp rondom ‘in het groen’ gelegen, waarbij het wordt begrensd door het Proostmeer, het Hondshalstermeer maar ook het Wagenborger bos. Naast voornoemde ‘voorzieningen’ biedt Wagenborgen nog tal van voorzieningen op het gebied van horeca, sport - o.a. sportschool met zwembad - maar ook een recent gebouwde lagere school. Door dit relatief hoog voorzieningenniveau wordt het ook wel betiteld als kerndorp en is daardoor de laatste jaren weer volop in trek bij een breed publiek van jong tot iets ouder…

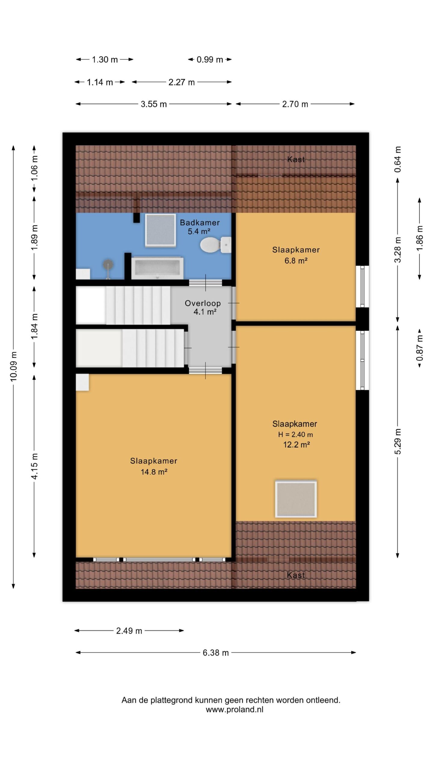
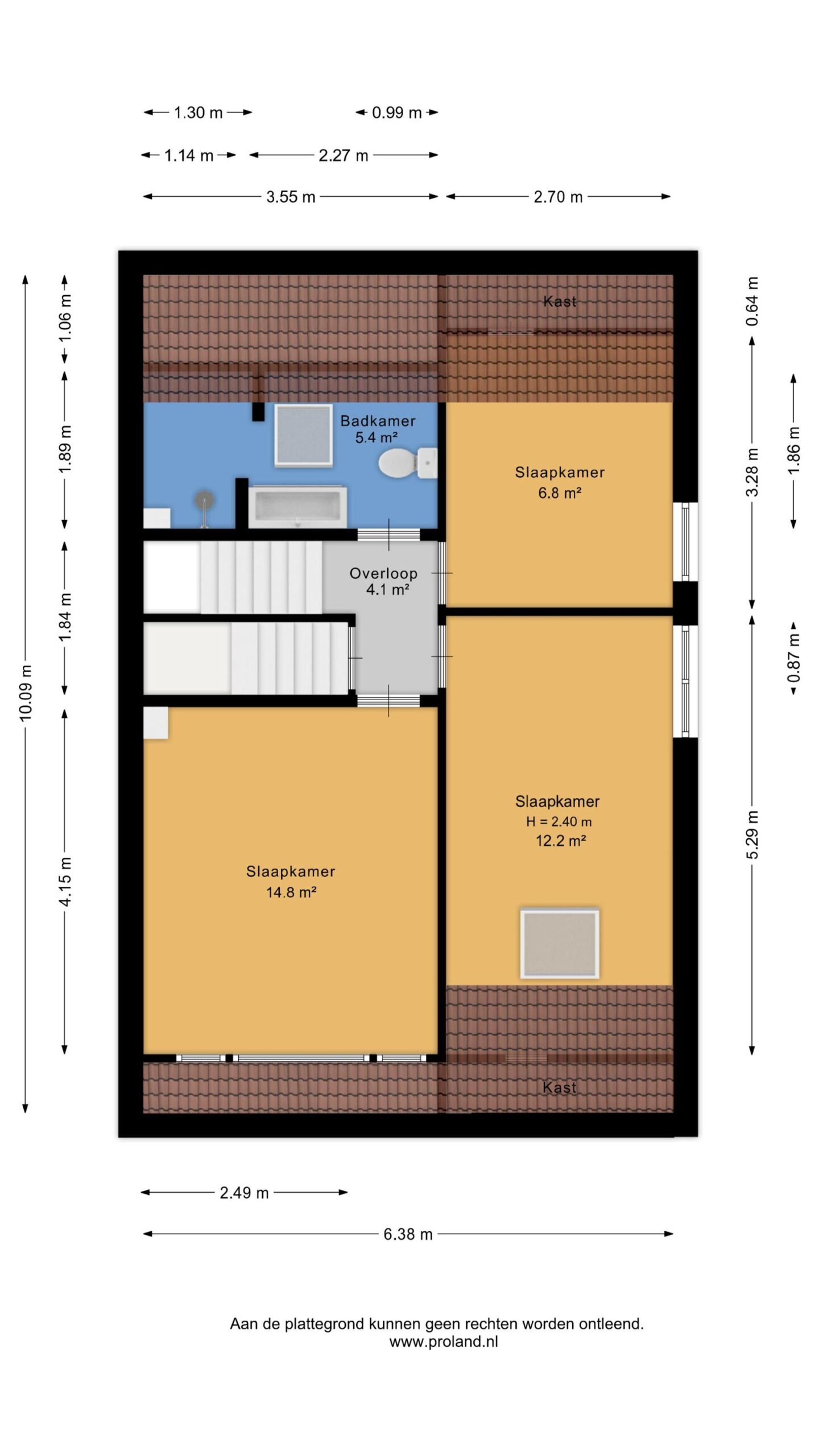
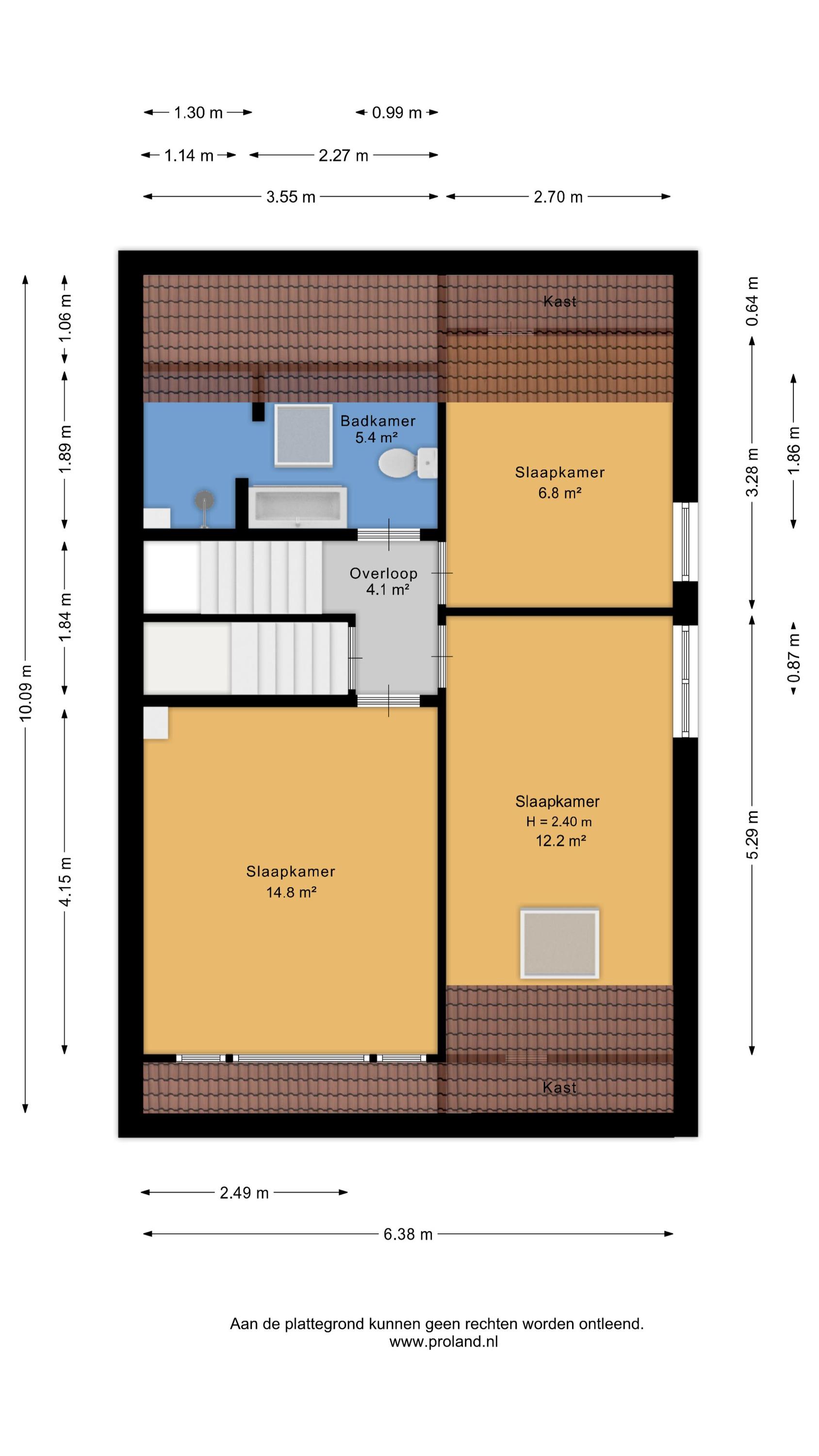
De woning is ook onderhoudsvriendelijk en modern te noemen. Onderhoudsvriendelijk vanwege de aanwezigheid van kunststof kozijnen en modern vanwege onder andere de jonge keuken- en toiletinrichting. Qua indeling speels en functioneel. Om te beginnen aan de straatzijde Z-vormige woonkamer met laminaatvloer en open haard. Tuingericht de woonkeuken met moderne inrichting, tuindeur en bijkeuken met doorgang naar de garage. Op de eerste verdieping drie functionele slaapkamers en de ruime badkamer waarbij een vaste trapopgang leidt naar de tweede verdieping. Hier is een grote zolder met slaapkamer in wording gesitueerd.

Algemeen

  • StatusOnder optie
  • Koopprijs€ 325.000,- k.k.
  • AanvaardingIn overleg

Bouwvorm

  • Soort objectWoonhuis
  • Soort woningEengezinswoning
  • Type woningGeschakelde woning
  • Bouwjaar1976
  • BouwvormBestaande bouw
  • LiggingenAan rustige weg, In woonwijk

Indeling

  • Woonoppervlakte148 m2
  • Perceeloppervlakte476 m2
  • Inhoud582 m3
  • Aantal kamers5
  • Aantal slaapkamers3
  • Aantal badkamers1

Energie

  • EnergieklasseA
  • VerwarmingCV ketel
  • C.V.-KetelIntergas
  • Bouwjaar C.V.-Ketel2021
  • WarmwaterCV ketel
  • IsolatieDakisolatie, HR glas
  • CombiketelJa
  • BrandstofGas
  • EigendomEigendom

Buitenruimte

  • TuinAchtertuin, Voortuin
  • HoofdtuinAchtertuin
  • Oppervlakte150 m2
  • Ligging hoofdtuinNoord
  • AchteromNee
  • Kwaliteit tuinNormaal

Bergruimte

  • Schuur / BergingVrijstaand hout
  • Totaal aantal1

Parkeergelegenheid

  • Parkeer faciliteitenOp eigen terrein
  • GarageAangebouwd steen
  • Capaciteit1
  • Garages1

Dak

  • Soort dakSamengesteld dak
  • Materiaal dakPannen, Bitumineuze Dakbedekking

Overig

  • Permanente bewoningJa
  • Onderhoud binnenGoed
  • Onderhoud buitenGoed
  • Huidig gebruikWoonhuis
  • Huidige bestemmingWoonhuis

Brandsma De Jong - Delfzijl

Kerkstraat 25
9934 CE Delfzijl
+31596 630 920

Vergelijkbare woningen

Verkocht onder voorbehoud
Hoofdafbeelding Tonnistil 23

Tonnistil 23

9945 RZ Wagenborgen

€ 300.000,- k.k.

Verkocht onder voorbehoud
Hoofdafbeelding Hoofdweg 63

Hoofdweg 63

9945 PB Wagenborgen

€ 200.000,- k.k.

Verkocht onder voorbehoud
Hoofdafbeelding Verbindingsweg 31

Verbindingsweg 31

9945 SJ Wagenborgen

€ 175.000,- k.k.

Over welke vestiging wilt u meer te weten komen?

Welke vestiging mag uw woning verkopen?

Brandsma de Jong

Vragen?

Wij helpen u graag