Hoofdafbeelding Tonnistil 23
Foto
Foto 3
Home Aanbod Tonnistil 23

Tonnistil 23

9945 RZ Wagenborgen

€ 300.000,- k.k.

Voor starters en/of jonge gezinnen blijft het aanbod in een gewilde kern als Wagenborgen helaas nog steeds zeer beperkt. Helemaal wanneer deze starter op zoek is naar een ‘instapklare’ woning en ruime woning… Gelukkig mogen wij voor deze doelgroep nu iets geschikts te koop aanbieden. Gelegen aan Tonnistil op nummer drieëntwintig. Een gemoderniseerde twee-onder-één-kap woning met een uitgebouwde woonkamer aan de tuinzijde. Overigens, de tuin zelf is verrassend ruim en voorzien van een keurige tuinschuur en dubbel terras. De eigen oprit aan de straatzijde is eveneens verrassend ruim waarbij het plaats biedt aan meerdere auto’s. Eveneens opvallend aan de voorzijde? Het vrije uitzicht zonder overburen.

Het dorp Wagenborgen is gunstig gelegen ten opzichte van de grotere plaatsen Delfzijl, Winschoten en Scheemda en biedt goede openbaar vervoersverbindingen in alle richtingen. Naast de gunstige ligging is het dorp rondom ‘in het groen’ gelegen, waarbij het wordt begrensd door het Proostmeer, het Hondshalstermeer maar ook het Wagenborger bos. Naast voornoemde ‘voorzieningen’ biedt Wagenborgen nog tal van voorzieningen op het gebied van horeca, sport - o.a. sportschool met zwembad - maar ook een recent gebouwde lagere school. Door dit relatief hoog voorzieningenniveau wordt het ook wel betiteld als kerndorp en is daardoor de laatste jaren weer volop in trek bij een breed publiek van jong tot iets ouder…

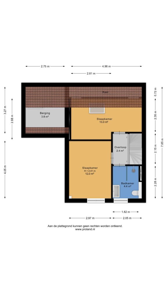
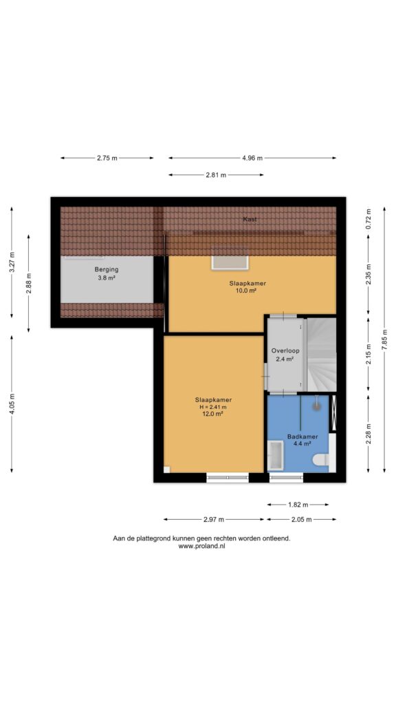
De huidige eigenaren hebben het woonhuis indertijd met de huidige omvang gekocht. Naderhand hebben ze de indeling enigszins aangepast maar bovenal gemoderniseerd. Aan de straatzijde is nog steeds de keuken gesitueerd, alleen nu een moderne variant! De woonkamer is verrassend groot en licht, voorzien van een laminaatvloer en tuindeur. Het geheel wordt op de begane grond gecompleteerd middels een royale bijkeuken met zoldertje, modern toilet en trapopgang naar de eerste verdieping. Hier zijn twee slaapkamers gesitueerd tezamen met de moderne badkamer. De derde slaapkamer bevindt zich op de tweede verdieping, uiteraard bereikbaar middels een vaste trap.

Algemeen

  • StatusBeschikbaar
  • Koopprijs€ 300.000,- k.k.
  • AanvaardingIn overleg

Bouwvorm

  • Soort objectWoonhuis
  • Soort woningEengezinswoning
  • Type woningTwee onder één kapwoning
  • Bouwjaar1980
  • BouwvormBestaande bouw
  • LiggingenAan rustige weg, In woonwijk

Indeling

  • Woonoppervlakte134 m2
  • Perceeloppervlakte359 m2
  • Inhoud405 m3
  • Aantal kamers4
  • Aantal slaapkamers3
  • Aantal badkamers1

Energie

  • EnergieklasseB
  • VerwarmingCV ketel
  • C.V.-KetelIntergas
  • Bouwjaar C.V.-Ketel2017
  • WarmwaterCV ketel
  • IsolatieDakisolatie, Muurisolatie, HR glas
  • CombiketelJa
  • BrandstofGas
  • EigendomLease

Buitenruimte

  • TuinAchtertuin, Voortuin, Zijtuin
  • HoofdtuinAchtertuin
  • Oppervlakte117 m2
  • Ligging hoofdtuinWest
  • AchteromNee
  • Kwaliteit tuinNormaal

Bergruimte

  • Schuur / BergingVrijstaand hout
  • Totaal aantal1

Parkeergelegenheid

  • Parkeer faciliteitenOp eigen terrein
  • GarageGeen garage

Dak

  • Soort dakDwarskap
  • Materiaal dakPannen

Overig

  • Permanente bewoningJa
  • Onderhoud binnenGoed
  • Onderhoud buitenRedelijk
  • Huidig gebruikWoonhuis
  • Huidige bestemmingWoonhuis

Brandsma De Jong - Delfzijl

Kerkstraat 25
9934 CE Delfzijl
+31596 630 920

Vergelijkbare woningen

Onder optie
Hoofdafbeelding Hoofdweg 63

Hoofdweg 63

9945 PB Wagenborgen

€ 200.000,- k.k.

Verkocht onder voorbehoud
Hoofdafbeelding Verbindingsweg 31

Verbindingsweg 31

9945 SJ Wagenborgen

€ 175.000,- k.k.

Over welke vestiging wilt u meer te weten komen?

Welke vestiging mag uw woning verkopen?

Brandsma de Jong

Vragen?

Wij helpen u graag